Valutazione immobiliare indipendente, accurata e gratuita
Casa indipendente a Cavallino-Treporti in zona Ca' Savio a 335.000 € (cod.651941d4)
Caasa non ha sufficienti informazioni per commentare la casa indipendente a Cavallino-Treporti Ca' Savio - 651941d4.
Analisi immobiliare
I dati in posseso di Caasa per quest'immobile sono insufficienti, inaffidabili o contraddittori per proporre un'analisi attendibile.
Mercato immobiliare a Cavallino-Treporti
Per quanto riguarda più in generale il comune di Cavallino-Treporti, sono presenti al momento più di cento annunci per
case indipendenti in vendita (meno del 5% dell'intera provincia)
e il maggior numero di annunci per questa tipologia sono relativi alla zona di Cavallino, mentre nella zona di Ca' Savio è presente un numero significativamente inferiore di annunci.
La richiesta media nella zona dove sorge la casa indipendente (Ca' Savio) è pari a
2.655 €/m² che la rende la più economica del comune .
Per quanto riguarda la dinamica dei prezzi, negli ultimi 6 mesi i prezzi medi in tutto il comune per case indipendenti in vendita sono
in forte aumento (+11,60%).
NOVITÀ Il risultato che vedi dipende dai dati che siamo riusciti ad estrarre dall'annuncio: ottieni una stima più accuranta di questo immobile, inserendo dati più precisi.
N.B. L'Opinione di Caasa® è un servizio sperimentale realizzato tramite tecniche di Intelligenza Artificiale, fornito senza alcuna garanzia di correttezza e completezza. Leggi il disclaimer o segnalaci un problema.
IMMAGINI
IN SINTESI
DESCRIZIONE
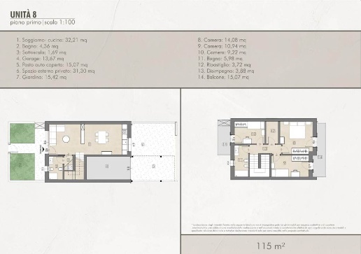
con posto auto con terrazza con garage con cantina
Ultime villette ancora disponibili! Ti presentiamo una splendida villetta in in prossima consegna, perfetta per chi cerca comfort e modernità. Questa abitazione si sviluppa su due livelli e offre un ampio soggiorno di oltre 30 mq, ideale per trascorrere momenti di relax e convivialità con la famiglia e gli amici. La cucina a vista rende l'ambiente ancora più luminoso e accogliente. La villetta è composta da una comoda zona giorno, un disimpegno, due bagni dotati di finestra, tre camere da letto e una stanza guardaroba o ripostiglio, perfetta per ottimizzare gli spazi. Gli amanti degli spazi esterni apprezzeranno le due terrazze, così come il giardinetto sono perfetti per godere di piacevoli momenti all'aperto. Inoltre, la proprietà dispone di un garage adiacente e collegato internamente e di due posti auto scoperti privati. Non perdere l'occasione di vivere in una delle ultime villette disponibili, un'opportunità unica per investire nel tuo futuro. due cose importantissime: La NOSTRA AGENZIA pensa a te e TI REGALA la provvigione, facendoti risparmiare Eu. 12.000,00, inoltre potrai godere del SismaBonus che ti porterà a detrarre fino ad altri Eu. 48.000,00 in 10 anni...praticamente una villetta ad un prezzo di un appartamento! Contattaci per maggiori informazioni e per prenotare una visita! Eu. 335.000,00 Classe Energetica: A4



