Valutazione immobiliare indipendente, accurata e gratuita
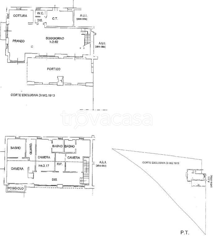
Casa indipendente in vendita a Roncade in zona Musestre a 283.500 € (cod.64e2ea9e)
Caasa non ha sufficienti informazioni per commentare la casa indipendente a Roncade in zona Musestre - 64e2ea9e.
Analisi immobiliare
I dati in posseso di Caasa per quest'immobile sono insufficienti, inaffidabili o contraddittori per proporre un'analisi attendibile.
Mercato immobiliare a Roncade
Per quanto riguarda più in generale il comune di Roncade, sono presenti al momento più di 150 annunci per
case indipendenti in vendita (meno del 5% dell'intera provincia)
e il maggior numero di annunci per questa tipologia sono relativi proprio alla zona di Musestre.
La richiesta media nella zona dove sorge la casa indipendente (Musestre) è pari a
1.775 €/m² e ne fa la più pregiata del comune .
Possiamo inoltre considerare che in tutto il comune negli ultimi 6 mesi, i prezzi per case indipendenti in vendita sono
in sostanziale aumento (+6,15%).
NOVITÀ Il risultato che vedi dipende dai dati che siamo riusciti ad estrarre dall'annuncio: ottieni una stima più accuranta di questo immobile, inserendo dati più precisi.
N.B. L'Opinione di Caasa® è un servizio sperimentale realizzato tramite tecniche di Intelligenza Artificiale, fornito senza alcuna garanzia di correttezza e completezza. Leggi il disclaimer o segnalaci un problema.
IMMAGINI
IN SINTESI
PROPOSTO DA:
AGL BRESCIA
DESCRIZIONE
di recente costruzione con giardino con termocondizionamento con terrazza con cantina di recente costruzione in asta giudiziaria
L'abitazione bifamiliare è parte di un antico edificio fine 800, ristruttirato nel 2017, e gode di autonomia funzionale. Sul lato ovest risulta presente un ampio porticato aperto che precede due ampie vetrate di accesso all'ampia zona giorno del pian […]
