Valutazione immobiliare indipendente, accurata e gratuita
Casa indipendente in vendita a Vigonza in zona Perarolo a 490.000 € (cod.657ab97c)
Caasa non ha sufficienti informazioni per commentare la casa indipendente a Vigonza in zona Perarolo - 657ab97c.
Analisi immobiliare
I dati in posseso di Caasa per quest'immobile sono insufficienti, inaffidabili o contraddittori per proporre un'analisi attendibile.
Mercato immobiliare a Vigonza
Per quanto riguarda più in generale la città di Vigonza, sono presenti al momento più di 300 annunci per
case indipendenti in vendita (meno del 5% dell'intera provincia)
e il maggior numero di annunci per questa tipologia sono relativi alla zona di Peraga, mentre nella zona di Perarolo è presente un numero significativamente inferiore di annunci.
La richiesta media nella zona dove sorge la casa indipendente (Perarolo) è pari a
1.900 €/m² e ne fa la più pregiata della città .
Per quanto riguarda la dinamica dei prezzi, negli ultimi 6 mesi i prezzi medi in tutta la città per case indipendenti in vendita sono
in deciso aumento (+7,72%).
NOVITÀ Il risultato che vedi dipende dai dati che siamo riusciti ad estrarre dall'annuncio: ottieni una stima più accuranta di questo immobile, inserendo dati più precisi.
N.B. L'Opinione di Caasa® è un servizio sperimentale realizzato tramite tecniche di Intelligenza Artificiale, fornito senza alcuna garanzia di correttezza e completezza. Leggi il disclaimer o segnalaci un problema.
IMMAGINI
IN SINTESI
PROPOSTO DA:
UNYCASA
DESCRIZIONE
di nuova costruzione con posto auto con garage con giardino con termocondizionamento di nuova costruzione con terrazza con cucina abitabile con balcone
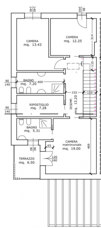
DESIGN, SPAZIO E CLASSE A4 – LA CASA CHE FA LA DIFFERENZA A Perarolo di Vigonza, in quartiere tranquillo e verde, proponiamo nuova porzione di bifamiliare dal forte impatto moderno, 215 mq di comfort e tecnologia immersi in un giardino privato di 300 mq. Colpisce subito la spettacolare zona living open-space di 55 mq, inondata di luce grazie alle grandi vetrate: uno spazio elegante e accogliente. Cucina abitabile separabile, bagno, lavanderia e garage completano il piano terra. Al piano superiore troviamo tre camere ampie (matrimoniale + 2 doppie) e due bagni raffinati, pensati per il massimo comfort della famiglia. Giardino esclusivo di 300 mq, pergolato ideale per cene estive, vialetto pavimentato con posti auto interni, basculante e cancello motorizzati: indipendenza e praticità garantite. ✔ Impianto fotovoltaico da 9 kW ✔ Riscaldamento a pavimento con pompa di calore Immergas ✔ Impianto elettrico predisposto per domotica ✔ A/C canalizzata predisposta per gestione smart ✔ Serramenti legno/alluminio con triplo vetro e doppia camera ✔ Tapparelle e frangisole motorizzati nella zona giorno ✔ Predisposizione allarme ✔ Piatti doccia basso profilo antiscivolo Una casa moderna, efficiente e pronta a farti vivere ogni giorno al massimo



