N.B. Tutti le informazioni immobiliari sono fornite senza alcuna garanzia. Leggi il disclaimer.
Locali di sgombero o negozi edificio storico in affitto a Saronno in zona Corso Italia
MODIFICA QUESTA RICERCANegozio in affitto a Saronno corso Italia, 8
                                                negozio Corso Italia 1.000 € mese
                                                
                                                Saronno, all’inizio di corso Italia, l’arteria commerciale per eccellenza della città, in zona pedonale peraltro prossima, nelle immediate vicinanze, a diversi parcheggi pubblici. In stabile d’epoca, molto ben conservato, proponiamo un luminoso negozio ristrutturato integralmente ed in perfette condizion […]
LEGGI ANCORA
                                            
Negozio in affitto a Saronno vicolo Caldo, 6
                                                negozio Corso Italia 600 € mese
                                                
                                                Saronno, centro storico pedonale. La zona in cui è collocato il negozio mette in comunicazione il corso Italia con la via San Cristoforo, strade che sono considerate le due più importanti arterie commerciali della città ed è oggetto di un progetto di valorizzazione promosso dal Comune di Saronno. In stab […]
LEGGI ANCORA
                                            
Negozio in affitto a Saronno corso Italia, 16
                                                negozio Corso Italia 1.165 € mese
                                                
                                                Saronno, al centro di corso Italia, principale arteria commerciale della città che gode di un costante e copioso flusso pedonale durante tutte le ore del giorno, in zona a traffico limitato peraltro accessibile, nelle immediate vicinanze, a tutti i veicoli nelle ore pomeridiane. In stabile d’epoca, molto […]
LEGGI ANCORA
                                            
Negozio in affitto in C.so Italia a Saronno
                                                negozio Corso Italia 1.650 € mese
                                                
                                                Nel cuore pulsante di Saronno, proponiamo in locazione un negozio con ottima visibilità, disponibile da fine settembre. Questo immobile si trova nella zona centrale e vanta una superficie complessiva di circa 74 mq, suddivisi tra un ampio locale commerciale di circa 44 mq e un magazzino posto al piano te […]
LEGGI ANCORA
                                            
- prezzo medio mansarda a Saronno : 28,1 €/m²
Affittasi magazzino a Saronno
                                                locale di sgombero 350 € mese
                                                
                                                In stabile con giardino condominiale e posto auto affittiamo unico locale con bagno di 25 mq. ca ad uso magazzino/laboratorio
LEGGI ANCORA
                                            
- prezzo medio locale commerciale a Saronno : 12,5 €/m²
Negozio in affitto a Saronno PREMIUM
Proposto da:
Affiliato Tecnocasa: STUDIO INDUSTRIALE 2 S.N.C.Immobile in affitto a Saronno(VA
Fondo/negozio - 2 vetrine/luci a Saronno
Negozio in affitto a Saronno corso Italia
                                                negozio Corso Italia 1.000 € mese
                                                
                                                Saronno: centro (corso Italia) proponiamo negozio con doppio ingresso e vetrina. Piano terra 50 mq circa p. T e 50 mq circa piano interrato collegato internamente. per info o visite 3334025767
LEGGI ANCORA
                                            
Laboratorio in affitto a Saronno via gaudenzio ferrari, 21
Proposto da:
Affiliato Tecnocasa: STUDIO INDUSTRIALE 2 S.N.C.
                                                negozio Via Gaudenzio Ferrari 2.200 € mese
                                                
                                                SARONNO, in un complesso storico artigianale/terziario, laboratorio al piano secondo diviso in ampi spazi, dotato di montacarichi per facilitare carico e scarico, ujbicato dietro la stazione centrale delle FNM e comodamente raggiungibile dall'autostrada. A due passi dal centro città, dotato di tutti i se […]
LEGGI ANCORA
                                            
Negozio in affitto a Saronno
                                                negozio 500 € mese
                                                
                                                In affitto a Saronno, in zona posta nuova, molto vicino all'uscita autostradale e non lontano dal centro/stazione, proponiamo un interessante negozio situato in Via Giuliani 95/97. Questo immobile offre una superficie di 51 mq al piano terra, ideale per diverse attività commerciali. Il negozio è composto […]
LEGGI ANCORA
                                            
Immobile in affitto a Saronno(VA PREMIUM
Immobile in affitto a Saronno(VA
                                                locale di sgombero 350 € mese
                                                
                                                Locale commerciale - In stabile con giardino condominiale e posto auto affittiamo unico locale con bagno di 25 mq. ca ad uso magazzino/laboratorio
LEGGI ANCORA
                                            
- prezzo medio locale commerciale a Saronno : 12,5 €/m²
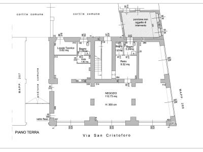
Negozio in affitto a Saronno via San Cristoforo, 23
                                                negozio Via San Cristoforo 4.500 € mese
                                                
                                                Saronno, centro storico, zona pedonale, in via San Cristoforo, l’arteria commerciale più ambita e frequentata della città, in una palazzina di dimensioni contenute, proponiamo un negozio con superficie lorda complessiva di 180 mq con cinque ampissime vetrine a tutta altezza. La soluzione, un open space c […]
LEGGI ANCORA
                                            
locale di sgombero in affitto a Saronno
                                                negozio Corso Italia 1.165 € mese
                                                
                                                Saronno, al centro di corso Italia, principale arteria commerciale della città che gode di un costante e copioso flusso pedonale durante tutte le ore del giorno, in zona a traffico limitato peraltro accessibile, nelle immediate vicinanze, a tutti i veicoli nelle ore pomeridiane. In stabile d’epoca, molto […]
LEGGI ANCORA
                                            
negozio in affitto a Saronno
                                                negozio 1.800 € mese
                                                
                                                SARONNO: CENTRO Sezionnecasa affitta centralissimo locale commerciale con tre ingressi e cinque vetrine, oltre soppalco!! La soluzione è cosi disposta: ingresso, ampio locale open-space, con tripla esposizione, particolare scala elicoidale che porta al piano sovrastante, dove troviamo un altro unico loc […]
LEGGI ANCORA
                                            
Affittasi negozio a Saronno
Negozio in affitto a Saronno piazza Shuster
                                                negozio Piazza Shuster 800 € mese
                                                
                                                In zona centrale ( zona ZTL), proponiamo negozio posto al piano terra con doppio ingresso. La soluzione è composta da ingresso tramite ampia vetrata libera su tre lati, con due stanze separate e un bagno, al piano superiore invece troviamo un locale soppalcato. A completare Aria condizionata, riscaldamen […]
LEGGI ANCORA
                                            
Negozio in Affitto a Saronno Centro
                                                negozio 1.850 € mese
                                                
                                                Nel cuore pulsante di Saronno, proponiamo in locazione un negozio con ottima visibilità, disponibile da settembre. Questo immobile si trova nella zona centrale e vanta una superficie complessiva di circa 74 mq, suddivisi tra un ampio locale commerciale di circa 44 mq e un magazzino posto al piano terra  […]
LEGGI ANCORA
                                            
Immobile in affitto a Saronno(VA
Non perdere gli altri 37 annunci!
 
                                     
                                                
 
                                             
                                                    




 
                                             
                                             
                                            



 
                                             
                                                     
                                                 
                                            

 
                                             
                                             
                                             
                                                     
                                             
                                             
                                             
                                             
                                             
                                             
                                                     
                                            
