Valutazione immobiliare indipendente, accurata e gratuita
Casa indipendente in vendita a Pontedera in zona La Borra a 469.000 € (cod.6514a6f2)
Caasa non ha sufficienti informazioni per commentare la casa indipendente a Pontedera in zona La Borra - 6514a6f2.
Analisi immobiliare
I dati in posseso di Caasa per quest'immobile sono insufficienti, inaffidabili o contraddittori per proporre un'analisi attendibile.
Mercato immobiliare a Pontedera
Per quanto riguarda più in generale la città di Pontedera, sono presenti al momento oltre 500 annunci per
case indipendenti in vendita (meno del 5% dell'intera provincia)
e il maggior numero di annunci per questa tipologia sono relativi alla zona di Santa Lucia, mentre nella zona di La Borra è presente un numero significativamente inferiore di annunci.
La richiesta media nella zona dove sorge la casa indipendente (La Borra) è pari a
2.345 €/m², molto vicina ai valori della zona Santa Lucia che sono i più alti della città .
Possiamo inoltre considerare che in tutta la città negli ultimi 6 mesi, i prezzi per case indipendenti in vendita sono
in aumento (+4,27%).
NOVITÀ Il risultato che vedi dipende dai dati che siamo riusciti ad estrarre dall'annuncio: ottieni una stima più accuranta di questo immobile, inserendo dati più precisi.
N.B. L'Opinione di Caasa® è un servizio sperimentale realizzato tramite tecniche di Intelligenza Artificiale, fornito senza alcuna garanzia di correttezza e completezza. Leggi il disclaimer o segnalaci un problema.
IMMAGINI
IN SINTESI
DESCRIZIONE
di nuova costruzione con posto auto con cantina con garage con giardino con cucina abitabile di nuova costruzione
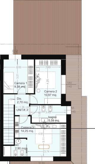
La Borra - Pontedera Villetta bifamiliare in vendita - 6 vani - 125 mq - con ingresso indipendente - posto al piano Piano terra composto da 3 camere e 3 bagni e garage- In costruzione villetta in bifamiliare, realizzata in costruita con tutti i materiali di ultima generazione e con spazi molto comodi. La villetta al Piano terra è composta da ingresso, ampio soggiorno di 40 mq, cucina abitabile con accesso al giardino esterno ideale per essere vissuto nella bella stagione, anti-bagno e bagno, ripostiglio, locale tecnico/lavanderia e GARAGE La zona notte posta al piano primo è composta da camera matrimoniale con bagno privato , una camera doppia, una camera singola ed un ulteriore bagno. Immobile completamente personalizzabile. Rifiniture di alto livello - Rif. RC6086







