Valutazione immobiliare indipendente, accurata e gratuita
L'Opinione di Caasa® per l'appartamento in vendita a Camaiore in zona Lido di Camaiore a 770.000 € (cod.6514bd4c)
Secondo Caasa, per l'appartamento a Camaiore in zona Lido di Camaiore, la richiesta di 770.000 € è leggermente svantaggiosa rispetto agli annunci simili.
Analisi immobiliare
L'appartamento, situato nella zona OMI E3, è proposto in vendita (da MONTEBELLO IMMOBILIARE) a
770.000 € per una
superficie commerciale di
140 m² e quindi ad un prezzo per metro quadrato pari a
5500 €/m²
.
Questo valore
è di poco superiore a quello stimato da Caasa per immobili in vendita simili per tipologia e caratteristiche e localizzati nella stessa zona OMI, che è compreso tra
4.604 €/m² e
5.076 €/m².
Grazie alla conoscenza con buona approssimazione della localizzazione dell'immobile, è stato possibile utilizzare come raffronto i dati medi elaborati esattamente nella zona OMI di appertenenza (LIDO DI CAMAIORE - FOSSA DELL'ABATE) per appartamenti (da 2.945 €/m² a 5.580 €/m²) e per case indipendenti (da 2.530 €/m² a 4.955 €/m²). Anche se Caasa non è riuscita a determinare la classe energetica, ad affinare la stima hanno contribuito anche lo stato dell'immobile (da ristrutturare) e la presenza di alcune caratteristiche significative come la presenza dell'ascensore o il posto auto. Per questi motivi l'intervallo dei valori accettabili per l'offerta è relativamente limitato.
Mercato immobiliare a Camaiore
Per quanto riguarda più in generale la città di Camaiore, sono presenti al momento ben oltre mille annunci per
appartamenti in vendita (quasi il 20% dell'intera provincia)
e il maggior numero di annunci per questa tipologia sono relativi proprio alla zona di Lido di Camaiore.
La richiesta media nella zona dove sorge l'appartamento (Lido di Camaiore) è pari a
4.475 €/m² e ne fa la più pregiata della città .
Per quanto riguarda la dinamica dei prezzi, negli ultimi 6 mesi i prezzi medi in tutta la città per appartamenti in vendita sono
in leggero aumento (+2,69%).
NOVITÀ Il risultato che vedi dipende dai dati che siamo riusciti ad estrarre dall'annuncio: ottieni una stima più accuranta di questo immobile, inserendo dati più precisi.
N.B. L'Opinione di Caasa® è un servizio sperimentale realizzato tramite tecniche di Intelligenza Artificiale, fornito senza alcuna garanzia di correttezza e completezza. Leggi il disclaimer o segnalaci un problema.
IMMAGINI
IN SINTESI
DESCRIZIONE
da ristrutturare con posto auto da ristrutturare con ascensore
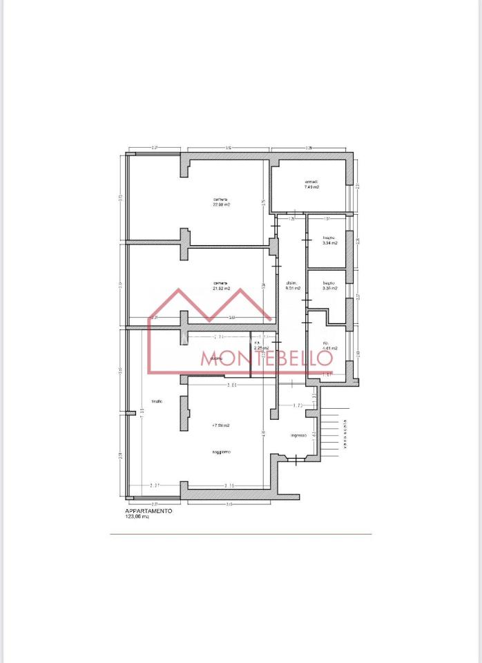
Cod.11968 Rif.Ag. LD42 - ? Ampio e luminoso appartamento da Ristrutturare a 50 metri dal Mare – Lido di Camaiore ? A soli 50 metri dalla spiaggia, nella splendida località di Lido di Camaiore , proponiamo un appartamento di 115 mq da ristrutturare, ideale per creare la casa dei tuoi sogni in un contesto esclusivo. ✨ Caratteristiche principali: - Posizione: Primo piano con ascensore, comodità e accessibilità assicurate. - Spazi interni: ampio soggiorno, cucina-tinello, disimpegno, due ripostigli, due grandissime camere matrimoniali, due bagni e una stanza armadi. Ogni stanza è arricchita da ampie vetrate che inondano l'intero appartamento di luce naturale, offrendo una meravigliosa vista mare. ? Dettagli esterni: La proprietà include un posto auto privato , una risorsa preziosa per la zona. ? Potenziale: Perfetto per chi cerca un progetto di ristrutturazione per personalizzare gli ambienti e valorizzare ogni spazio. Non lasciarti sfuggire questa occasione unica di vivere a due passi dal mare in una delle località più ambite della Versilia! Contattaci ora per maggiori informazioni o per fissare una visita. #VenditaAppartamento #LidoDiCamaiore #VistaMare








