Valutazione immobiliare indipendente, accurata e gratuita
Appartamento in vendita a Pontassieve a 165.000 € (cod.6512dbaf)
Caasa non ha sufficienti informazioni per commentare l'appartamento in vendita a Pontassieve - 6512dbaf.
Analisi immobiliare
I dati in posseso di Caasa per quest'immobile sono insufficienti, inaffidabili o contraddittori per proporre un'analisi attendibile.
Mercato immobiliare a Pontassieve
Per quanto riguarda più in generale la città di Pontassieve, sono presenti al momento più di 200 annunci per
appartamenti in vendita (meno dell'1% dell'intera provincia)
e il maggior numero di annunci per questa tipologia sono relativi alla zona di Doccia.
La dinamica dei prezzi in tutta la città mostra che negli ultimi 6 mesi, i prezzi per appartamenti in vendita sono
in aumento (+4,44%).
NOVITÀ Il risultato che vedi dipende dai dati che siamo riusciti ad estrarre dall'annuncio: ottieni una stima più accuranta di questo immobile, inserendo dati più precisi.
N.B. L'Opinione di Caasa® è un servizio sperimentale realizzato tramite tecniche di Intelligenza Artificiale, fornito senza alcuna garanzia di correttezza e completezza. Leggi il disclaimer o segnalaci un problema.
IMMAGINI
IN SINTESI
PROPOSTO DA:
AREA 32 IMMOBILIARE
DESCRIZIONE
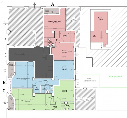
di nuova costruzione con cantina con terrazza con angolo cottura di nuova costruzione
Nel comune di Pelago in Località san Francesco a soli pochi passi da Pontassieve e a tutti i principali servizi VENDESI APPARTAMENTI di nuova costruzione e di varie metrature: Soluzione "A"; piano terra mq 62,40 (SUL) ingresso singolo composto da soggiorno con angolo cottura, camera matrimoniale, studio, bagno, terrazzo. 156.000 (VENDUTO) Soluzione "B"; piano terra mq 66,68 (SUL) ingresso singolo composto da soggiorno con angolo cottura, camera matrimoniale, ripostiglio-lavanderia, bagno, terrazzo. 165.000 Soluzione "C"; piano terra mq 70,56 (SUL) ingresso singolo composto da soggiorno con angolo cottura, camera matrimoniale, ripostiglio-lavanderia, bagno, terrazzo. 175.000 NO SPESE CONDOMINIALI Tutti gli immobili verranno consegnati completamente rifiniti con materiali di pregio, aria condizionata, termo singolo, Tra il Valdarno Fiorentino, la Valdisieve e il Mugello nelle colline del Chianti, vantiamo esperienza e professionalità nel campo della mediazione immobiliare. Le residenze al centro di panorami di bellezza incomparabile, ville, villette familiari, coloniche, casali, aziende agricole, appezzamenti, fondi e attività commerciali, sono la nostra specialità. Operiamo in Toscana e proponiamo proprietà di prestigio, offriamo la massima trasparenza e la migliore assistenza nelle trattative di compravendita di proprietà, consulenze tecnico fiscali, verifiche su immobili, stime e permute. Convenzionati con i principali istituti di credito nazionali, offriamo le migliori condizioni in termini di consulenza, tassi e disponibilità a finanziamenti agevolati. Offriamo inoltre servizi visibilità a livello locale, nazionale ed internazionale tramite canali internet, riviste, quotidiani ed altri strumenti pubblicitari. Contattateci senza impegno e sapremo indicarvi le migliori occasioni di investimento sul territorio. - anno


