Valutazione immobiliare indipendente, accurata e gratuita
Appartamento in vendita a Fucecchio in zona Ponte a Cappiano a 80.000 € (cod.651a80e6)
Caasa non ha sufficienti informazioni per commentare l'appartamento a Fucecchio in zona Ponte a Cappiano - 651a80e6.
Analisi immobiliare
I dati in posseso di Caasa per quest'immobile sono insufficienti, inaffidabili o contraddittori per proporre un'analisi attendibile.
Mercato immobiliare a Fucecchio
Per quanto riguarda più in generale la città di Fucecchio, sono presenti al momento oltre 500 annunci per
appartamenti in vendita (meno del 5% dell'intera provincia)
e il maggior numero di annunci per questa tipologia sono relativi alla zona di San Pierino, mentre nella zona di Ponte a Cappiano è presente un numero significativamente inferiore di annunci.
La richiesta media nella zona dove sorge l'appartamento (Ponte a Cappiano) è pari a
1.505 €/m² che la rende la più economica della città .
Possiamo inoltre considerare che in tutta la città negli ultimi 6 mesi, i prezzi per appartamenti in vendita sono
in deciso aumento (+9,08%).
NOVITÀ Il risultato che vedi dipende dai dati che siamo riusciti ad estrarre dall'annuncio: ottieni una stima più accuranta di questo immobile, inserendo dati più precisi.
N.B. L'Opinione di Caasa® è un servizio sperimentale realizzato tramite tecniche di Intelligenza Artificiale, fornito senza alcuna garanzia di correttezza e completezza. Leggi il disclaimer o segnalaci un problema.
IMMAGINI
IN SINTESI
PROPOSTO DA:
Agenzia Immobiliare Il Prisma
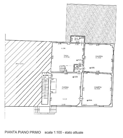
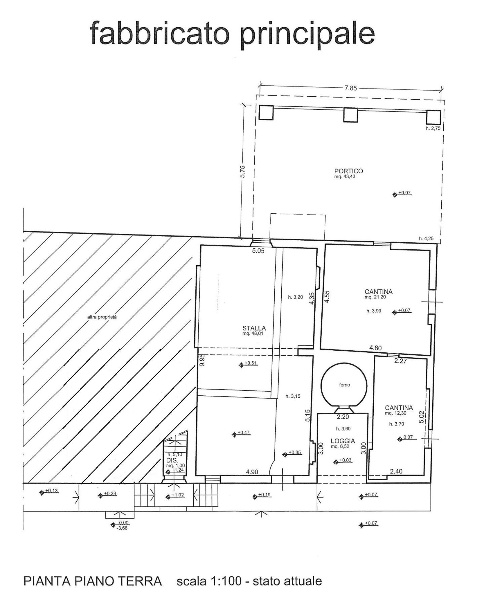
DESCRIZIONE
da ristrutturare con giardino da ristrutturare
Ponte A Cappiano - Fucecchio - Porzione di casa da ristrutturare con due annessi e ampio giardino. l'immobile necessita di lavori di ristrutturazione; può essere suddiviso in varie unità anche indipendenti tra di loro ed ognuna con giardino privato. Completa la proprietà una porzione di terreno agricolo, adiacente alla casa, di circa 3000 mq. - Rif. 1905



