Valutazione immobiliare indipendente, accurata e gratuita
L'Opinione di Caasa® per la casa indipendente in vendita ad Aci Sant'Antonio in zona Lavinaio a 320.000 € (cod.64fae332)
Secondo Caasa, per la casa indipendente ad Aci Sant'Antonio Lavinaio, la richiesta di 320.000 € è significativamente svantaggiosa rispetto agli annunci simili.
Analisi immobiliare
La casa indipendente, situata nella zona OMI D1, è proposta in vendita a
320.000 € per una
superficie commerciale di
155 m² e quindi ad un prezzo per metro quadrato pari a
2064 €/m²
.
Questo prezzo
è meno vantaggioso di quello stimato da Caasa per immobili in vendita simili per tipologia e caratteristiche e localizzati nella stessa zona OMI, che è compreso tra
1.578 €/m² e
1.733 €/m².
Grazie alla conoscenza con buona approssimazione della localizzazione dell'immobile, è stato possibile utilizzare come raffronto i dati medi elaborati esattamente nella zona OMI di appertenenza (MONTEROSSO - LAVINAIO - FIANDACA - PENNISI - COLLEGIO) per case indipendenti (da 1.110 €/m² a 1.885 €/m²) e per ville (da 1.090 €/m² a 2.040 €/m²). Anche se Caasa non è riuscita a determinare la classe energetica, ad affinare la stima ha contribuito anche lo stato dell'immobile (di nuova costruzione). Per queste ragioni l'intervallo dei valori accettabili per l'offerta è relativamente limitato.
Mercato immobiliare ad Aci Sant'Antonio
Per quanto riguarda più in generale la città di Aci Sant'Antonio, sono presenti al momento più di 200 annunci per
case indipendenti in vendita (meno del 5% dell'intera provincia)
e il maggior numero di annunci per questa tipologia sono relativi proprio alla zona di Lavinaio.
Per quanto riguarda la richiesta media in zona Lavinaio, dove sorge la casa indipendente, essa è pari a circa
1.510 €/m² per case indipendenti in vendita.
Possiamo inoltre considerare che in tutta la città negli ultimi 6 mesi, i prezzi per case indipendenti in vendita sono
in forte aumento (+10,61%).
NOVITÀ Il risultato che vedi dipende dai dati che siamo riusciti ad estrarre dall'annuncio: ottieni una stima più accuranta di questo immobile, inserendo dati più precisi.
N.B. L'Opinione di Caasa® è un servizio sperimentale realizzato tramite tecniche di Intelligenza Artificiale, fornito senza alcuna garanzia di correttezza e completezza. Leggi il disclaimer o segnalaci un problema.
IMMAGINI
IN SINTESI
PROPOSTO DA:
AZ IMMOBILIARE - MISTERBIANCO
DESCRIZIONE
di nuova costruzione con terrazza con giardino con balcone di nuova costruzione
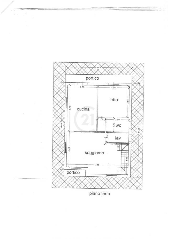
Villa in costruzione in vendita ad Aci Sant'Antonio zona Lavinaio in zona residenziale e servita. La villa è composta al piano terra da un salone di 34 mq, cucina di 21 mq, camera matrimoniale di 16 mq, servizio e lavanderia; al primo piano mansardato con punti più bassi di 1.50 h abbiamo 2 camere doppie e servizio e un secondo soggiorno o dove realizzare una terza camera da letto. L'immobile dispone di un ampio giardino di 566 mq circa, balcone e portici. RIF. 4714-1


