N.B. Tutti le informazioni immobiliari sono fornite senza alcuna garanzia. Leggi il disclaimer.
Immobile in affitto a Salerno(SA PREMIUM
Immobile in affitto a Salerno(SA
Appartamento in affitto a Salerno(SA
negozio Torrione 700 € mese
Torrione in Via Adriano Aurofino proponiamo in locazione luminoso appartamento di circa 65 mq, posto al quinto piano di un fabbricato dotato di ascensore, impianto di videosorveglianza e privo di bar
LEGGI ANCORA
- prezzo medio appartamento in zona OMI C1 : 13,1 €/m²
- prezzo medio appartamento in zona Torrione : 12,1 €/m²
Immobile in affitto a Salerno(SA
negozio Ogliara 580 € mese
Attività commerciale - **Locale in Affitto VIA NIZZA - Ottima Visibilità! ** Sei alla ricerca di un locale commerciale in una posizione strategica? Questo spazio di circa 30 mq, situato al piano terra, è perfetto per chi d
LEGGI ANCORA
negozio in affitto a Salerno
Immobile in affitto a Salerno(SA
negozio Centro Città Via Arturo de Felice 700 € mese
Attività commerciale - Questo locale commerciale di 20 mq, situato in via Arturo De Felice, è perfetto per chi desidera avviare o espandere la propria attività. Con un’accogliente area per i clienti e un bagno di servizio
LEGGI ANCORA
negozio in affitto a Salerno PREMIUM
Proposto da:
Immobile in affitto a Salerno(SA
Fittasi negozio a Salerno via Posidonia, Torrione
negozio Torrione Via Posidonia 1.000 € mese
PASTENA, nella centralissima Via Posidonia, proponiamo in locazione immobile ad uso commerciale di mq 70, con accesso da cancello ad angolo della strada principale, attualmente composto da unico ambiente con bagno e piccolo terrazzino con uscita esclusiva, sul retro del locale. L'immobile sarà consegnato […]
LEGGI ANCORA
Fittasi negozio a Salerno via Posidonia, 247, Torrione
negozio Torrione Via Posidonia 700 € mese
In via Posidonia, una delle strade più trafficate e commercialmente vivaci di Salerno, proponiamo in locazione un locale commerciale di 44 mq in buone condizioni interne. L’immobile è situato in posizione angolare e dispone di tre ampie vetrine fronte strada, che garantiscono massima visibilità. La zona […]
LEGGI ANCORA
Negozio SALERNO €.390 MQ.16
negozio Torrione
Locale commerciale in locazione nel cuore di Torrione! Questo luminoso e recentemente ristrutturato locale commerciale, con una superficie di 16mq, è l'ideale per chi cerca un'ufficio in una posizione strategica. Situato a pochi passi dalla nazionale e dal lungomare, offre un ambiente accogliente con bag […]
LEGGI ANCORA
Immobile in affitto a Salerno(SA
Affitto Negozio Salerno
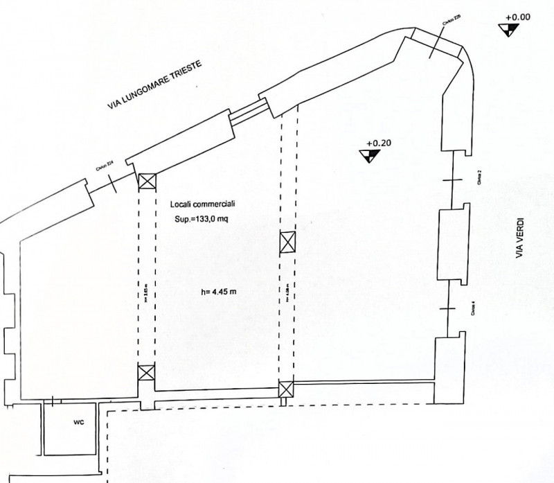
negozio Lungomare Trieste 6.000 € mese
In posizione centralissima, su una delle principali arterie di Salerno, proponiamo in locazione un ampio locale commerciale (cat. C/1) di circa 140 mq, situato ad angolo tra Via Lungomare Trieste e Via Verdi. L'immobile dispone di 4 ampie vetrine, di cui una situata sull'angolo del palazzo, che garantisc […]
LEGGI ANCORA
Immobile in affitto a Salerno(SA
negozio Gelsi Rossi Via Luigi Guercio
Attività commerciale - In affitto a Salerno, proponiamo un interessante negozio situato in Via Luigi Guercio 92. Questo locale commerciale di 18 mq si trova al piano terra e si presenta in condizioni ottime, pronto per ess
LEGGI ANCORA
negozio in affitto a Salerno
Proposto da:
negozio Centro Città Teatro Verdi 1.100 € mese
Negozio sul Corso. Avanti Commercio a 1.100, 00 euro mensili, l'Affitta Sabatino Traversa Papio, superficie di metri quadrati trenta. Già attività di somministrazione alimenti e bevande. 81/2025 SABATINO HOME COLLECTION
LEGGI ANCORA
Fittasi negozio a Salerno via Matteo Rossi, Torrione
negozio Torrione Via Liberatore Matteo
Locale commerciale in locazione nel cuore di Torrione! Questo luminoso e recentemente ristrutturato locale commerciale, con una superficie di 16mq, è l'ideale per chi cerca un'ufficio in una posizione strategica. Situato a pochi passi dalla nazionale e dal lungomare, offre un ambiente accogliente con bag […]
LEGGI ANCORA
Immobile in affitto a Salerno(SA
negozio Centro Città Corso Vittorio Emanuele
Attività commerciale - Salerno centro, via diaz; a ridosso del Corso Vittorio Emanuele, proponiamo in affitto locale commerciale cat. C/1,completamente ristrutturato, fronte strada, altissima visibilità. circa 16mq con wc
LEGGI ANCORA
Immobile in affitto a Salerno(SA PREMIUM
ad. piazza san francesco - locale 20 mq ristrutturato
negozio Centro Città Via Cosimo Vestuti
A ridosso di Piazza San Francesco e dello Stadio Donato Vestuti, e più precisamente in via Costantino l’Africano n. 11, proponiamo in locazione un locale commerciale fronte strada di circa 20 mq, completamente ristrutturato e dotato di regolare certificato di agibilit . L’immobile si compone di un unico […]
LEGGI ANCORA
Negozio SALERNO €.500 MQ.28 Vani 1
negozio Torrione Via Felline 500 € mese
In affitto a Salerno, nella rinomata zona di Torrione Alto, proponiamo un interessante negozio situato in Via Felline . Questo locale commerciale di 28 mq. circa, posto al piano terra, è ideale per chi desidera avviare una nuova attività o trasferire quella esistente. Il negozio è composto da un ampio va […]
LEGGI ANCORA
Negozio SALERNO €.420 MQ.18 Vani 1
negozio Gelsi Rossi Via Luigi Guercio
In affitto a Salerno, proponiamo un interessante negozio situato in Via Luigi Guercio 92. Questo locale commerciale di 18 mq si trova al piano terra e si presenta in condizioni ottime, pronto per essere utilizzato. La disposizione interna comprende un vano principale e un bagno, rendendolo ideale per div […]
LEGGI ANCORA
Non perdere gli altri 140 annunci!










