N.B. Tutti le informazioni immobiliari sono fornite senza alcuna garanzia. Leggi il disclaimer.
Negozi o trivani in affitto a Roma in zona Appio Latino - pg. 2 di 19
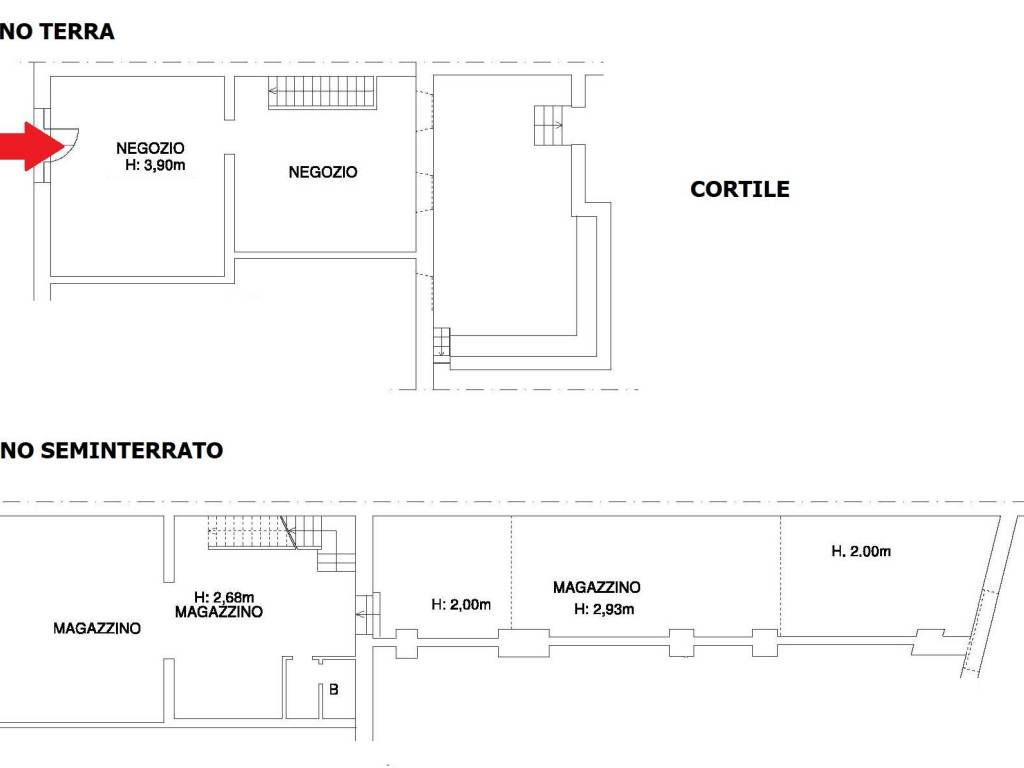
MODIFICA QUESTA RICERCAAffittasi negozio a Roma via Appia Nuova, 534, Appio latino PREMIUM
trivano in affitto a Roma
trilocale 1.500 € mese
Proponiamo in zona furio camillo trilocale di 60 mq arredato, ristrutturato con riscaldamento centralizzato, climatizzato. L'appartamento situato al piano 3 con ascensore, si compone di 2 camere, cucina, bagno, balcone. Prezzo di affitto 1500€ + 175€ di spese condominiali trimestrali. Ideale per studenti […]
LEGGI ANCORA
- prezzo medio appartamento in zona OMI C8 : 20,4 €/m²
- prezzo medio trivano in zona OMI C8 : 17,7 €/m²
Negozio in affitto a Roma via Mario Menghini, 41, Colli Albani
Proposto da:
negozio Appio Latino Via Mario Menghini 2.300 € mese
APPIA NUOVA, METRO A COLLI ALBANI, VIA MARIO MENGHINI 41 - 43 NELLA VIA PIU' COMMERCIALE DEL QUARTIERE PROPONIAMO IN AFFITTO NEGOZIO 2 AMPIE VETRINE IN OTTIME CONDIZIONI . PIANO TERRA DI 80 MQ CON SERVIZIO E AL PIANO S1 MAGAZZINO DI 45 MQ. IL NEGOZIO E' STATO ADIBITO NEGLI ULTIMI 30 ANNI AD ABBIGLIAMENTO […]
LEGGI ANCORA
Immobile in affitto a Roma(RM
Negozio in affitto a Roma via Famiano Strada, 10, Colli Albani
negozio Appio Latino Via Famiano Strada 700 € mese
Negozio di 45 metri quadrati piano terra con una vetrina su strada e disponibilità di posto auto condominiale. Il locale, ottimo anche come ufficio o studio professionale, è accessibile da via Famiano Strada e, a livello carrabile, da via Lemmi tramite sbarra azionabile con chiave o telecomando. Sul lato […]
LEGGI ANCORA
Negozio in affitto a Roma via Alessandro Luzio, 5, Appio latino
negozio Appio Latino Via Alessandro Luzio 750 € mese
APPIO LATINO adiacenze fermata metro Furio Camillo la Intermed consulenze immobiliari di Oscar Alvise Calao propone in locazione in Via Alessandro Luzio altezza Via Latina locale commerciale due vetrine fronte strada bilivelli di 59 mq catastali (consistenza 48 mq + magazzino sottostante di 20 mq) diviso […]
LEGGI ANCORA
Immobile in affitto a Roma(RM
Negozio in affitto a Roma via Norcia, 7, Furio Camillo
negozio Tuscolano Via Norcia 550 € mese
Proponiamo un locale commerciale in Via Norcia, disposto su unico livello che si estende per 27 metri quadrati. L'immobile è composto da un ambiente unico a pianta regolare e servizio igienico e si presenta in buone condizioni, dotato di una vetrina su strada che lo rende visibile e accattivante per i pa […]
LEGGI ANCORA
Immobile in affitto a Roma(RM
negozio Appio Latino Via Acqui 1.200 € mese
Attività commerciale - Re di Roma - Ponte Lungo, prescisamente in via Acqui, proponiamo in locazione un locale commerciale C/1 con una metratura interna di circa 37 mq. L'immobile, posizionato al piano strada e con una vet
LEGGI ANCORA
Appartamento in affitto in Via Gallia a Roma
negozio Appio Latino Via Gallia 3.000 € mese
Questo appartamento arredato con 2 camere da letto nel quartiere Appio-Latino offre un'esperienza di vita confortevole con comfort moderni. Dispone di aria condizionata centralizzata, cucina completamente attrezzata con lavastoviglie e forno e balcone perfetto per il relax. L'immobile include le spese ne […]
LEGGI ANCORA
- prezzo medio appartamento in zona OMI C9 : 24,6 €/m²
- prezzo medio appartamento in zona Appio Latino : 21,7 €/m²
negozio in affitto a Roma in zona Appio Latino
Negozio in affitto a Roma via Famiano Strada, 10, Colli Albani PREMIUM
Negozio di 45 metri quadrati piano terra con una vetrina su strada e disponibilità di posto auto condominiale. Il locale, ottimo anche come ufficio o studio professionale, è accessibile da via Famiano Strada e, a livello carrabile, da via L […]
LEGGI ANCORA
Negozio in affitto a Ponte, Roma
negozio 4.000 € mese
In zona Appia Nuova, precisamente a 50 metri dalla fermata Metro A - Ponte Lungo, inserito in un contesto commerciale con alto passaggio pedonale, proponiamo la locazione di uno storico negozio bi livello di 160 metri quadri circa complessivi, con tre vetrine su strada. L'immobile, annesso in un palazzo […]
LEGGI ANCORA
trivano in affitto a Roma in zona Appio Latino
trilocale Appio Latino Via Etruria 2.900 € mese
ID: 154496_99f1fc04 DISPONIBILE DA: 02/02/2026. PER PRENOTARE ONLINE: segui il link che trovi alla fine della pagina (sotto la mappa) e clicca su Affitta subito. Mensilità minime prenotabili: 1 [ITA] Via Etruria si trova nel quartiere San Giovanni, a pochi passi dalla metro A di piazza Re di Roma. L'ap […]
LEGGI ANCORA
- prezzo medio appartamento in zona OMI C9 : 24,6 €/m²
- prezzo medio trivano in zona OMI C9 : 23,2 €/m²
Immobile in affitto a Roma(RM
Affittasi negozio a Roma via Concordia, San Giovanni
Immobile in affitto a Roma(RM
negozio Appio Latino Via Albenga 1.200 € mese
Attività commerciale - Appio Latino, Ponte lungo, piu precisamente in Via Albenga, proponiamo in affitto un locale laboratorio su due livelli ad uso falegnameria parte C/1 (mq 38) e parte C/2 (mq 108) compreso macchinari e
LEGGI ANCORA
Affittasi negozio a Roma via Appia Nuova, 534, Appio latino PREMIUM
Affittasi negozio a Roma via Manlio Torquato, Furio Camillo
negozio Tuscolano Via Manlio Torquato 650 € mese
Rif: 5/3A - **Locale in Affitto a Roma - Via Manlio Torquato** Scopri questo locale commerciale di 48 m² situato in una posizione strategica a Roma, precisamente in Via Manlio Torquato. Composto da 24 m² al piano terra con ingresso tramite serranda e 24 m² al piano interrato, questo spazio offre un'ottim […]
LEGGI ANCORA
NEGOZIO ADIACENTE PARCO CAFFARELLA VIA UGHELLI
negozio Appio Latino Via Ferdinando Ughelli
NEGOZIO CON VETRINA SINGOLA POSTO SU DUE LIVELLI, COMPOSTO AL PIANO TERRA: UNICO AMBIENTE con condizionatore caldo freddo e vano SCALA; AL PIANO SEMINTERRATO UN VANO USO SOTTONEGOZIO, antibagno E SERVIZIO CON FINESTRA. L'IMMOBILE si presenta in ottimo stato di manutenzione, ristrutturato CON PAVIMENTO FL […]
LEGGI ANCORA
Immobile in affitto a Roma(RM
negozio Appio Latino Via Tommaso da Celano 750 € mese
Attività commerciale - APPIO LATINO - Via Tommaso da Celano - Proponiamo in locazione un locale commerciale di 25 mq, composto da un unico ambiente versatile, completo di soppalco di ulteriori 20 mq circa e servizio igieni
LEGGI ANCORA
Non perdere gli altri 321 annunci!







