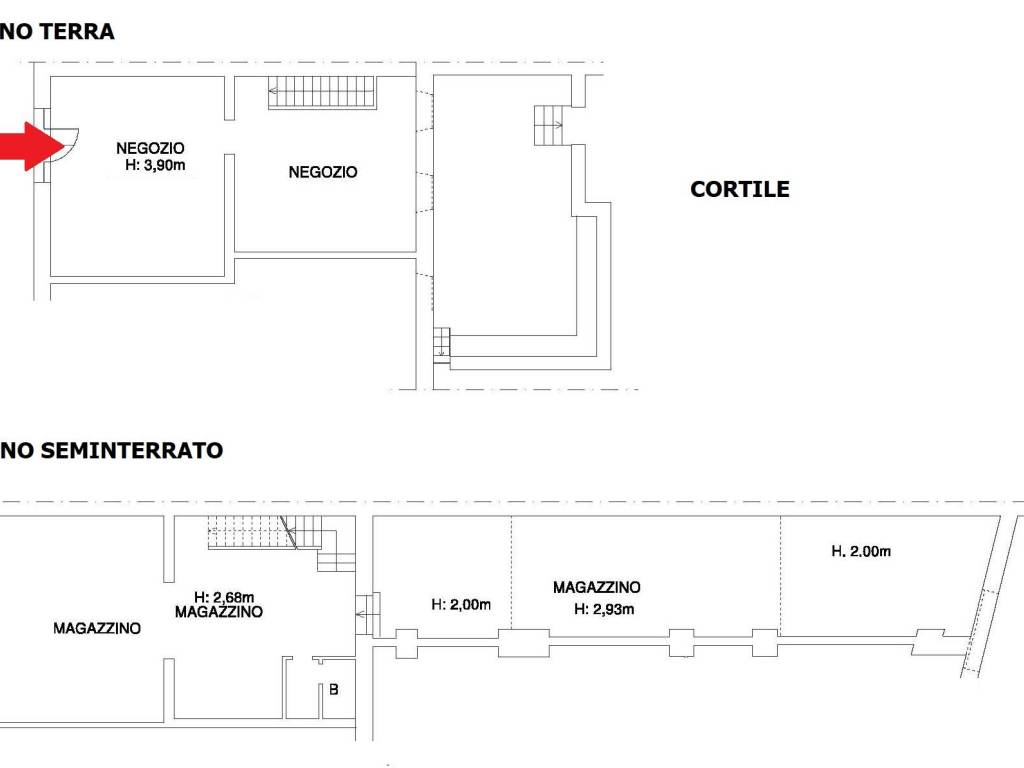
Valore appartamenti in affitto in zona Appio Latino
Per numero di annunci degli appartamenti in affitto attualmente presenti, la zona Appio Latino è tra quelle più significative a Roma. In media, nella zona, il prezzo richiesto è attualmente pari a 22 €/m² mese ed è nella maggioranza dei casi compreso tra 15,6 €/m² mese e 27,6 €/m² mese. Questo valore è molto simile alla media cittadina e rende la zona distante sia dai valori della zona Campo Marzio (i più alti), che da quelli della zona Case Rosse (i più bassi). LEGGI ANCORA
In base ai dati ufficiali sui contratti di locazione dell' Agenzia delle Entrate riferiti alla zona OMI C51 (APPIO LATINO (VIA LATINA)), che è quella più vicina alla zona Appio Latino, i prezzi al m² per un appartamento in affitto sono compresi tra 9,9 €/m² mese e 14,4 €/m² mese.
N.B. Tutti le informazioni immobiliari sono fornite senza alcuna garanzia. Leggi il disclaimer.







