N.B. Tutti le informazioni immobiliari sono fornite senza alcuna garanzia. Leggi il disclaimer.
Negozi con giardino e con riscaldamento autonomo e con termocondizionamento in affitto a Reggio nell'Emilia - pg. 17 di 18
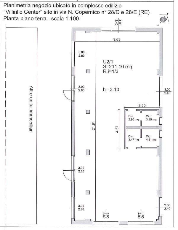
MODIFICA QUESTA RICERCAImmobile in affitto a Reggio Emilia(RE PREMIUM
locale di sgombero in affitto a Reggio nell'Emilia in zona San Prospero Strinati
negozio San Prospero Strinati 850 € mese
Negozio al piano terra in pieno centro storico composto da laboratorio, magazzino, ripostiglio, bagno ed antibagno. Libero Referente Chiara
LEGGI ANCORA
negozio in affitto a Reggio nell'Emilia in zona Città Storica
negozio Città Storica San Zenone 6.500 € mese
Descrizione REGGIO EMILIA ZONA CIRCOVALZIONE. Proponiamo IN AFFITTO ufficio/negozio di mq 400 tutto al piano terra in locazione, in esclusivo contesto direzionale di pregio, a due passi dal centro storico. L’immobile è ubicato in posizione strategica, L’immobile è ideale per società alla ricerca di spaz […]
LEGGI ANCORA
- prezzo medio ufficio in zona Città Storica : 11 €/m²
- prezzo medio ufficio a Reggio nell'Emilia : 9,7 €/m²
Affitto locale commerciale Via Martiri Della Bettola 128 Reggio nell'Emilia (RE
negozio Baragalla 2.200 € mese
Zona Baragalla - Negozio/Ufficio (Rif. KA0509) In zona commerciale di altissimo passaggio, servita da mezzi pubblici e ampi parcheggi liberi, Affittasi Negozio con tre vetrate e bagno privato, di mq 85 comm. Lo stabile di recente costruzione e stile moderno, con finiture interne di ottimo livello, si pre […]
LEGGI ANCORA
- prezzo medio ufficio in zona Baragalla : 7,9 €/m²
- prezzo medio locale commerciale a Reggio nell'Emilia : 6,4 €/m²
Negozio in affitto a Reggio nell'Emilia, Ospedale - Villaggio Manenti
locale di sgombero in affitto a Reggio nell'Emilia
Proposto da:
negozio 1.900 € mese
BARBIERI SERVIZI IMMOBILIARI propone in locazione ampio negozio di 170 mq, situato al piano terra con ingresso indipendente, in zona di forte passaggio, a Bagno di Rubiera (RE). L'immobile si presenta in ottime condizioni ed è composto da: un primo ambiente openspace fronte vetrina ideale come show-room, […]
LEGGI ANCORA
Ufficio in affitto a Reggio nell'Emilia, Centro Storico
negozio Città Storica Via Emilia San Pietro 800 € mese
Vetrina su corridoio d’ingresso ? Pavimento in cotto esagonale recente ? Travi a vista ? In un contesto signorile del Centro Storico, in Via Emilia San Pietro, proponiamo uno spazio versatile ad uso ufficio o negozio con vetrina, situato all’interno di un palazzo storico ben tenuto, in una zona centrale […]
LEGGI ANCORA
- prezzo medio ufficio in zona OMI B3 : 11 €/m²
- prezzo medio appartamento in zona OMI B3 : 10,8 €/m²
negozio in affitto a Reggio nell'Emilia in zona Città Storica
negozio Città Storica San Nicolò 450 € mese
In centro storico, adiacente alla via Emilia S. Pietro, affittasi negozio composto da un vano con vetrina, ripostiglio, servizio ed altri due piccoli vani utilizzabili come deposito poiché di altezza ridotta. Vano principale in parquet. Impianto elettrico autonomo, teleriscaldamento con termovalvole, acq […]
LEGGI ANCORA
Ufficio in affitto a Reggio nell'Emilia, Gardenia
negozio Città Storica Santo Stefano-Gardenia 1.950 € mese
Reggio Emilia, Emilia all'Angelo. Vicinanze Centro Storico - Bellissimo ufficio di rappresentanza di 300 mq ubicato in posizione strategica di forte passaggio adiacente a banche, bar e ristoranti, ottimamente collegato a tutti i servizi. L'asset si compone da ampi e luminosi locali con reception, bagni, […]
LEGGI ANCORA
- prezzo medio ufficio in zona Città Storica : 11 €/m²
- prezzo medio ufficio a Reggio nell'Emilia : 9,7 €/m²
negozio in affitto a Reggio nell'Emilia in zona Città Storica
negozio Città Storica Via Matteotti 450 € mese
Reggio Emilia, Mirabello. In Via Matteotti 4/D, affittasi negozio/ufficio, di 30 mq completo di vetrina, che offre una buona illuminazione naturale, e bagno privato. L' immobile situato al piano terra è ideale per piccole attività commerciali, o studi professionali. La posizione, lo rende un' ottima solu […]
LEGGI ANCORA
- prezzo medio ufficio in zona OMI C8 : 9,8 €/m²
- prezzo medio ufficio in zona Città Storica : 11 €/m²
affittasi locale commerciale e' richiesta garanzia bancaria
negozio
Da Privato. Negozio di 55 mq con due vetrine, servizi igienici; posizionato in zona densamente popolata, vicina ad altre attivita' commerciali. Ampio parcheggio. Possibilita' di ricavarne negozio di: Telefonia, merceria, abbigliamento, profumetia, erboristeria, laboratorio, studio medico od ufficio
LEGGI ANCORA
Affittasi ufficio a Reggio nell'Emilia via Vertoiba, Gavassa
negozio Gavassa 1.300 € mese
PRI1031 - CAMPOVOLO: Affittasi locale di 247mq più 135mq di deposito magazzino, appena ristrutturato, ideale per ufficio - negozio - palestra - ristorante. Utenze autonome. bassissime spese condominiali. Chiediamo cortesemente, qualora interessati all'immobile in oggetto, di lasciare il recapito telefoni […]
LEGGI ANCORA
- prezzo medio ufficio a Reggio nell'Emilia : 9,7 €/m²
- prezzo medio appartamento a Reggio nell'Emilia : 10,3 €/m²
trilocale 194mq
negozio Città Storica 2.500 € mese
trilocale 194mq Reggio nell'Emilia Reggio Nell'Emilia Emilia Romagna proponiamo in locazione posto in pieno centro storico cittadino in zona pedonale adatto anche per attivit bar piccola ristorazione di mq 194 totali disposto su 2 livelli composto da piano terra di mq 73 con 1 bagno e piano interrato di […]
LEGGI ANCORA
- prezzo medio appartamento in zona OMI B3 : 10,8 €/m²
- prezzo medio trivano in zona OMI B3 : 10,9 €/m²
Negozio in affitto a Reggio nell'Emilia corso Giuseppe Garibaldi, Centro Storico
negozio Città Storica Corso Giuseppe Garibaldi 900 € mese
CENTRO STORICO - CORSO GARIBALDI. Affittasi 3 locali commerciali al piano terra. COMPOSIZIONE: Negozio con vetrina direttamente su Corso Garibaldi + Magazzino interno al condominio di 15 mq e laboratorio di 34 mq sempre interno al condominio e al piano terra. ALTRE INFO - Posizione centrale - Vetrina su […]
LEGGI ANCORA
- prezzo medio appartamento in zona OMI B3 : 10,8 €/m²
- prezzo medio trivano in zona OMI B3 : 10,9 €/m²
Centro storico 80mq
negozio Città Storica Via Emilia San Pietro 1.500 € mese
Centro storico 80mq Reggio nell'Emilia Reggio Nell'Emilia Emilia Romagna centro storico in via emilia san pietro in splendida posizione situato sotto i portici di circa 80 mq complessivi con vetrina servizio e vetrinette pubblicitarie libero subito
LEGGI ANCORA
- prezzo medio locale commerciale in zona OMI B3 : 11,7 €/m²
- prezzo medio locale commerciale in zona Città Storica : 10,7 €/m²
Affitti negozi uffici capannoni a Reggio nell'Emilia
negozio
Reggio emilia: in posizione di alta visibilità e viabilità, nei pressi della zona annonaria e comoda al casello autostradale con collegamento diretto di imminente realizzazione, affittasi uffici di 300mq, frazionabili e personalizzabili, con parcheggio al piano primo di stabile direzionale commerciale. T […]
LEGGI ANCORA
Immobile in affitto a Reggio Emilia(RE PREMIUM
Capannone industriale in affitto a Reggio nell'Emilia, Codemondo
negozio Codemondo 1.100 € mese
PIEVE MODOLENA/ZONA ARTIGIANALE. Affittasi piccolo capannone di 250 mq totali (50 mq di negozio/ufficio) al piano terra di ampie metrature con 2 bagni e area cortiliva. Planimetria su richiesta. Richiesta: euro 1.100,00 mensili Riferimento: DOMC-965 Per maggiori informazioni chiamaci subito al 333 349143 […]
LEGGI ANCORA
Ufficio in affitto a Reggio nell'Emilia via Bismantova, 1, Baragalla - Canalina
negozio Baragalla 550 € mese
REGGIO NELL'EMILIA-CANALINA- Nella zona della Canalina proponiamo locale ad uso negozio o ufficio di 40 mq. Il locale è direttamente fronte strada con due vetrine che permettono una maggiore visibilità, l'immobile gode di ristrutturazioni esterne. E' composto da un locale principale più antibagno e bagno […]
LEGGI ANCORA
- prezzo medio ufficio in zona OMI D8 : 8,7 €/m²
- prezzo medio ufficio in zona Baragalla : 7,9 €/m²
Negozio in affitto a Reggio nell'Emilia, Roncocesi - Villaggio Crostolo
negozio Roncocesi 2.860 € mese
RIF. 1547 M - Reggio Nord: in prossimità dei due principali poli industriali e del casello autostradale, in ottimo contesto direzionale/commerciale l'Euroimmobiliare propone locale commerciale di 624 mq, con vetrine, ampi servizi. CAT. C/3 Ideale per attività commerciali di servizio alle imprese. Classe […]
LEGGI ANCORA
Non perdere gli altri 295 annunci!







