N.B. Tutti le informazioni immobiliari sono fornite senza alcuna garanzia. Leggi il disclaimer.
Loft o negozi o quadrivani o uffici in affitto a Reggio nell'Emilia - pg. 39 di 40
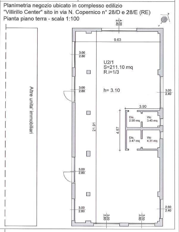
MODIFICA QUESTA RICERCAImmobile in affitto a Reggio Emilia(RE PREMIUM
- prezzo medio ufficio in zona OMI D5 : 9,2 €/m²
- prezzo medio ufficio a Reggio nell'Emilia : 9,7 €/m²
negozio in affitto a Reggio nell'Emilia
negozio 2.500 € mese
REGGIO EMILIA ZONA SAN PIETRO. SPAZIO COMMERCIALE /NEGOZIO DI 200 MQ Proponiamo stupendo negozio altamente commerciale/ avente una superfice di mq 200 tutto al piano terra, con grande visibilita' 6 ampie vetrine d'angolo. Forte passaggio automobilistico e commerciale NO Food. Disponibile dal 2 FEBBRAIO […]
LEGGI ANCORA
trilocale 194mq
negozio Città Storica 2.500 € mese
trilocale 194mq Reggio nell'Emilia Reggio Nell'Emilia Emilia Romagna proponiamo in locazione posto in pieno centro storico cittadino in zona pedonale adatto anche per attivit bar piccola ristorazione di mq 194 totali disposto su 2 livelli composto da piano terra di mq 73 con 1 bagno e piano interrato di […]
LEGGI ANCORA
- prezzo medio appartamento in zona OMI B3 : 10,8 €/m²
- prezzo medio trivano in zona OMI B3 : 10,4 €/m²
locale di sgombero in affitto a Reggio nell'Emilia in zona San Prospero Strinati
ufficio San Prospero Strinati 650 € mese
CENTRO STORICO: Locale commerciale con canna fumaria in centro storico composto al piano terra rialzato da salone ampio, cucina, collegato da scala interna ampia taverna/cantina, magazzino, due bagni, Cavedio esclusivo. Ottimo anche come Ufficio
LEGGI ANCORA
- prezzo medio ufficio in zona OMI B3 : 10,8 €/m²
- prezzo medio locale commerciale in zona OMI B3 : 10,8 €/m²
locale di sgombero in affitto a Reggio nell'Emilia
loft 2.860 € mese
Reggio Nord - Laboratorio / magazzino (Rif. CA2690) Laboratorio / deposito di 624 mq attualmente open space, con doppio ingresso e doppi servizi con antibagno. L'immobile è stato ristrutturato di recente ed è ubicato in ottimo contesto. Dispone di un accesso pedonale e uno carrabile per carico scarico m […]
LEGGI ANCORA
- prezzo medio loft a Reggio nell'Emilia : 9,7 €/m²
Centro storico 80mq
negozio Città Storica Via Emilia San Pietro 1.500 € mese
Centro storico 80mq Reggio nell'Emilia Reggio Nell'Emilia Emilia Romagna centro storico in via emilia san pietro in splendida posizione situato sotto i portici di circa 80 mq complessivi con vetrina servizio e vetrinette pubblicitarie libero subito
LEGGI ANCORA
- prezzo medio locale commerciale in zona OMI B3 : 10,8 €/m²
- prezzo medio locale commerciale in zona Città Storica : 9,5 €/m²
Affitto ufficio Via Monte Valestra 3 Reggio nell'Emilia (RE PREMIUM
- prezzo medio ufficio in zona OMI C7 : 10,6 €/m²
- prezzo medio ufficio in zona Città Storica : 10,7 €/m²
Affitto Locale commerciale Reggio nell'Emilia
negozio Città Storica Santo Stefano-Gardenia 2.000 € mese
NEGOZIO in edificio storico nel cuore del CENTRO in via Emilia Santo Stefano di 113 mq, dotato di servizi oltre a 30 mq di deposito/magazzino al piano interrato. Adatto a varie attivit
LEGGI ANCORA
- prezzo medio locale commerciale in zona OMI B3 : 10,8 €/m²
- prezzo medio locale commerciale in zona Città Storica : 9,5 €/m²
Negozio in affitto a Reggio nell'Emilia corso Giuseppe Garibaldi, Centro Storico
negozio Città Storica Corso Giuseppe Garibaldi 900 € mese
CENTRO STORICO - CORSO GARIBALDI. Affittasi 3 locali commerciali al piano terra. COMPOSIZIONE: Negozio con vetrina direttamente su Corso Garibaldi + Magazzino interno al condominio di 15 mq e laboratorio di 34 mq sempre interno al condominio e al piano terra. ALTRE INFO - Posizione centrale - Vetrina su […]
LEGGI ANCORA
- prezzo medio appartamento in zona OMI B3 : 10,8 €/m²
- prezzo medio trivano in zona OMI B3 : 10,4 €/m²
Affitti negozi uffici capannoni a Reggio nell'Emilia
negozio
Reggio emilia: in posizione di alta visibilità e viabilità, nei pressi della zona annonaria e comoda al casello autostradale con collegamento diretto di imminente realizzazione, affittasi uffici di 300mq, frazionabili e personalizzabili, con parcheggio al piano primo di stabile direzionale commerciale. T […]
LEGGI ANCORA
Ufficio in affitto a Reggio nell'Emilia viale Isonzo, Centro Storico
ufficio Città Storica Viale Isonzo 2.000 € mese
REGGIO EMILIA VIALI : In edificio direzionale ad altissima visibilità su strada di grande traffico, proponiamo in locazione un ufficio a piano terra, della superficie di mq 160.00 circa, composto da due ampi ambienti open space, un bagno. Parcheggi condominiali nel cortile comune. Chiediamo cortesemente, […]
LEGGI ANCORA
- prezzo medio ufficio in zona Città Storica : 10,7 €/m²
- prezzo medio appartamento in zona Città Storica : 10,6 €/m²
capannone in affitto a Reggio nell'Emilia in zona Buco del Signore
ufficio Buco del Signore 2.700 € mese
PRI1796-ACQUE CHIARE: Si propone in locazione un ufficio su due piani in una porzione di un capannone di un' azienda prestigiosa nella realta cittadina. L'immobile di circa 140 mq è composto da due servizi e due spaziose sale, speculari al piano terra e al primo piano. L' ufficio è di nuova costruzione c […]
LEGGI ANCORA
- prezzo medio ufficio in zona OMI D10 : 8,8 €/m²
- prezzo medio ufficio in zona Buco del Signore : 9,5 €/m²
Negozio in affitto a Reggio nell'Emilia, Gardenia PREMIUM
Capannone industriale in affitto a Reggio nell'Emilia via Gattalupa, 5, Ospizio - San Maurizio
loft San Maurizio
REGGIO EMILIA ZONA SAN MAURIZIOP/QUINZIO locazione: capannone indipendente di mq .1.400 costituito da un blocco uffici di mq 1.000 con doppi servizi ed un magazzino/ laboratorio di mq 400 con blocco servizi e pensilina per il carico e scarico. l'immobile si presenta in buone condizioni, completo di impia […]
LEGGI ANCORA
Negozio in affitto a Reggio nell'Emilia, Centro Storico
negozio Città Storica 3.000 € mese
Negozio con vetrina sulla via emilia Negozio di circa 80 mq con due locali sul retro per magazzino e un servizio igienico
LEGGI ANCORA
- prezzo medio appartamento in zona Città Storica : 10,6 €/m²
- prezzo medio appartamento a Reggio nell'Emilia : 10,2 €/m²
Affitto locale commerciale Via Giosue' Carducci Reggio nell'Emilia (RE
negozio Città Storica 2.300 € mese
Reggio Centro Storico - Negozio (Rif. CA6484) Nel complesso immobiliare di Palazzo Busetti, completamente restaurato e riqualificato, al piano terra commerciale denominato "Galleria Del Monte" Negozio di mq 95, superficie calpestabile mq 72, diviso in due vani con quattro vetrine (di cui due sulla galler […]
LEGGI ANCORA
- prezzo medio locale commerciale in zona OMI B3 : 10,8 €/m²
- prezzo medio locale commerciale in zona Città Storica : 9,5 €/m²
Attività commerciale in affitto a Reggio nell'Emilia via Francesco Crispi, Centro Storico
negozio Città Storica Via Francesco Crispi 2.800 € mese
REGGIO EMILIA ZONA Centro storico , situata nel cuore di Reggio Emilia , siamo lieti di offrire in affitto un esclusivo negozio di mq 70 circa, nella rinomata Crispi . Richiesta fidejussione. C.E in fase di richiesta rif 129502 Disponibili altre location di pregio all'interno del quadrilatero del centro […]
LEGGI ANCORA
- prezzo medio appartamento in zona OMI B3 : 10,8 €/m²
- prezzo medio appartamento in zona Città Storica : 10,6 €/m²
Affitto Locale commerciale Reggio nell'Emilia
negozio 3.600 € mese
Proponiamo, zona Foro Boario, negozio in primaria posizione di mq. 235 con doppi servizi d'angolo con 6 vetrine in pregevole struttura commerciale adatto per qualsiasi tipo di attività. Ampio parcheggio. Riscaldamento e raffrescamento autonomo con pompa di calore. (Classe Energetica in fase di richiesta
LEGGI ANCORA
Immobile in affitto a Reggio Emilia(RE PREMIUM
- prezzo medio ufficio in zona OMI D5 : 9,2 €/m²
- prezzo medio ufficio a Reggio nell'Emilia : 9,7 €/m²
Negozio in affitto a Reggio nell'Emilia, Centro Storico
negozio Città Storica 1.500 € mese
Proponiamo in affitto un negozio situato nel cuore del centro storico, con una superficie di circa 70mq distribuiti su 3 vani. La classe energetica è di tipo C, garantendo un buon livello di efficienza energetica. L'immobile è ideale per attività commerciali che richiedono spazio e visibilità, grazie all […]
LEGGI ANCORA
- prezzo medio trivano in zona Città Storica : 10,4 €/m²
- prezzo medio trivano a Reggio nell'Emilia : 9,6 €/m²
Ufficio in affitto a Reggio nell'Emilia, Buco del Signore - Acque Chiare
ufficio Buco del Signore Via Che Guevara 800 € mese
ASI GLM 001 - ROSTA NUOVA, con affaccio su Via Che Guevara proponiamo ufficio molto luminoso con servizio igienico finestrato e con antibagno, oltre a spazioso balcone di circa 25 mq. Ascensore, aria condizionata, utenze autonome e riscaldamento con contabilizzatori. L'incaricato in agenzia è Ivan con Ma […]
LEGGI ANCORA
- prezzo medio ufficio in zona OMI C7 : 10,6 €/m²
- prezzo medio ufficio in zona Buco del Signore : 9,5 €/m²
bivano in affitto a Reggio nell'Emilia in zona Città Storica
negozio Città Storica Duomo 1.000 € mese
STAI CERGANDO LA SEDE DEL TUO PROSSIMO NEGOZIO O ESERCIZIO PER LA SOMMINISTRAZIONE DI CIBI E BEVANDE? RE/MAX PROPONE LA SOLUZIONE IDEALE Affittasi negozio nel cuore del Centro storico di Reggio nell'Emilia, situato al piano terra di una delle vie di maggiore passaggio della città. Composto da 2 loca […]
LEGGI ANCORA
- prezzo medio appartamento in zona OMI B3 : 10,8 €/m²
- prezzo medio bivano in zona OMI B3 : 11,6 €/m²
Non perdere gli altri centinaia di annunci!






