N.B. Tutti le informazioni immobiliari sono fornite senza alcuna garanzia. Leggi il disclaimer.
Locali di sgombero o negozi edificio storico in affitto a Reggio nell'Emilia in zona San Prospero Strinati - pg. 2 di 3
MODIFICA QUESTA RICERCAImmobile in affitto a Reggio Emilia(RE PREMIUM
Negozio in affitto a Reggio nell'Emilia via Niccolò Copernico, Carrozzone
negozio Carrozzone 3.600 € mese
LOCALE COMMERCIALE – ZONA ANNONARIA / REGGIO NORD. Proponiamo in locazione ampio locale commerciale di circa 235 mq posto al piano terra di edificio direzionale/commerciale di rappresentanza, situato all’interno del Grevill Center. L’immobile gode di ottima visibilità su strada ad alto passaggio. L’area […]
LEGGI ANCORA
Affittasi negozio a Reggio nell'Emilia via Raffaello Sanzio, 48, Mancasale
negozio Mancasale 1.700 € mese
Reggio nord Mancasale - Laboratorio (Rif. KV1029) Laboratorio al piano terra di complessivi mq 268 per altezza m 3,40 con due vetrine e due accessi, di cui uno privo di barriere architettoniche. L'immobile è diviso in due vani oltre a quattro box uffici, antibagno, due servizi e doccia. Riscaldamento e r […]
LEGGI ANCORA
Immobile in affitto a Reggio Emilia(RE
Immobile in affitto a Reggio Emilia(RE
Immobile in affitto a Reggio Emilia(RE
Immobile in affitto a Reggio Emilia(RE PREMIUM
Affitto locale commerciale Via Bernardino Zacchetti 10 Reggio nell'Emilia (RE
negozio Tribunale Via Bernardino Zacchetti 4.500 € mese
Reggio Nord - Locale commerciale (Rif. KV1007) Locale commerciale da adibirsi a ristorante (possibilmente cucina tipica) per una superficie totale di mq 480 così suddivisa: al piano terra mq 300 che comprendono sala ristorante per circa cento coperti, cucina, zona plonge, servizi per i clienti; al piano […]
LEGGI ANCORA
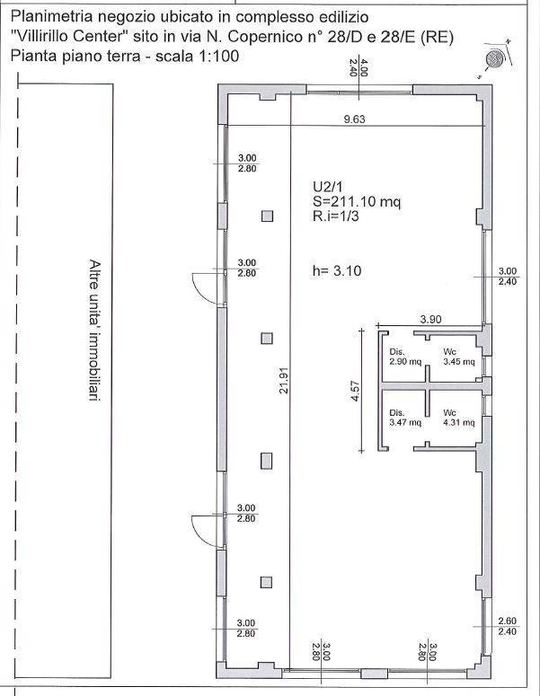
negozio in affitto a Reggio nell'Emilia in zona San Prospero Strinati
negozio San Prospero Strinati 900 € mese
CENTRO STORICO: AFFITTASI negozio in zona centrale di mq 25 in posizione di grande passaggio. L'immobile è dotato di impianto elettrico con i corpi illuminanti, impianto a pompa di calore caldo/freddo. NO SERVIZIO IGIENICO. Solo referenziati
LEGGI ANCORA
negozio in affitto a Reggio nell'Emilia in zona Città Storica
negozio Città Storica 10.000 € mese
REGGIO EMILIA-ZONA CENTRALE-LOCALI COMMERCIALI- in bella posizione vicina al Centro, posto al 1° piano con ascensore, proponiamo locali commerciali/negozio di 600mq. + 300mq. di uffici + 500mq. di terrazzo panoramico per esposizione accessibile con comoda rampa. Ideale per Palestre, Beauty Farm, Studi Me […]
LEGGI ANCORA
negozio in affitto a Reggio nell'Emilia
negozio 5.500 € mese
Locale in Affitto nel Direzionale Policar - Un'opportunità da non perdere! ** Scopri questo ampio locale al primo piano, situato nel prestigioso Direzionale Policar. Con una superficie commerciale di 600 m² e 585 m² calpestabili, questo open space completamente vetrato offre un'illuminazione naturale ec […]
LEGGI ANCORA
- prezzo medio loft a Reggio nell'Emilia : 9,7 €/m²
Immobile in affitto a Reggio Emilia(RE
Negozio in affitto a Reggio nell'Emilia via Felice Cavallotti, 5, Mancasale PREMIUM
Immobile in affitto a Reggio Emilia(RE
negozio 3.900 € mese
Attività commerciale - RIF. 1557 - MERIDIANA: proponiamo in affitto negozio di 235 mq. Canone 3.900 euro al mese
LEGGI ANCORA
Affittasi negozio a Reggio nell'Emilia via Bernardino Zacchetti, San Prospero - Tribunale
negozio Tribunale Via Bernardino Zacchetti 850 € mese
Sei alla ricerca di uno spazio perfetto per il tuo business? Ti proponiamo un locale ad uso ufficio, magazzino o laboratorio di circa 100 mq, situato in una posizione strategica nella zona del Tribunale. **Caratteristiche principali:** - Superficie: 100 mq circa, con un bagno. - Vetrine: Due vetrine fron […]
LEGGI ANCORA
- prezzo medio appartamento in zona OMI D4 : 7,5 €/m²
- prezzo medio appartamento in zona Tribunale : 8,2 €/m²
Immobile in affitto a Reggio Emilia(RE
Negozio in affitto a Reggio nell'Emilia via Cisalpina, San Prospero - Tribunale
negozio Tribunale Via Cisalpina 1.600 € mese
PRI1702-TRIBUNALE : Proponiamo in locazione un'area/negozio di prestigio, situata in una zona di grande passaggio e facilmente accessibile dall'autostrada, perfetta per chi cerca visibilità e comodità. Questa proprietà esclusiva si estende per 175mq al piano terra e viene fornita con posto auto esterno p […]
LEGGI ANCORA
Affitto Capannone Via Antonio Gramsci 5 Reggio nell'Emilia (RE
locale di sgombero Via Antonio Gramsci 2.350 € mese
Reggio nord - Capannone (Rif. VJ1009) Capannone di mq 480 circa per altezza m 6 con cinque portoni carrai e uscite pedonali comprensivo di spogliatoi e servizi. Riscaldamento e raffrescamento autonomi, corpi illuminanti, prese 220 e anello anti incendio. Tutti gli impianti sono in ottimo stato di manuten […]
LEGGI ANCORA
Immobile in affitto a Reggio Emilia(RE PREMIUM
Negozio in affitto a Reggio nell'Emilia
negozio 3.600 € mese
Proponiamo, zona Foro Boario, negozio in primaria posizione di mq. 235 con doppi servizi d'angolo con 6 vetrine in pregevole struttura commerciale adatto per qualsiasi tipo di attività. Ampio parcheggio. Riscaldamento e raffrescamento autonomo con pompa di calore
LEGGI ANCORA
Negozio in affitto a Reggio nell'Emilia, Aeroporto - Santa Croce
negozio Santa Croce 3.000 € mese
Reggio Emilia, Aeroporto. In zona Tecnopolo/campovolo proponiamo locale commerciale dotato di ottima visibilità. L'immobile ha una dimensione di 315mq ed attualmente è suddiviso in 8 vani e 2 bagni. E' presente un'ingresso/reception, una sala ristoro, una sala server climatizzata, un locale tecnico ed al […]
LEGGI ANCORA
Immobile in affitto a Reggio Emilia(RE
Non perdere gli altri 21 annunci!




