N.B. Tutti le informazioni immobiliari sono fornite senza alcuna garanzia. Leggi il disclaimer.
Negozi con arredamento e con cantina, di recente ristrutturazione in affitto a Reggio nell'Emilia in zona Città Storica - pg. 9 di 12
MODIFICA QUESTA RICERCANegozio in affitto a Reggio nell'Emilia via Fratelli Manfredi, Gardenia PREMIUM
Negozio in affitto a Reggio nell'Emilia, Centro Storico
negozio Città Storica 1.200 € mese
Affittasi negozio mq 50 in Centro Storico nei pressi di Piazza Martiri 7 Luglio
LEGGI ANCORA
Altro di 210 mq a Reggio nell'Emilia
negozio Città Storica Via Monte Ventasso 2.700 € mese
Reggio sud - Spazio Commerciale (Rif. KA0474) di complessivi mq 285, ex sportello bancario, composto da: - al piano terra negozio/ufficio di mq 170 con cinque vetrine diviso in vani tramite pareti e pannelli di vetro munito di doppi servizi di cui uno per diversamente abili; - al piano interrato archivio […]
LEGGI ANCORA
- prezzo medio ufficio in zona OMI C7 : 11 €/m²
- prezzo medio ufficio in zona Città Storica : 10,9 €/m²
Altro di 38 mq a Reggio nell'Emilia
negozio Città Storica 850 € mese
Reggio Centro Storico - Negozio (Rif. CA4198) Negozio di mq 38 con una vetrina. Il locale si sviluppa in due vani e presenta particolari architettonici a volta tipici del centro storico. Vi sono corpi illuminanti, il riscaldamento e il condizionamento sono autonomi con pompa di calore e la vetrina vanta […]
LEGGI ANCORA
NEGOZIO a Reggio nell'Emilia
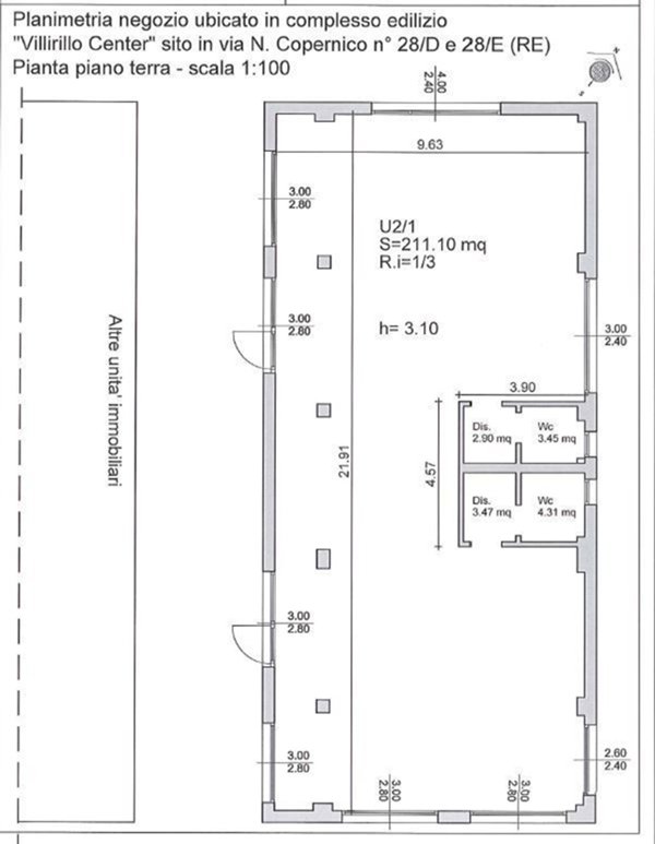
negozio Carrozzone Via Nicolò Copernico 2.900 € mese
Proponiamo, zona Foro Boario, negozio in primaria posizione di mq. 235 con doppi servizi d'angolo con 6 vetrine in pregevole struttura commerciale adatto per qualsiasi tipo di attività. Ampio parcheggio. Riscaldamento e raffrescamento autonomo con pompa di calore
LEGGI ANCORA
Ufficio in affitto a Reggio nell'Emilia, Gardenia
negozio Città Storica Santo Stefano-Gardenia 1.950 € mese
Reggio Emilia, Emilia all'Angelo. Vicinanze Centro Storico - Bellissimo ufficio di rappresentanza di 300 mq ubicato in posizione strategica di forte passaggio adiacente a banche, bar e ristoranti, ottimamente collegato a tutti i servizi. L'asset si compone da ampi e luminosi locali con reception, bagni, […]
LEGGI ANCORA
- prezzo medio ufficio in zona Città Storica : 10,9 €/m²
- prezzo medio ufficio a Reggio nell'Emilia : 9,6 €/m²
Immobile in affitto a Reggio Emilia(RE PREMIUM
Negozio in affitto a Reggio nell'Emilia via Zanichelli, Regina Pacis
Proposto da:
negozio Regina Pacis Via Zanichelli 850 € mese
Rif: RP020 - In posizione strategica e di forte passaggio, proponiamo in affitto un locale commerciale di circa 70 mq, pronto all’uso e adatto a qualsiasi tipo di attività. L’immobile è composto da tre ambienti collegati tra loro oltre a un bagno ed è situato su strada ben visibile, vicino ad altre attiv […]
LEGGI ANCORA
Negozio in affitto a Reggio nell'Emilia piazza del Monte, Centro Storico
negozio Città Storica Piazza del Monte
Splendido negozio con ampie vetrine su Piazza Del Monte nel cuore del centro storico e dell'area shopping di Reggio Emilia, con un forte passaggio pedonale. L'immobile è composto da un locale luminoso e accogliente di 22 mq e altezza di 3,5 metri con annesso laboratorio di 18 mq. Ideale per attività comm […]
LEGGI ANCORA
Attività / Licenza in affitto a Reggio Emilia(RE
Immobile in affitto a Reggio Emilia(RE
Negozio in affitto a Reggio nell'Emilia via Luciano Fornaciari, 3, Centro Storico
negozio Città Storica 12.750 € mese
Reggio centro storico - Locale commerciale (Rif. KV1056) Vicino alla storica "Piazza dei Leoni", Negozio di mq 425 con diversi ingressi e 12 vetrine. L'immobile conta vari vani collegabili, ripostigli e magazzini al piano interrato, raggiungibili tramite scale ad uso esclusivo. Lo stato di conservazione […]
LEGGI ANCORA
Negozio in affitto a Reggio nell'Emilia via Luciano Fornaciari, 3, Centro Storico
negozio Città Storica 820 € mese
Reggio centro storico - Locale commerciale (Rif. KV1056/1) Vicino alla storica "Piazza dei Leoni", Negozio di mq 27,13 con due ingressi e tre vetrine. L'immobile è open space e ha un magazzino al piano interrato, raggiungibile tramite una scala ad uso esclusivo. Lo stato di conservazione attuale è da ris […]
LEGGI ANCORA
Negozio in affitto a Reggio nell'Emilia via Luciano Fornaciari, 3, Centro Storico
negozio Città Storica 910 € mese
Reggio centro storico - Locale commerciale (Rif. KV1056/2) Affacciato sulla storica "Piazza dei Leoni", Negozio di mq 30,36 con un ingresso, una vetrina e soffitto a volta. L'immobile è open space e ha un magazzino al piano interrato, raggiungibile tramite una scala ad uso esclusivo. Lo stato di conserva […]
LEGGI ANCORA
Affittasi negozio a Reggio nell'Emilia via Luciano Fornaciari, 3, Centro Storico
negozio Città Storica 1.400 € mese
Reggio centro storico - Locale commerciale (Rif. KV1056/3) Affacciato sulla storica "Piazza dei Leoni", Negozio di mq 46,53 con un ingresso, una vetrina e soffitto a volta. L'immobile è open space e ha un magazzino e due ripostigli al piano interrato, raggiungibili tramite una scala ad uso esclusivo. Lo […]
LEGGI ANCORA
Attività / Licenza in affitto a Reggio Emilia(RE
locale di sgombero in affitto a Reggio nell'Emilia in zona Città Storica
negozio Città Storica Giardini Pubblici 1.400 € mese
Stai cercando un bel negozio in zona centrale e di grande passaggio? Adiacente Piazza del Monte e Piazza dei Teatri su via Crispi, proponiamo negozio di 85 mq con una vetrina, il negozio è fornito di servizio, ripostiglio e magazzino soppalcato, il negozio può essere libero e disponibile in breve tempo […]
LEGGI ANCORA
Negozio in affitto a Reggio nell'Emilia via Fratelli Manfredi, Gardenia PREMIUM
negozio in affitto a Reggio nell'Emilia in zona Città Storica
negozio Città Storica 10.000 € mese
REGGIO EMILIA-ZONA CENTRALE-LOCALI COMMERCIALI- in bella posizione vicina al Centro, posto al 1° piano con ascensore, proponiamo locali commerciali/negozio di 600mq. + 300mq. di uffici + 500mq. di terrazzo panoramico per esposizione accessibile con comoda rampa. Ideale per Palestre, Beauty Farm, Studi Me […]
LEGGI ANCORA
- prezzo medio locale commerciale in zona OMI D4 : 7,5 €/m²
- prezzo medio locale commerciale in zona Città Storica : 10,7 €/m²
Negozio in affitto a Reggio nell'Emilia via Naborre Campanini, 8, Centro Storico
negozio Città Storica 2.300 € mese
Reggio centro storico - Locale commerciale (Rif. KV0322/A) Nel cuore del centro storico cittadino locale di ampie dimensioni che si sviluppa su due livelli per una superficie di mq 410 circa, oltre a magazzino posto al piano interrato di mq 100 circa per una superficie commerciale di circa mq 443. Un ing […]
LEGGI ANCORA
negozio in affitto a Reggio nell'Emilia in zona Città Storica
negozio Città Storica Duomo 3.200 € mese
All'interno di un palazzo storico prestigioso situato nel cuore del centro storico, affittasi ampi locali ad uso negozio, convertibili anche ad uso ufficio, con possibilità di dividerli e locarne anche solo una porzione (come da planimetria allegata), perfetto inoltre per la realizzazione di un magnifico […]
LEGGI ANCORA
- prezzo medio ufficio in zona OMI B3 : 10,9 €/m²
- prezzo medio ufficio in zona Città Storica : 10,9 €/m²
Non perdere gli altri 194 annunci!





