N.B. Tutti le informazioni immobiliari sono fornite senza alcuna garanzia. Leggi il disclaimer.
Locali di sgombero o negozi con cantina in affitto a Reggio nell'Emilia in zona Città Storica - pg. 8 di 13
MODIFICA QUESTA RICERCAImmobile in affitto a Reggio Emilia(RE PREMIUM
Negozio in affitto a Reggio nell'Emilia via Umberto Poli, Rosta Nuova
negozio Rosta Nuova Via Martiri di Cervarolo 550 € mese
A003Re - Iconacasa Reggio Emilia Rosta Nuova agenzia affiliata in Via Martiri di Cervarolo 19/N Reggio Nell'Emilia, propone in AFFITTO locale commerciale al piano terra. Per eventuali appuntamenti o maggiori informazioni chiama ora il numero +39 334.2711100 o manda un e-mail a reggioemiliarostanuova@icon […]
LEGGI ANCORA
Altro di 38 mq a Reggio nell'Emilia
negozio Città Storica 850 € mese
Reggio Centro Storico - Negozio (Rif. CA4198) Negozio di mq 38 con una vetrina. Il locale si sviluppa in due vani e presenta particolari architettonici a volta tipici del centro storico. Vi sono corpi illuminanti, il riscaldamento e il condizionamento sono autonomi con pompa di calore e la vetrina vanta […]
LEGGI ANCORA
Negozio in affitto a Reggio nell'Emilia, Centro Storico
negozio Città Storica 2.500 € mese
Locale commerciale/ufficio di 230 mq in zona ad alto passaggio con ampio parcheggio – a pochi minuti dal centro Proponiamo in affitto ampio locale commerciale/ufficio di circa 230 mq, situato in posizione strategica ad alto traffico veicolare e pedonale, a ridosso del centro città. L’immobile si presenta […]
LEGGI ANCORA
Immobile in affitto a Reggio Emilia(RE
Negozio in affitto a Reggio nell'Emilia via Emilia Santo Stefano, Centro Storico
Proposto da:
Immobiliare Porta Castello di Bonacini Luigi
negozio Città Storica Santo Stefano-Gardenia 800 € mese
Negozio di circa 40 mq in centro storico, posizione centrale di via Emilia S. Stefano. Suddiviso in 2 ambientI di circa 19 mq ciascuno, più il servizio. In perfette condizioni, con impianti a norma e riscaldamento a pompa di calore. Libero a breve. possibilità di ULTERIORE magazzino sul lato posteriore d […]
LEGGI ANCORA
NEGOZIO a Reggio nell'Emilia
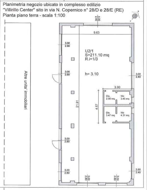
negozio Carrozzone Via Nicolò Copernico 2.900 € mese
Proponiamo, zona Foro Boario, negozio in primaria posizione di mq. 235 con doppi servizi d'angolo con 6 vetrine in pregevole struttura commerciale adatto per qualsiasi tipo di attività. Ampio parcheggio. Riscaldamento e raffrescamento autonomo con pompa di calore
LEGGI ANCORA
negozio in affitto a Reggio nell'Emilia in zona Città Storica
negozio Città Storica Duomo 1.500 € mese
Caffetteria Cocktail & Wine Bar Nel centro della movida cittadina proponiamo zona piazza Fontanesi "Caffetteria Cocktail & Wine Bar". Arredi eleganti, posti interni e ampia distesa esterna. Interessante fatturato. Canone di locazione interessante € 1.500, 00 mensili. Acconto + dilazioni da concordare. Ap […]
LEGGI ANCORA
Ufficio in affitto a Reggio nell'Emilia piazza della Vittoria, 1, Centro Storico
locale di sgombero Città Storica 1.050 € mese
PRI1535 - CENTRO STORICO- Isolato San Rocco - Piazza Della Vittoria: Si propone in locazione al primo piano, ufficio/laboratorio di circa 120mq composto da 7 postazioni, 2 servizi, reception e cantina ad uso archivio/magazzino. Attualmente libero - Ideale per ufficio di professionisti/centro estetico. La […]
LEGGI ANCORA
- prezzo medio ufficio in zona OMI B3 : 11 €/m²
- prezzo medio ufficio in zona Città Storica : 11,1 €/m²
Negozio in affitto a Reggio nell'Emilia via Emilia all'Angelo, Carrozzone
negozio Città Storica Santo Stefano-Gardenia 1.200 € mese
SANTO STEFANO - VIA EMILIA ALL'ANGELO. Affittasi negozio al piano terra composto da 2 locali uso negozio + 2 locali retro. Libero a breve. RICHIESTA: euro 1.200,00 trattabili RIFERIMENTO: domc-935. Per maggiori informazioni mandaci subito un messaggio Whatsapp al 371 5235526 (a qualsiasi ora) o compila i […]
LEGGI ANCORA
- prezzo medio appartamento in zona OMI D6 : 10 €/m²
- prezzo medio appartamento in zona Città Storica : 11 €/m²
Negozio in affitto a Reggio nell'Emilia, Centro Storico
negozio Città Storica 1.200 € mese
RIF. 1517 M - CENTRO STORICO: proponiamo in affitto negozio di 120 mq, con altezza inferiore a 3 mt., non e' possibile chiedere il cambio di destinazione d'uso. Solo attività commerciale TIPOLOGIA d1 ( ex b1) Esercizi commerciali di vicinato destinati alla vendita mediante distributori automatici insedia […]
LEGGI ANCORA
Negozio in affitto a Reggio nell'Emilia PREMIUM
Affittasi negozio a Reggio nell'Emilia, Centro Storico
negozio Città Storica 1.000 € mese
Negozio come nuovo nel cuore del centro storico. La posizione è strategica, sulla Via Emilia zona pedonale, con ottima visibilità grazie alla vetrina. Il negozio è libero subito e dispone di un bagno, riscaldamento e raffrescamento con pompa di calore. Inoltre, è possibile ampliare lo spazio collegando i […]
LEGGI ANCORA
negozio in affitto a Reggio nell'Emilia in zona Città Storica
negozio Città Storica Piazza Fontanesi 3.000 € mese
Cedesi attività di bar/bistrot/ristorazione, rinnovato completamente, ampia cucina nuova attrezzata di tutto, lavoro per 6/7 persone, ottimo per nucleo familiare; possibilità di 90 posti, distesa estiva e affitto di 3000€+IVA. Per qualsiasi informazione telefonare a Giovanni De Vietro
LEGGI ANCORA
locale di sgombero in affitto a Reggio nell'Emilia in zona Città Storica
negozio Città Storica Santo Stefano-Gardenia 1.200 € mese
REGGIO EMILIA - Centro Storico - Nel centro storico di Reggio Emilia e precisamente in Via Emilia Santo Stefano, uno dei punti più commerciali del centro storico, vi proponiamo in locazione un Negozio, completamente ristrutturato, piano strada con porta e vetrina fronte strada. Il locale è composto da ne […]
LEGGI ANCORA
Stanza in appartamento in affitto a Reggio Emilia
negozio Città Storica 400 € mese
Stanze in affitto, per studenti o giovani lavoratori, nelle prossimità del centro storico. Le stanze si trovano in un appartamento di 150 mq. ristrutturato a nuovo, composto da 5 camere di cui 2 matrimoniali e 3 singole, disimpegno, 2 bagni ampi finestrati con doccia, un ripostiglio, una lavanderia, sala […]
LEGGI ANCORA
- prezzo medio appartamento in zona OMI D4 : 8,2 €/m²
- prezzo medio appartamento in zona Città Storica : 11 €/m²
Affittasi negozio a Reggio nell'Emilia via Emilia San Pietro, Centro Storico
negozio Città Storica Via Emilia San Pietro 2.700 € mese
REGGIO EMILIA CENTRO STORICO In pieno centro storico via Emilia san pietro, proponiamo in locazione un negozio in posizione strategica con 2 vetrine fronte strada su via emilia San Pietro oltre a servizi. La superficie complessiva misura circa mq. 180 su due piani .C.E G rif 102281 afftto euro 2.700 mens […]
LEGGI ANCORA
Immobile in affitto a Reggio Emilia(RE PREMIUM
Negozio in affitto a Reggio nell'Emilia via Zanichelli, Regina Pacis
Proposto da:
negozio Regina Pacis Via Zanichelli 850 € mese
Rif: RP020 - In posizione strategica e di forte passaggio, proponiamo in affitto un locale commerciale di circa 70 mq, pronto all’uso e adatto a qualsiasi tipo di attività. L’immobile è composto da tre ambienti collegati tra loro oltre a un bagno ed è situato su strada ben visibile, vicino ad altre attiv […]
LEGGI ANCORA
Negozio in affitto a Reggio nell'Emilia, Centro Storico
negozio Città Storica 1.200 € mese
Affittasi negozio mq 50 in Centro Storico nei pressi di Piazza Martiri 7 Luglio
LEGGI ANCORA
negozio in affitto a Reggio nell'Emilia in zona Città Storica
negozio Città Storica 10.000 € mese
REGGIO EMILIA-ZONA CENTRALE-LOCALI COMMERCIALI- in bella posizione vicina al Centro, posto al 1° piano con ascensore, proponiamo locali commerciali/negozio di 600mq. + 300mq. di uffici + 500mq. di terrazzo panoramico per esposizione accessibile con comoda rampa. Ideale per Palestre, Beauty Farm, Studi Me […]
LEGGI ANCORA
- prezzo medio locale commerciale in zona OMI D4 : 8 €/m²
- prezzo medio locale commerciale in zona Città Storica : 10,3 €/m²
Non perdere gli altri 213 annunci!






