N.B. Tutti le informazioni immobiliari sono fornite senza alcuna garanzia. Leggi il disclaimer.
Negozi con riscaldamento autonomo e con termocondizionamento in affitto a Reggio nell'Emilia in zona Carrozzone - pg. 2 di 4
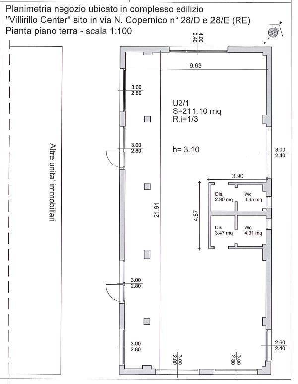
MODIFICA QUESTA RICERCANegozio in affitto a Reggio nell'Emilia, Pieve Modolena PREMIUM
Immobile in affitto a Reggio Emilia(RE
negozio Città Storica 600 € mese
Attività commerciale - RIF. 1560 M - CENTRO STORICO: proponiamo in affitto un locale commerciale in centro storico. Il negozio è situato a piano terra, ha due vetrine ed ha una superficie di 25 mq, è in ottimo stato, compl
LEGGI ANCORA
Negozio in affitto a Reggio nell'Emilia
negozio 3.600 € mese
Proponiamo, zona Foro Boario, negozio in primaria posizione di mq. 235 con doppi servizi d'angolo con 6 vetrine in pregevole struttura commerciale adatto per qualsiasi tipo di attività. Ampio parcheggio. Riscaldamento e raffrescamento autonomo con pompa di calore
LEGGI ANCORA
Affittasi negozio a Reggio nell'Emilia, Centro Storico
negozio Città Storica Santo Stefano-Gardenia 1.500 € mese
VIA EMILIA SANTO STEFANO, in pieno centro storico, negozio recentemente ristrutturato, con ampia vetrina, composto da zona vendita di 50 mq, retro di 50 mq e doppio servizio. Due canne fumarie, riscaldamento autonomo, aria condizionata. Libero. L'incaricato dell'agenzia è Massimo
LEGGI ANCORA
Immobile in affitto a Reggio Emilia(RE
Immobile in affitto a Reggio Emilia(RE
negozio 3.900 € mese
Attività commerciale - RIF. 1557 - MERIDIANA: proponiamo in affitto negozio di 235 mq. Canone 3.900 euro al mese
LEGGI ANCORA
Negozio in affitto a Reggio nell'Emilia via Fratelli Manfredi, 7, Gardenia PREMIUM
REGGIO EMILIA - LIBERO DA SUBITO - L'edificio, di quasi 4.500 m² di superfice coperta, si trova in una delle location più richieste a Reggio Emilia, la zona nord vicinissima al casello autostradale, alla tangenziale ed alla stazione AV Medi […]
LEGGI ANCORA
Affittasi negozio a Reggio nell'Emilia via Guasco, 2/e, Centro Storico
negozio Città Storica Via Guasco 450 € mese
In via Guasco, nel cuore del centro storico di Reggio Emilia, proponiamo in affitto un grazioso negozio di circa 35 mq, situato al piano terra e caratterizzato da travi in legno a vista. L’immobile dispone di due ampie vetrine che assicurano ottima visibilità e luminosità, oltre a un bagno di pertinenza […]
LEGGI ANCORA
Affittasi attività commerciale a Reggio nell'Emilia, Carrozzone
negozio Carrozzone 3.600 € mese
ZONA ANNONARIA : Proponiamo in locazione negozio posto al piano terreno di più ampio edificio commerciale, in ottime condizioni ed in ottima posizione lungo la viabilità principale, alta visibilità. La superficie commerciale del negozio è di mq. 235 ha due vetrine sul fronte principale oltre ad una later […]
LEGGI ANCORA
Immobile in affitto a Reggio Emilia(RE
Negozio in affitto a Reggio nell'Emilia, Gardenia
negozio Città Storica Santo Stefano-Gardenia 1.100 € mese
Reggio Emilia. In zona via Emilia San Pietro, sotto i portici di un bellissimo palazzo, proponiamo negozio di 60mq con doppia vetrina. L'immobile dispone oltre all'ambiente principale per vendita al dettaglio, di un laboratorio al piano primo e di un magazzino e servizi/spogliatoi al piano interrato. Pos […]
LEGGI ANCORA
Negozio in affitto a Reggio nell'Emilia largo Canaletto, 1, Pieve Modolena
negozio Pieve Modolena 1.600 € mese
REGGIO EMILIA-PIEVE-NEGOZIO IN AFFITTO- Proponiamo in locazione negozio di 88 mq al piano terra su strada principale, con sei ampie vetrine fronte strada che garantiscono massima visibilità e luminosità. L’immobile è attualmente distribuito in due locali, oltre a sala d’attesa e bagno con antibagno, risu […]
LEGGI ANCORA
Negozio in affitto a Reggio nell'Emilia, Carrozzone PREMIUM
Negozio in affitto a Reggio nell'Emilia, Carrozzone
negozio Carrozzone 3.900 € mese
RIF. 1557 - MERIDIANA: proponiamo in affitto negozio di 235 mq. Canone 3.900 euro al mese
LEGGI ANCORA
Immobile in affitto a Reggio Emilia(RE
Negozio in affitto a Reggio nell'Emilia, Gardenia
negozio Città Storica Santo Stefano-Gardenia 6.000 € mese
Locale commerciale spazioso in affitto – Via Gigli 7, Reggio Emilia Nord Proponiamo in affitto un locale commerciale al piano terra rialzato, precedentemente sede della sala giochi Admiral, situato nel Direzionale Policar di Reggio Emilia Nord, di fronte al Medical Center Bianalisi. La struttura è ideale […]
LEGGI ANCORA
Immobile in affitto a Reggio Emilia(RE
Negozio in affitto a Reggio nell'Emilia, Carrozzone
negozio Carrozzone 12.500 € mese
RIF. 5017 FRONTE STRADA VIA EMILIA LOCALE COMMERCIALE NUOVO DI MQ 1150 A PIANO TERRA. ALTO PASSAGGIO, 200 MQ SONO DESTINATI AL DETTAGLIO (MASSIMO CONSENTITO)IDEALE PER CONCESSIONARIE AUTO/MOTO, SALE ESPOSITIVE ARREDAMENTO O MOBILI. FIDEIUSSIONI BANCARIE A GARANZIA CONTRATTUALE DI 12 MESI. POSIZIONE ESCLU […]
LEGGI ANCORA
Negozio in affitto a Reggio nell'Emilia, Pieve Modolena PREMIUM
negozio in affitto a Reggio nell'Emilia
negozio 5.500 € mese
Locale in Affitto nel Direzionale Policar - Un'opportunità da non perdere! ** Scopri questo ampio locale al primo piano, situato nel prestigioso Direzionale Policar. Con una superficie commerciale di 600 m² e 585 m² calpestabili, questo open space completamente vetrato offre un'illuminazione naturale ec […]
LEGGI ANCORA
- prezzo medio loft in zona OMI D4 : 8 €/m²
- prezzo medio loft a Reggio nell'Emilia : 9,6 €/m²
Negozio in affitto a Reggio nell'Emilia via Guasco, Centro Storico
negozio Città Storica Via Guasco 600 € mese
CENTRO STORICO - VIA GUASCO. Affittasi Negozio al piano terra composto da 2 vani + bagno. RICHIESTA: euro 600,00 RIFERIMENTO: DOMC-955 Per maggiori informazioni chiamaci subito o mandaci un messaggio (anche Whatsapp, a qualsiasi ora) al 371 5235526
LEGGI ANCORA
Attività / Licenza in affitto a Reggio Emilia(RE
Non perdere gli altri 40 annunci!




