N.B. Tutti le informazioni immobiliari sono fornite senza alcuna garanzia. Leggi il disclaimer.
Capannoni o case indipendenti o case semindipendenti o locali commerciali, di nuova costruzione o di recente ristrutturazione in affitto a Montemurlo - pg. 3 di 9
MODIFICA QUESTA RICERCAcapannone in affitto a Montemurlo PREMIUM
Capannone industriale in affitto a Montemurlo
- prezzo medio locale commerciale a Montemurlo : 6,3 €/m²
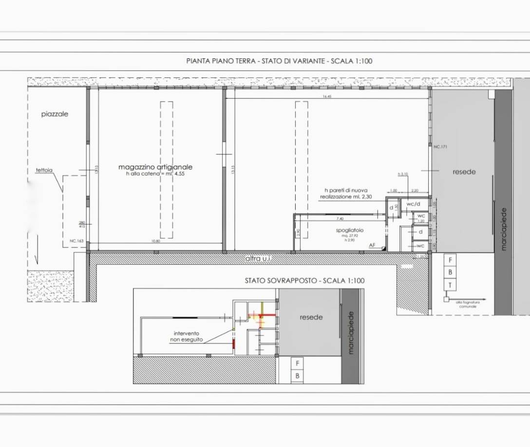
via milano 350mq
casa indipendente Ponte Bocci Via Milano 1.700 € mese
via milano 350mq Montemurlo Prato Toscana afittiamo in zona oste a pochi passi dalla tangenziale che collega a prato ovest di circa 350mq con piccolo resede frontale e circa 50mq tergale tutto a norma. - kwhmc anno
LEGGI ANCORA
- prezzo medio casa indipendente a Montemurlo : 6,7 €/m²
- prezzo medio villa a Montemurlo : 6,8 €/m²
Capannone industriale in affitto a Montemurlo via Terni
capannone Ponte Bocci Via Terni 9.500 € mese
Magazzino ristrutturato con doppio accesso e piazzali – posizione strategica Montemurlo (Prato Ovest) In una delle zone più dinamiche e richieste di Montemurlo, caratterizzata da forte passaggio veicolare e ottima visibilità, proponiamo in locazione ampio magazzino completamente ristrutturato, ideale per […]
LEGGI ANCORA
- prezzo medio locale commerciale in zona OMI D3 : 6,5 €/m²
- prezzo medio locale commerciale in zona Ponte Bocci : 6,4 €/m²
Capannone industriale in affitto in Via Pomeria 32 a Montemurlo
capannone Ponte Bocci Via Pomeria 7.000 € mese
Montemurlo In zona facilmete raggiungibile, L'Agenzia Immobiliare Casa Online di Prato propone in locazone un capannone artigianale di mq 1350 in ottime condizioni. L'immobile ha un altezza interna di 4,5 m e si trova all'interno di un piazzale a comune con altri fabbricati. Internamente l'immobile non h […]
LEGGI ANCORA
Affittasi capannone industriale a Montemurlo viale labriola
- prezzo medio locale commerciale in zona OMI D3 : 6,5 €/m²
- prezzo medio locale commerciale a Montemurlo : 6,3 €/m²
Affittasi capannone industriale a Montemurlo
capannone 14.500 € mese
Montemurlo, zona industriale - In contesto centrale e ben collegato e in zona di facile accesso, proponiamo in locazione capannone industriale anni '70, categoria D/7 di circa 2.200 mq, con spazi esterni esclusivi di circa 600mq , in buone condizioni. Ampio parcheggio privato interno e esterno. Il capann […]
LEGGI ANCORA
Capannone nuova in via milano, Montemurlo
capannone Ponte Bocci Via Milano 5.500 € mese
Affittiamo a Montemurlo capannone di 600 mq + 150 mq di uffici nuovo a norma antincendio altezza 8 m, doppi portoni con resede frontale e tergale recintato - SC9486066
LEGGI ANCORA
Immobile in affitto a Montemurlo(PO
- prezzo medio locale commerciale in zona OMI D3 : 6,5 €/m²
- prezzo medio locale commerciale in zona Fornacelle : 6,2 €/m²
Affittasi capannone industriale a Montemurlo via Pistoia
capannone Ponte Bocci Via Pistoia 10.000 € mese
Ampio magazzino in posizione di grande viabilità e IMMAGINE , quindi adatto a molteplici attività . Dotato di sistema antincendio . Due ampi portoni e uffici al piano terra. La sua posizione vicino alla arteria di grande comunicazione , lo rende un immobile esclusivo . La sua richiesta per la locazione è […]
LEGGI ANCORA
- prezzo medio locale commerciale in zona OMI C2 : 6,1 €/m²
- prezzo medio locale commerciale in zona Ponte Bocci : 6,4 €/m²
Capannone industriale in affitto a Montemurlo via Milano
capannone Ponte Bocci Via Milano 2.800 € mese
Montemurlo, zona industriale, affittasi magazzino completamente ristrutturato ed a norma, misurante 480 mq circa. L'immobile è completo di antincendio e pareti rei; pavimento nuovo, altezza 5 metri, un portone, ampio piazzale frontale aperto, libero subito. . Richiesta €. 2.800,00 al mese
LEGGI ANCORA
- prezzo medio locale commerciale in zona OMI D3 : 6,5 €/m²
- prezzo medio locale commerciale in zona Ponte Bocci : 6,4 €/m²
Capannone industriale in affitto a Montemurlo via Amalfi, 41 PREMIUM
Capannone industriale in affitto a Bagnolo, Montemurlo
capannone Bagnolo 2.900 € mese
Montemurlo loc. Bagnolo affittasi capannone artigianale di 500 mq. Il capannone si presenta con una superficie aperta senza colonne centrali, provvisto di ingresso carrabile direttamente dalla strada principale. Il tetto ha un'altezza di circa 5 metri ed è a volte con tegole (no eternit). L'immobile è st […]
LEGGI ANCORA
- prezzo medio locale commerciale in zona OMI C2 : 6,1 €/m²
- prezzo medio locale commerciale in zona Bagnolo : 6,3 €/m²
Affittasi capannone industriale a Montemurlo via Pistoia, 2
capannone Ponte Bocci Via Pistoia 5.500 € mese
Affittasi magazzino di 750 mq oltre uffici , con resede privata . La sua posizione lo rendono anche per la viabilità un immobile di molto interesse . Dotato di sistema antincendio La sua Richiesta è di € 5.500 mese con una cauzione di 4 mensilità. Per la tipologia e le sue dimensioni è un immobile molto […]
LEGGI ANCORA
- prezzo medio locale commerciale in zona OMI C2 : 6,1 €/m²
- prezzo medio locale commerciale in zona Ponte Bocci : 6,4 €/m²
Capannone industriale in affitto a Montemurlo via Labriola
capannone Via Labriola 12.000 € mese
MONTEMURLO, in zona industriale capannone ristrutturato di mq. 1900, altezza sotto tirante mt. 4,70. Parte produttiva di mq, 1300 suddivisa in due campate con doppi servizi e dotata di due ampi portoni. Palazzina ad uffici su due livelli di mq. 600 ca. suddivisa in varie stanze e dotata doppio ingresso i […]
LEGGI ANCORA
- prezzo medio locale commerciale in zona OMI D3 : 6,5 €/m²
- prezzo medio locale commerciale a Montemurlo : 6,3 €/m²
capannone in affitto a Montemurlo
capannone 2.900 € mese
Capannone con copertura a volta, di mq 420, completo di due bagni e ufficio. Piazzale frontale di mq 50, tergale mq 150, il tutto completamente ristrutturato. Richiesta euro 2900 mensili. Per altre informazioni o visite chiamare Pollastri Luciano
LEGGI ANCORA
- prezzo medio ufficio a Montemurlo : 6,7 €/m²
Capannone industriale MONTEMURLO €.2600 MQ.400 Vani 1
capannone Bagnolo 2.600 € mese
Montemurlo magazzino di mq. 400, altezza mt. 5, doppio bagno e ufficio. Gli indirizzi riportati non sono esatti ma indicativi della zona dell'immobile. Chiamando il 335 1898488 contattati l'Agente Immobiliare per questo immobile. Rif. 3118AF RIF.3118AF
LEGGI ANCORA
- prezzo medio ufficio in zona OMI D3 : 6,7 €/m²
- prezzo medio ufficio in zona Bagnolo : 5,9 €/m²
capannone in affitto a Montemurlo PREMIUM
Magazzino in affitto a Montemurlo via Pistoia, 2
locale commerciale Ponte Bocci Via Pistoia 2.200 € mese
A Montemurlo affittasi ad uso deposito , un magazzino a volta con ampio piazzale . Affitto a 2200€ esente iva Libero subito . Con pavimentazione industriale. Nei pressi di ottima viabilità con qualsiasi mezzo. L'indirizzo e le foto sono illustrative e non corrispondono alla realt
LEGGI ANCORA
- prezzo medio locale commerciale in zona OMI C2 : 6,1 €/m²
- prezzo medio locale commerciale in zona Ponte Bocci : 6,4 €/m²
Capannone industriale in affitto a Montemurlo via Pistoia, 2
capannone Ponte Bocci Via Pistoia 12.000 € mese
A MONTEMURLO , ampio magazzino di 1450 mq con piazzale esclusivo recintato, 350mq di uffici , e un appartamento grande. Presso le vie di comunicazioni più importanti. ottima la sua disposizione . Richiesta mensile € 12000
LEGGI ANCORA
- prezzo medio locale commerciale in zona OMI C2 : 6,1 €/m²
- prezzo medio locale commerciale in zona Ponte Bocci : 6,4 €/m²
Capannone industriale in affitto a Montemurlo viale Antonio Labriola
capannone Via Labriola 3.400 € mese
Montemurlo, zona Viale Labriola, in posizione comoda vicino alle principali arterie, bel capannone a schiera completamente ristrutturato con tetto nuovo e pavimenti ideali per qualsiasi macchinario. Il capannone si sviluppa per 500 mq. più soppalchi ideali per carico merci per ulteriori 100 mq. ca., bagn […]
LEGGI ANCORA
- prezzo medio locale commerciale in zona OMI D3 : 6,5 €/m²
- prezzo medio appartamento in zona OMI D3 : 7,4 €/m²
Non perdere gli altri 142 annunci!











