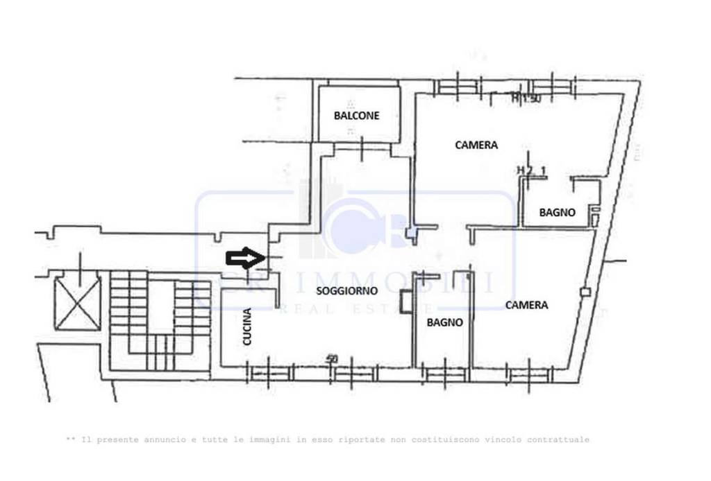
Valore appartamenti a Bollate
Nella città di Bollate sono al momento presenti 46 offerte per
appartamenti in affitto, che rappresentano meno dell'1% degli appartamenti in affitto nella città metropolitana di Milano.
In media in tutta la città, il prezzo richiesto degli appartamenti in affitto è oggi pari a
12,2 €/m² mese ed è nella maggioranza dei casi compreso tra
9,8 €/m² mese e
14,2 €/m² mese.
Il prezzo richiesto a Bollate è quindi circa il 39% inferiore alla media di tutta la regione.
LEGGI ANCORA
Per quanto riguarda gli ultimi sei mesi, i prezzi medi richiesti a Bollate per appartamenti in affitto sono in leggero aumento (+1,86%).
N.B. Tutti le informazioni immobiliari sono fornite senza alcuna garanzia. Leggi il disclaimer.











