N.B. Tutti le informazioni immobiliari sono fornite senza alcuna garanzia. Leggi il disclaimer.
Camere singole o pentavani con cucina abitabile e con giardino e con terrazza in affitto a Carrara in zona Marina di Carrara - pg. 2 di 3
MODIFICA QUESTA RICERCATrilocale in affitto a Marina di Carrara, Carrara PREMIUM
A Marina di Carrara proponiamo in affitto appartamenti di pregio, di diverse metrature, nuovi, NON arredati, con posto auto nell'area condominiale. Idonei anche per persone diversamente abili. Ascensore capiente a partire dal piano terra. D […]
LEGGI ANCORA
- prezzo medio appartamento in zona OMI E3 : 13,4 €/m²
- prezzo medio trivano in zona OMI E3 : 16,7 €/m²
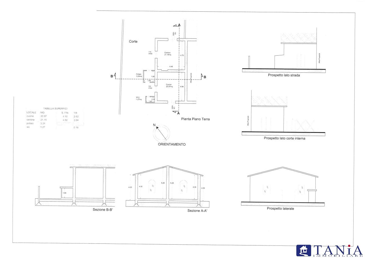
Avenza bilocale 45mq
camera singola Avenza
Avenza bilocale 45mq Carrara Massa-Carrara Toscana appartamento con giardino avenza rif con giardinetto e posto in zona residenziale composto da un soggiorno con angolo cottura con accesso al comodo terrazzo il disimpegno una camera da letto un bagno finestrato e un ripostiglio.n
LEGGI ANCORA
Avenza quadrilocale 110mq
camera singola Avenza
Avenza quadrilocale 110mq Carrara Massa-Carrara Toscana trifamiliare avenza rif di trifamiliare angolare di 110 mq su 2 livelli composta danpiano terra soggiorno ampio cucina abitabile dispensa e bagno di servizio nprimo piano camera matrimoniale con balcone camera doppia balcone e bagno. possibilit di t […]
LEGGI ANCORA
Avenza 5 vani 130mq
camera singola Avenza
Avenza 5 vani 130mq Carrara Massa-Carrara Toscana avenza rif aa4339ncasa posta al primo ed ultimo piano con ampia terrazza d ingresso all abitazione composta daningresso soggiorno doppio cucina abitabile con accesso al terrazzo disimpegno notte tre camere da letto ampie e doppi a piano terra e corte e gi […]
LEGGI ANCORA
Avenza trilocale 65mq
camera singola Avenza
Avenza trilocale 65mq Carrara Massa-Carrara Toscana porzione di casa avenza rif appartamento di 65mq in trifamiliare con ingresso indipendente interamente ristrutturato al piano di terra di casa da ampio con affaccio sul giardino grande camera matrimoniale con affaccio sul giardino bagno e ripostiglio. n […]
LEGGI ANCORA
Avenza 8 vani 200mq
camera singola Avenza
Avenza 8 vani 200mq Carrara Massa-Carrara Toscana affascinante villetta a schiera in vendita ad avenza perfetta per chi desidera una residenza comoda e funzionale. situata in una zona commerciale questa bellissima casa offre ampi spazi e una superficie totale di 200 mq. con 8 locali 4 camere da letto e 3 […]
LEGGI ANCORA
affitto appartamento Carrara PREMIUM
Proponiamo in locazione zona Carrara Appartamento posto al piano secondo di taglio classico ammobiliato composto da ingresso su disimpegno, cucina abitabile, ampio soggiorno di 25mq molto luminoso; spostandoci nella zona notte troviamo 2 ca […]
LEGGI ANCORA
- prezzo medio appartamento in zona OMI B4 : 10,9 €/m²
- prezzo medio appartamento in zona Centro Città : 10,6 €/m²
Avenza 5 vani 120mq
camera singola Avenza
Avenza 5 vani 120mq Carrara Massa-Carrara Toscana vicino al centro commerciale di avenza in zona tranquilla si vende terra tetto su pi livelli con giardinetto e terrazza pranzabile. nla villetta a schiera strutturata con ingresso autonomo attraverso il giardino di piano rialzato troviamo il soggiorno con […]
LEGGI ANCORA
Avenza 5 vani 140mq
camera singola Avenza
Avenza 5 vani 140mq Carrara Massa-Carrara Toscana terra tetto avenza rif 4389 terra tetto disposta su pi livelli composta da ingresso cucina abitabile sala due camere cameretta con soppalco due bagni. terrazza aperta attrezzata con vista con la citt. - maggiori dettagli cucina abitabile
LEGGI ANCORA
Avenza 6 vani 150mq
camera singola Avenza
Avenza 6 vani 150mq Carrara Massa-Carrara Toscana libera su tre lati avenza rif terratetto libera su tre lati con ingresso indipendente e ampio giardino su tre lati composta danpiano terra da soggiorno con cucina a vista e bel camino box auto e ripostiglio piano rialzato soggiorno con accesso al terrazzo […]
LEGGI ANCORA
Avenza trilocale 70mq
camera singola Avenza
Avenza trilocale 70mq Carrara Massa-Carrara Toscana porzione di casa avenza rif 4556nporzione di casa al piano terra con ingresso indipendente composto danpiccola aia dingresso sala ampia cucina pranzo con zona lavanderia camera e bagno.ndue ampie camere armadi.nampia metratura dellimmobile ideali per fa […]
LEGGI ANCORA
Avenza 5 vani 150mq
camera singola Avenza
Avenza 5 vani 150mq Carrara Massa-Carrara Toscana in zona centralissima ad avenza vicino a tutti i servizi e alle scuole vendesi villetta a schiera su tre livelli composta da piano interrato ampia taverna con angolo cottura e con per camino zona lavanderia bagno. piano terra soggiorno con accesso a balco […]
LEGGI ANCORA
affitto negozio Carrara PREMIUM
AVENZA (Rif. 500393): In buona zona commerciale, di passaggio e con ottima visibilità AFFITTASI fondo commerciale (negozio) ideale per chi cerca un punto vendita, un ufficio o una piccola attività di servizi. Libero e subito pronto. Il cano […]
LEGGI ANCORA
Avenza quadrilocale 50mq
camera singola Avenza
Avenza quadrilocale 50mq Carrara Massa-Carrara Toscana porzione di casa in fase di avenza rif aa4438ncasa libera su tre lati composta danpiano terra soggiorno cucina bagnonpiano mansardato due stanze e su tre lati.nin fase di - maggiori dettagli ripostiglio
LEGGI ANCORA
Avenza 7 vani 210mq
camera singola Avenza
Avenza 7 vani 210mq Carrara Massa-Carrara Toscana unoccasione unica nel cuore di avenza in vendita questa splendida villetta con giardino privato di circa 250 mq. costruita nel 1984 in ottimo stato e si sviluppa su 3 livelli con un totale di 7 locali di cui 4 camere da letto e 3 bagni. dotata di terrazza […]
LEGGI ANCORA
Avenza 7 vani 150mq
camera singola Avenza
Avenza 7 vani 150mq Carrara Massa-Carrara Toscana immersa in una zona residenziale di grande fascino scopri la tua futura casa. in vendita una splendida villetta a schiera con unampia superficie di 150 mq. dotata di 7 locali tra cui 3 camere da letto un luminoso soggiorno e una spaziosa cucinapranzo ques […]
LEGGI ANCORA
Avenza 8 vani 180mq
camera singola Avenza
Avenza 8 vani 180mq Carrara Massa-Carrara Toscana avenza rif aa4372nin zona centralissima vicina ai servizio terra tetto di recente di circa 180 mq composta danpiano rialzato ingresso da giardino sala cucina bagnonpiano primo camera matrimoniale due camerette bagnonpiano seminterrato ampia taverna con zo […]
LEGGI ANCORA
Avenza 6 vani 120mq
camera singola Avenza
Avenza 6 vani 120mq Carrara Massa-Carrara Toscana porzione di casa ad avenza rif 3712nin zona appartata di avenza non distante dall esselunga vendesi porzione di casa in piccolo complesso edificato nel 2007 estremamente decoroso ed appartamento su due livelli piano primo e piano mansardato cos suddiviso […]
LEGGI ANCORA
Trilocale in affitto a Marina di Carrara, Carrara PREMIUM
A Marina di Carrara proponiamo in affitto appartamenti di pregio, di diverse metrature, nuovi, NON arredati, con posto auto nell'area condominiale. Idonei anche per persone diversamente abili. Ascensore capiente a partire dal piano terra. D […]
LEGGI ANCORA
- prezzo medio appartamento in zona OMI E3 : 13,4 €/m²
- prezzo medio trivano in zona OMI E3 : 16,7 €/m²
Avenza 8 vani 200mq
camera singola Avenza
Avenza 8 vani 200mq Carrara Massa-Carrara Toscana avenza rif 4311na pochi passi dai servizi vendesi casa bifamiliare compost da npiano terra ingresso cucina abitabile sala camera matrimoniale cameretta bagnonpiano mansardato salam camera e bagnonpiano seminterrato taverna con cucina in muratura cantina e […]
LEGGI ANCORA
appartamento in affitto a Carrara in zona Marina di Carrara
pentavano Marina di Carrara 1.400 € mese
MIA CASA propone Appartamenti in Affitto a Marina di Carrara** Scopri un'opportunità imperdibile con questo appartamenti in affitto invernale, disponibili da settembre 2025 a maggio 2026. Situati nel cuore di Marina di Carrara, questi immobili sono perfetti per aziende con dipendenti nella zona. Con una […]
LEGGI ANCORA
- prezzo medio appartamento in zona OMI E3 : 13,4 €/m²
- prezzo medio pentavano in zona OMI E3 : 12,6 €/m²
Avenza 6 vani 180mq
camera singola Avenza
Avenza 6 vani 180mq Carrara Massa-Carrara Toscana villetta a schiera avenza rif aa4332na pochi passi da tutti i servizi porzione di casa su pi livelli composta danpiano rialzato sala cucina bagnonpiano primo due camere matrimoniali e bagnonpiano mansardato altra stanza con bagnonpiano seminterrato zona l […]
LEGGI ANCORA
Non perdere gli altri 30 annunci!


