N.B. Tutti le informazioni immobiliari sono fornite senza alcuna garanzia. Leggi il disclaimer.
Locali commerciali o negozi con climatizzazione e con cortile in affitto a Civitanova Marche
MODIFICA QUESTA RICERCAImmobile in affitto a Civitanova Marche(MC PREMIUM
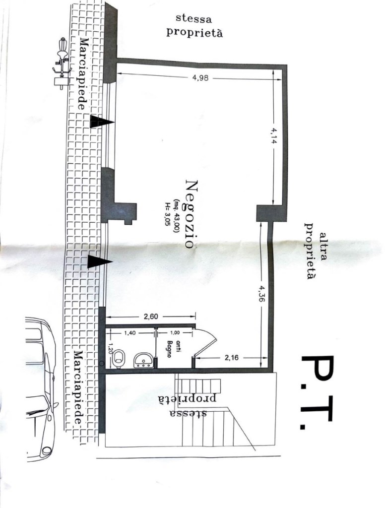
Negozio in affitto a Civitanova Marche via trento 60
negozio 950 € mese
In pieno centro a Civitanova Marche, affittiamo locale al piano terra di circa 60 mq composto da un vano unico con bagno. Ingresso fronte strada . Doppia vetrina. Bella la posizione centralissima nel cuore della città, con ottima visibilità e ottimo il prezzo..... anche un pò trattabile... Classe Energet […]
LEGGI ANCORA
Immobile in affitto a Civitanova Marche(MC
Negozio CIVITANOVA MARCHE €.400 MQ.17 Vani 1
negozio
Civitanova Marche: nel borgo marinaro in una delle vie più particolari e frequentate del centro si propone locale commerciale. Consistenza di circa 17 mq. vetrina. Non c'e assolutamente possibilità di canna fumaria. NO FOOD. Muoviti. Altrimenti non lo trovi..... RIF.LC0099
LEGGI ANCORA
Locale commerciale - uso ufficio centralissimo
negozio 550 € mese
Da Privato. Civitanova Marche zona centro situato angolo Piazza XX Settembre, 68 inizio via Mameli lungo affittasi locale uso ufficio - negozio con vetrina espositiva di mq 30 e ingresso indipendente, bagno, pavimenti e infissi nuovi. Recentemente ristrutturato, disponibile da subito
LEGGI ANCORA
- prezzo medio ufficio a Civitanova Marche : 10,1 €/m²
- prezzo medio locale commerciale a Civitanova Marche : 12,7 €/m²
30 vani 25000mq
negozio
30 vani 25000mq Civitanova Marche Macerata Marche civitanova marche - in zona commerciale altamente frequentata in posizione visibile e privilegiata nei pressi del casello autostradale moderno e spazioso centro commerciale con molteplici reparti servizi comuni ed ampi parcheggi. larea coperta si estende […]
LEGGI ANCORA
Affittasi negozio a Civitanova Marche via Andrea Tonelli PREMIUM
Affittasi negozio a Civitanova Marche
negozio
Civitanova Marche: nel borgo marinaro in una delle vie più particolari e frequentate del centro si propone locale commerciale. Consistenza di circa 17 mq. vetrina. Non c'e assolutamente possibilità di canna fumaria. NO FOOD. Muoviti. Altrimenti non lo trovi..... Classe Energetica: Non indicata
LEGGI ANCORA
Affitto negozio Via San Marone 21 Civitanova Marche (MC
negozio San Marone 550 € mese
Civitanova Marche San Marone ,Locale commerciale di c.a 40 mq unico vano, bagno , una vetrina. ottima visibilita' e molto luminoso . canone 500,00 dal quinto anno 560,00
LEGGI ANCORA
Negozio in affitto a Civitanova Marche
negozio 3.400 € mese
In affitto a Civitanova Marche, nel cuore del centro, proponiamo un ampio negozio di 120 mq situato al piano terra. Questo spazio commerciale, caratterizzato da un ingresso centrale, è ideale per diverse attività grazie alla sua posizione strategica e alla visibilità garantita. Doppia vetrina e vetrina i […]
LEGGI ANCORA
Attività commerciale in affitto a Civitanova Marche
negozio 800 € mese
Affittasi in pieno centro su Corso Vittorio Emanuele locale commerciale di mq 55 al piano terra con vetrina fronte strada garantendo visibilità. L'immobile gode di alto passaggio veicolare. Ideale per negozi, uffici e attività commerciali di vario genere. Per qualsiasi info: MARCO 3470011879 - 0733773428
LEGGI ANCORA
Immobile in affitto a Civitanova Marche(MC PREMIUM
Negozio in affitto a Civitanova Marche via d'Annunzio
Proposto da:
Centro Servizi Marche - Civitanova Marche
negozio 1.150 € mese
Civitanova Marche. In posizione semicentrale, di passaggio e buona visibilità, locale commerciale di mq 185 circa, al piano terra, con piazzale antistante, ampie vetrine, open space, ufficio, deposito magazzino, bagno con antibagno, bagno per disabili. Il locale è stato recentemente ristrutturato, presen […]
LEGGI ANCORA
Negozio in affitto a Civitanova Marche via Dante Alighieri
Proposto da:
negozio 1.500 € mese
Rif: IND921 - IND921 - Civitanova Marche - a cinque minuti dal centro, in posizione di altissima visibilità e passaggio, Tempocasa Industriale Macerata propone in affitto locale commerciale di circa 142 mq. L'immobile, al piano terra, si compone di un ingresso dotato di un ampio spazio, doppia porta vetr […]
LEGGI ANCORA
Immobile in affitto a Civitanova Marche(MC
negozio Fontespina 1.200 € mese
Attività commerciale - Civitanova Marche, affittiamo locale commerciale al piano terra, mq 150 complessivi con vetrina fronte strada e comodità di posteggio. Il locale attualmente adibito a genere alimentare è ideale per u
LEGGI ANCORA
Laboratorio in affitto a Civitanova Marche
negozio San Marone 700 € mese
Civitanova Marche al piano terra di stabile residenziale, affittiamo locale uso magazzino laboratorio di mq 160 circa . Zona San Marone, a pochi minuti dall'uscita della superstrada ed autostrada, facilmente raggiungibile. Classe Energetica: G
LEGGI ANCORA
Immobile in affitto a Civitanova Marche(MC
Immobile in affitto a Civitanova Marche(MC PREMIUM
Attività commerciale in affitto a Civitanova Marche
negozio 5.500 € mese
Civitanova Marche: Nel cuore di Civitanova Marche si loca intera palazzina, completamente ristrutturata. Infissi nuovi, riscaldamento a terra. ottime finiture, classe energetica al top. piano terra con 60 mq. con corte esclusiva e spazio esclusivo. al primo e al secondo piano due unità separate da 60 mq. […]
LEGGI ANCORA
Negozio in affitto a Civitanova Marche via del pincio, Civitanova Alta
Proposto da:
negozio 1.500 € mese
Rif: IND936 - ZONA: Ci troviamo a Civitanova Alta, in posizione comoda e di passaggio IMMOBILE: Locale commerciale al piano terra di circa 220 mq. L'immobile è dotato di due vetrine fronte strada che rendono il locale molto luminoso e che permettono una buona visibilità dall'esterno, necessaria per chi c […]
LEGGI ANCORA
Affitto negozio Via Civitanova 1 Civitanova Marche (MC
negozio 800 € mese
Civitanova Marche locale commerciale totale di 110 mq composto da : 48 mq locale commerciale , 63 mq locale sgombero con cella frigorifera e possibilita' di canna fumaria
LEGGI ANCORA
Non perdere gli altri 58 annunci!







