N.B. Tutti le informazioni immobiliari sono fornite senza alcuna garanzia. Leggi il disclaimer.
Capannoni o locali di sgombero con arredamento in affitto a Capannori - pg. 4 di 7
MODIFICA QUESTA RICERCACapannone industriale in affitto a Capannori, Centro PREMIUM
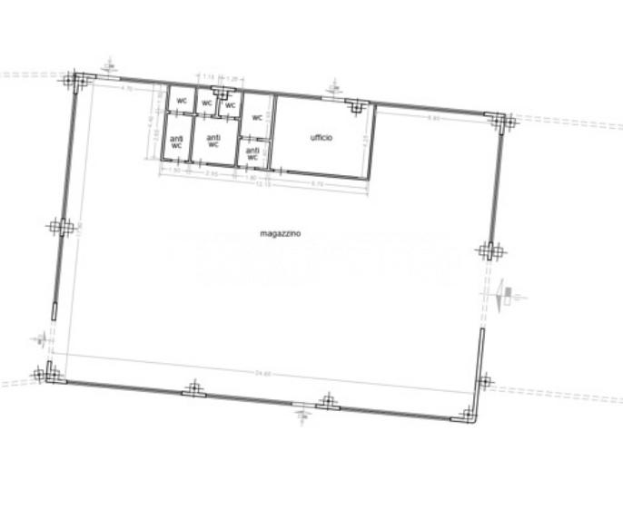
Magazzino in affitto a Capannori strada Regionale Lucchese, Gragnano - Lappato
locale di sgombero 2.000 € mese
A Gragnano, in edificio commerciale, proponiamo in affitto questo immobile. Si accede al fondo tramite grande accesso comune, corredato da posti auto e zona verde, l'immobile è composto di unico vano oltre servizi igienici, e magazzino al piano terra, ottimo per carico - scarico merci, l'immobile si svil […]
LEGGI ANCORA
- prezzo medio locale commerciale a Capannori : 7,1 €/m²
azienda commerciale in affitto a Lammari
locale di sgombero Lammari 700 € mese
Affittasi fondi commerciali, uffici e magazzini Rif. 2020LU080 Su strada di grande passaggio su cui si snoda gran parte del cuore produttivo della città , in affitto disponiamo di ampio fabbricato commerciale di nuova costruzione, libero su quattro lati, sviluppato su 3 piani, interrato, piano terra e pi […]
LEGGI ANCORA
- prezzo medio ufficio in zona OMI D2 : 7,7 €/m²
- prezzo medio ufficio in zona Lammari : 8,9 €/m²
Capannone industriale in affitto a Capannori via di Sottomonte, 98, Verciano - Guamo
capannone Guamo Via di Sottomonte 6.900 € mese
PROPOSTA CON INCARICO FORMALMENTE ASSEGNATO ALL'AGENZIA. Nelle vicinanze del casello di Lucca Ovest, in zona produttiva ben servita, proponiamo in affitto capannone indipendente, libero su quattro lati, adatto principalmente ad uso magazzino, deposito o attività operative. L’immobile è composto da un uni […]
LEGGI ANCORA
- prezzo medio locale commerciale a Capannori : 7,1 €/m²
- prezzo medio loft a Capannori : 8,2 €/m²
Magazzino in affitto a Capannori
Proposto da:
locale di sgombero Lunata 900 € mese
F551K - LUNATA (Capannori) - Siamo a pochi metri da importante e conosciutissimo centro commerciale collocato su strada di grande flusso veicolare . L'immobile che Vi proponiamo è posto al piano sotto strada di un fabbricato realizzato negli anni 70 e precisamente porzione di più ampia unità immobiliare […]
LEGGI ANCORA
- prezzo medio loft in zona Lunata : 10,2 €/m²
- prezzo medio loft a Capannori : 8,2 €/m²
Affitti negozi uffici capannoni a Capannori
Proposto da:
capannone 9.000 € mese
Rif: 1288822/1140/capan capa - capannori, in ottima posizione su strada di grande passaggio a poca distanza dall'entrata dell'autostrada, proponiamo in affitto capannone commerciale di 900 mq, con h.5,50, con uffici, stanze pluriuso, archivio antibagno e bagno. Corredato da piazzale di 1500 mq recintato […]
LEGGI ANCORA
locale di sgombero in affitto a Capannori in zona Carraia
capannone Carraia 2.900 € mese
Capannone artigianale situato in posizione strategica all’interno di primaria zona industriale PIP Carraia, a soli 4 km dal casello autostradale A11 di Capannori (LU). L’immobile, recentemente ristrutturato e in ottime condizioni, si sviluppa su una superficie complessiva di 360 mq. suddivisi in: - 300 […]
LEGGI ANCORA
Locale commerciale in affitto a Capannori
Proposto da:
locale di sgombero 2.500 € mese
Su strada di grande passaggio, fondo commerciale di 300 mq in ottime condizioni composto da grande vano, stanza, tre bagni e ripostiglio. A corredo magazzino di circa 50 mq al piano interrato e ampio parcheggio. Edificio in classe G. Si precisa che l'indirizzo pubblicato nell'annuncio non corrisponde all […]
LEGGI ANCORA
- prezzo medio locale commerciale a Capannori : 7,1 €/m²
fondo commerciale - da risistemare a Capannori
Proposto da:
locale di sgombero 3.000 € mese
FONDO COMMERCIALE in COMUNE DI CAPANNORI - Su strada di forte flusso veicolare ed in contesto commerciale - direzionale molto vivace AFFITTIAMO ampio fondo di circa mq. 300 al piano terra. il fondo commerciale si presenta molto luminoso, dotato di impianti da verificare e da doppi servizi e tre grandi ve […]
LEGGI ANCORA
- prezzo medio locale commerciale a Capannori : 7,1 €/m²
Ufficio in affitto a Lammari - Capannori 70 mq Rif: 1248999
locale di sgombero Lammari 550 € mese
Cod.11715 - PROPOSTA CON INCARICO DI MEDIAZIONE FORMALMENTE ASSEGNATO ALL'AGENZIA. A Lammari , in complesso commerciale di recente costruzione, proponiamo in affitto questo ufficio., posto al primo piano dotato di ascensore. L'immobile all'interno è composto di vano unico oltre magazzino, ripostiglio e b […]
LEGGI ANCORA
- prezzo medio ufficio in zona Lammari : 8,9 €/m²
- prezzo medio ufficio a Capannori : 8,3 €/m²
locale di sgombero in affitto a Capannori in zona Lammari
locale di sgombero Lammari 800 € mese
LAMMARI - In elegante palazzo dei primi del '900, fondo commerciale di 60 mq al piano terra, in ottime condizioni, composto da due vani, antibagno e bagno. A corredo ampia resede comune per posti auto. Possibilità di avere anche una soffitta ad utilizzo magazzino
LEGGI ANCORA
ufficio in affitto a Guamo PREMIUM
Affitto Negozio Capannori
locale di sgombero Marlia 800 € mese
Fondo commerciale a Marlia, in ottime condizioni e con ottima visibilità, composto da: un vano di 60 mq con due vetrine. Al piano inferiore locale magazzino di 100 mq. con quattro servizi igienici. 290 kWh/m2 a
LEGGI ANCORA
Affitto ufficio via delle ville 493 Capannori (LU
capannone Via delle Ville 4.500 € mese
Capannone a Segromigno in Piano in ottime condizioni formato da due blocchi: il primo,ad uso commerciale, composto da ingresso, reception, sala riunioni, ripostiglio, sala modelleria, quattro uffici, sala campionaria e due bagni con doccia di circa 400 mq. Il secondo blocco, ad uso artigianale, composto […]
LEGGI ANCORA
- prezzo medio villa a Capannori : 7,1 €/m²
Affitti negozi uffici capannoni a Capannori
Proposto da:
capannone 650 € mese
Rif: 1338914/575/xv3833ak - frazione del comune di capannori (lucca) - affittasi capannone artigianale (c3), di circa 145 mq con bagno. Altezza circa 5 mt. Ristrutturato recentemente, parcheggio interno al piazzale in comune di circa 1.400 mq. Adatto a qualsiasi attività artigianale escluso concessionar […]
LEGGI ANCORA
azienda commerciale in affitto a Lammari
locale di sgombero Lammari 8.000 € mese
RIF. 2021LU049 AFFITTASI FONDO COMMERCIALE Affittasi fondo commerciale. Il fondo in questione è ubicato in zona di forte espansione commerciale ed ha una superficie coperta di 750 mq di cui 600 mq spazio vendita e 150 di magazzino oltre a 150 mq di resede esterni e 12 posti auto esclusivi ad uso direzio […]
LEGGI ANCORA
Immobile in affitto a Capannori(LU
- prezzo medio ufficio in zona OMI E2 : 7,9 €/m²
- prezzo medio ufficio in zona Guamo : 8,8 €/m²
Capannone industriale in affitto a Capannori, Centro PREMIUM
esavano in affitto a Capannori
Proposto da:
capannone 2.600 € mese
F043M - PORCARI (LU)- In contesto terziario, a soli 3 minuti dal Casello Autostradale di Capannori Vi proponiamo la vendita di un capannone di mq. 440 ad uso commerciale libero su tre lati. L’immobile è stato totalmente ristrutturato negli anni '90 e si presenta in ottime condizioni di manutenzione e con […]
LEGGI ANCORA
- prezzo medio ufficio a Capannori : 8,3 €/m²
Ufficio - buone condizioni a Capannori
capannone 1.900 € mese
COMUNE DI CAPANNORI ZONA SUD - al piano primo di capannone commerciale con accesso indipendente AFFITTIAMO tre ampi vani uso ufficio oltre a n° 5 servizi per una supeficie complessiva di mq. 395 corredati inoltre da grande terrazza privata di mq.70 - impianti funzionanti - Facilità di parcheggio - classe […]
LEGGI ANCORA
- prezzo medio ufficio in zona OMI E2 : 7,9 €/m²
- prezzo medio ufficio a Capannori : 8,3 €/m²
Affitti negozi uffici capannoni a Capannori
locale di sgombero 560 € mese
Rif: 1247266/1715/560_lappato - proposta con incarico di mediazione formalmente assegnato all'agenzia.a lappato a pochi minuti di macchina da capannori, proponiamo in affitto questo magazzino di circa 140 mq - posto al piano piano terra di un complesso condominiale con piazzale comune. - rif. 560_lappato […]
LEGGI ANCORA
Non perdere gli altri 103 annunci!











