Valutazione immobiliare indipendente, accurata e gratuita
L'Opinione di Caasa® per l'appartamento in vendita a Turbigo a 156.000 € (cod.651d96aa)
Secondo Caasa, per l'appartamento in vendita a Turbigo, la richiesta di 156.000 € è leggermente svantaggiosa rispetto agli annunci simili.
Analisi immobiliare
L'appartamento, situato nella zona OMI B1, è proposto in vendita (da croma srl) a
156.000 € per una
superficie commerciale di
95 m² e quindi ad un prezzo per metro quadrato pari a
1642 €/m²
.
Questo prezzo
è un po' più alto di quello stimato da Caasa per immobili in vendita simili per tipologia e caratteristiche, presenti nella stessa zona, che è compreso tra
1.418 €/m² e
1.551 €/m².
Data la posizione dell'appartamento sono stati utilizzati come raffronto i valori medi nelle zone limitrofe . Caasa non è stata in grado di determinare la classe energetica, ma ad affinare la stima hanno contribuito però anche lo stato dell'immobile (di nuova costruzione) e la presenza di alcune caratteristiche significative come il posto auto. In virtù di queste considerazioni l'intervallo dei valori possibili per l'offerta è relativamente ampio.
Mercato immobiliare a Turbigo
Per quanto riguarda più in generale il comune di Turbigo, sono presenti al momento più di cento annunci per
appartamenti in vendita (meno dell'1% dell'intera provincia) .
Possiamo inoltre considerare che in tutto il comune negli ultimi 6 mesi, i prezzi per appartamenti in vendita sono
in sostanziale aumento (+5,06%).
NOVITÀ Il risultato che vedi dipende dai dati che siamo riusciti ad estrarre dall'annuncio: ottieni una stima più accuranta di questo immobile, inserendo dati più precisi.
N.B. L'Opinione di Caasa® è un servizio sperimentale realizzato tramite tecniche di Intelligenza Artificiale, fornito senza alcuna garanzia di correttezza e completezza. Leggi il disclaimer o segnalaci un problema.
IMMAGINI
IN SINTESI
DESCRIZIONE
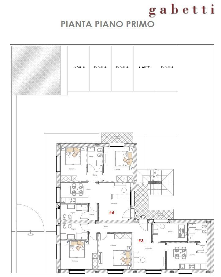
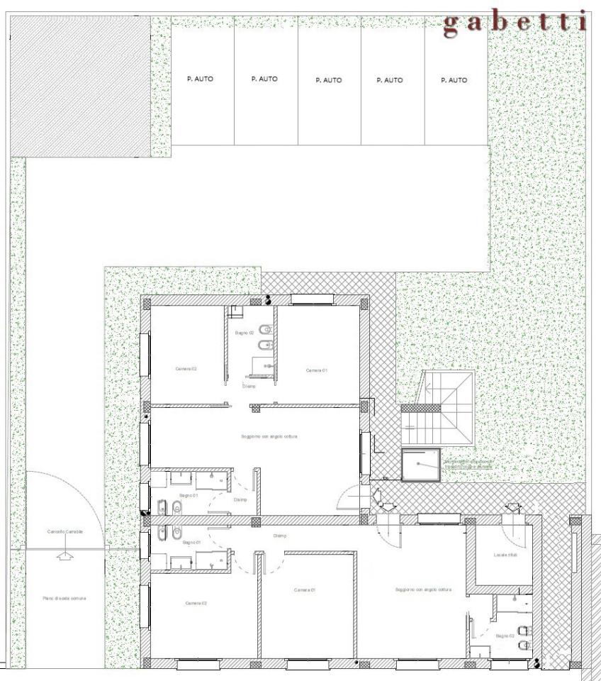
di nuova costruzione con balcone con posto auto con terrazza con cucina abitabile di nuova costruzione
Turbigo. A pochi minuti dal centro del paese, proponiamo appartamenti di nuova costruzione di varie tipologie e metrature. Appartamento N3 di 95mq € 156.000,00. Quattro locali posto al piano primo composto da ingresso, soggiorno, cucina abitabile, camera matrimoniale, cameretta, studio, doppi servizi e balcone. Posto auto interno e soffitta compresi nel prezzo. Capitolato in fase di lavorazione. Appartamento N4 di 75mq € 129.000,00. Tre locali posto al piano primo composto da ingresso, soggiorno, cucina, camera matrimoniale, cameretta, doppi servizi e balcone. Posto auto interno e soffitta compresi nel prezzo. Capitolato in fase di lavorazione. Gabetti mette a disposizione un portfolio vastissimo. Gli annunci del gruppo sono visitati con altissima frequenza e sono corredati da servizi specifici pensati ad hoc per ogni evenienza. Se devi vendere o affittare il tuo immobile, il primo passo è una corretta valutazione del suo valore. Scegli Gabetti per una consulenza gratuita


