Valutazione immobiliare indipendente, accurata e gratuita
Casa indipendente in vendita ad Orzinuovi in zona Coniolo a 148.078 € (cod.64f77802)
Caasa non ha sufficienti informazioni per commentare la casa indipendente ad Orzinuovi in zona Coniolo - 64f77802.
Analisi immobiliare
I dati in posseso di Caasa per quest'immobile sono insufficienti, inaffidabili o contraddittori per proporre un'analisi attendibile.
Mercato immobiliare ad Orzinuovi
Per quanto riguarda più in generale il comune di Orzinuovi, sono presenti al momento circa cento annunci per
case indipendenti in vendita (meno dell'1% dell'intera provincia)
e il maggior numero di annunci per questa tipologia sono relativi proprio alla zona di Coniolo.
Possiamo inoltre considerare che in tutto il comune negli ultimi 6 mesi, i prezzi per case indipendenti in vendita sono
in forte aumento (+19,43%).
NOVITÀ Il risultato che vedi dipende dai dati che siamo riusciti ad estrarre dall'annuncio: ottieni una stima più accuranta di questo immobile, inserendo dati più precisi.
N.B. L'Opinione di Caasa® è un servizio sperimentale realizzato tramite tecniche di Intelligenza Artificiale, fornito senza alcuna garanzia di correttezza e completezza. Leggi il disclaimer o segnalaci un problema.
IMMAGINI
IN SINTESI
DESCRIZIONE
di recente costruzione con terrazza con balcone di recente ristrutturazione di recente costruzione in asta giudiziaria
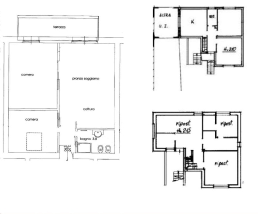
In Comune di Orzinuovi (BS), frazione Coniolo, via Pietro Bembo n. 55-57, piena proprietà di villa unifamiliare sviluppantesi ai piani terra e primo. L’unità, alla quale si accede con cancello carrale autonomo dalla via P. Bembo, è articolata su due […]
