Valutazione immobiliare indipendente, accurata e gratuita
Appartamento in vendita a Desenzano del Garda in zona Rivoltella a 508.000 € (cod.64f88ed1)
Caasa non ha sufficienti informazioni per commentare l'appartamento a Desenzano del Garda Rivoltella - 64f88ed1.
Analisi immobiliare
I dati in posseso di Caasa per quest'immobile sono insufficienti, inaffidabili o contraddittori per proporre un'analisi attendibile.
Mercato immobiliare a Desenzano del Garda
Per quanto riguarda più in generale la città di Desenzano del Garda, sono presenti al momento ben oltre mille annunci per
appartamenti in vendita (meno del 10% dell'intera provincia)
e il maggior numero di annunci per questa tipologia sono relativi proprio alla zona di Rivoltella.
La richiesta media nella zona dove sorge l'appartamento (Rivoltella) è pari a
3.950 €/m² e ne fa la più pregiata della città .
Relativamente alla dinamica dei prezzi, possiamo dire che negli ultimi 6 mesi i prezzi medi in tutta la città per appartamenti in vendita sono
in aumento (+4,82%).
NOVITÀ Il risultato che vedi dipende dai dati che siamo riusciti ad estrarre dall'annuncio: ottieni una stima più accuranta di questo immobile, inserendo dati più precisi.
N.B. L'Opinione di Caasa® è un servizio sperimentale realizzato tramite tecniche di Intelligenza Artificiale, fornito senza alcuna garanzia di correttezza e completezza. Leggi il disclaimer o segnalaci un problema.
IMMAGINI
IN SINTESI
PROPOSTO DA:
Gardaffare srl
DESCRIZIONE
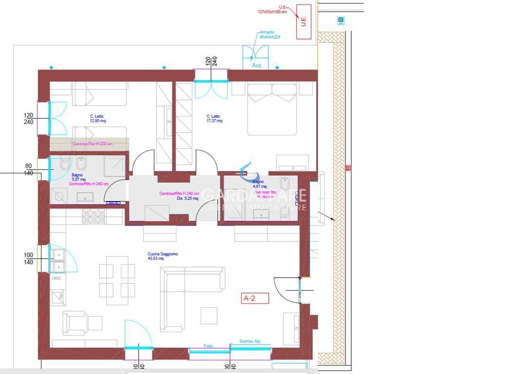
di nuova costruzione con posto auto con giardino di nuova costruzione con ascensore
Desenzano del Garda Nella frazione di Rivoltella, siamo lieti di presentarvi un nuovo e raffinato Trilocale con ampio portico e giardino privato, inserito in una palazzina esclusiva di sole sei unità abitative. Le unità hanno la comodità dell'ascensore e godono di una piscina condominiale. Questo elegante appartamento offre spazi generosi e luminosi: un ampio soggiorno con cucina a vista, portico e giardino privato ideale per momenti di relax all'aria aperta. La zona notte comprende due lussuose camere matrimoniali, di cui una con bagno privato, un comodo disimpegno e un bagno di servizio. Il progetto è stato attentamente studiato per garantire il massimo comfort e un'elevata efficienza energetica, grazie anche a un esteso impianto fotovoltaico. Le finiture, di alta qualità, saranno personalizzabili secondo i gusti del cliente, selezionate da un vasto capitolato. La consegna è prevista per l'estate 2025, offrendo così l'opportunità di vivere in una dimora esclusiva. Prezzo richiesto: € 508.000, con possibilità d' acquistare un box auto separatamente. Per ulteriori informazioni, contattare GARDAFFARE al numero 030/9905461. Rif. 24-53. Classe energetica A3




