Valutazione immobiliare indipendente, accurata e gratuita
Casa indipendente in vendita a Desenzano del Garda a 680.000 € (cod.64f87ea6)
Caasa non ha sufficienti informazioni per commentare la casa indipendente in vendita a Desenzano del Garda - 64f87ea6.
Analisi immobiliare
I dati in posseso di Caasa per quest'immobile sono insufficienti, inaffidabili o contraddittori per proporre un'analisi attendibile.
Mercato immobiliare a Desenzano del Garda
Per quanto riguarda più in generale la città di Desenzano del Garda, sono presenti al momento ben oltre mille annunci per
case indipendenti in vendita (meno del 10% dell'intera provincia)
e il maggior numero di annunci per questa tipologia sono relativi alla zona di Rivoltella.
Possiamo inoltre considerare che in tutta la città negli ultimi 6 mesi, i prezzi per case indipendenti in vendita sono
in sostanziale aumento (+6,79%).
NOVITÀ Il risultato che vedi dipende dai dati che siamo riusciti ad estrarre dall'annuncio: ottieni una stima più accuranta di questo immobile, inserendo dati più precisi.
N.B. L'Opinione di Caasa® è un servizio sperimentale realizzato tramite tecniche di Intelligenza Artificiale, fornito senza alcuna garanzia di correttezza e completezza. Leggi il disclaimer o segnalaci un problema.
IMMAGINI
IN SINTESI
DESCRIZIONE
da ristrutturare con giardino da ristrutturare
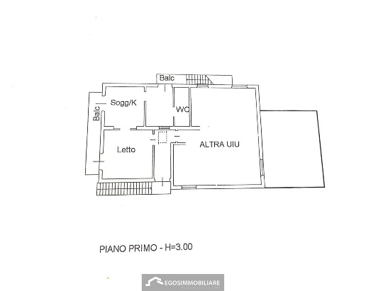
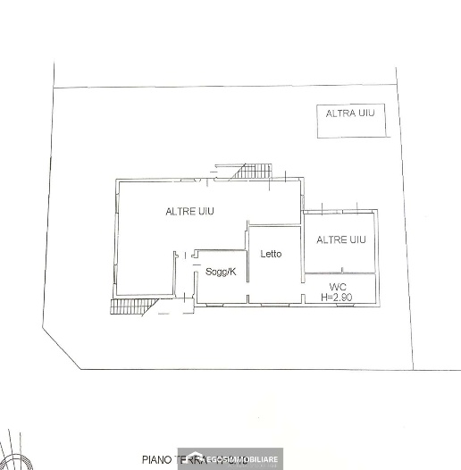
La villa in vendita nel comune di Desenzano del Garda, situata in una posizione strategica vicina al centro e a tutti i servizi essenziali come negozi, ospedale, banca, posta e il lago, rappresenta un'opportunità unica sul mercato immobiliare. Il prezzo competitivo di 680.000 EUR la rende un'ottima soluzione per chi desidera acquistare una casa singola o una pentafamiliare con 5 unità abitative. La proprietà si estende su una superficie di 700 mq, con un totale di 14 vani, garantendo ampi spazi e confort per tutti gli abitanti. L'immobile proposto in vendita è da demolire e ricostruire una villa nuova o 5 unità abitative. La vendita tratta una casa in cattive condizioni(cubatura) e il lotto di terreno Grazie alla sua ampia metratura e alla sua posizione centrale, questa proprietà rappresenta un'opportunità ideale per chi cerca un'abitazione di pregio nel suggestivo contesto del Lago di Garda

