Valutazione immobiliare indipendente, accurata e gratuita
Casa indipendente a Calvagese della Riviera in zona Carzago a 350.000 € (cod.6505ba06)
Caasa non ha sufficienti informazioni per commentare la casa indipendente a Calvagese della Riviera Carzago - 6505ba06.
Analisi immobiliare
I dati in posseso di Caasa per quest'immobile sono insufficienti, inaffidabili o contraddittori per proporre un'analisi attendibile.
Mercato immobiliare a Calvagese della Riviera
Per quanto riguarda più in generale il comune di Calvagese della Riviera, sono presenti al momento più di cento annunci per
case indipendenti in vendita (meno dell'1% dell'intera provincia)
e il maggior numero di annunci per questa tipologia sono relativi proprio alla zona di Carzago.
Per quanto riguarda la richiesta media in zona Carzago, dove sorge la casa indipendente, essa è pari a circa
2.290 €/m² per case indipendenti in vendita.
Possiamo inoltre considerare che in tutto il comune negli ultimi 6 mesi, i prezzi per case indipendenti in vendita sono
sostanzialmente stabili (-0,60%).
NOVITÀ Il risultato che vedi dipende dai dati che siamo riusciti ad estrarre dall'annuncio: ottieni una stima più accuranta di questo immobile, inserendo dati più precisi.
N.B. L'Opinione di Caasa® è un servizio sperimentale realizzato tramite tecniche di Intelligenza Artificiale, fornito senza alcuna garanzia di correttezza e completezza. Leggi il disclaimer o segnalaci un problema.
IMMAGINI
IN SINTESI
PROPOSTO DA:
Coldwell Banker - Realroi
DESCRIZIONE
da ristrutturare con giardino con terrazza con cantina da ristrutturare di recente costruzione
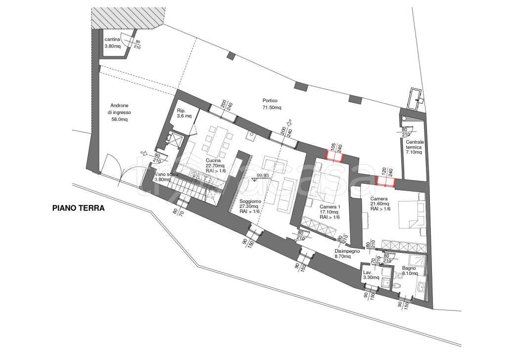
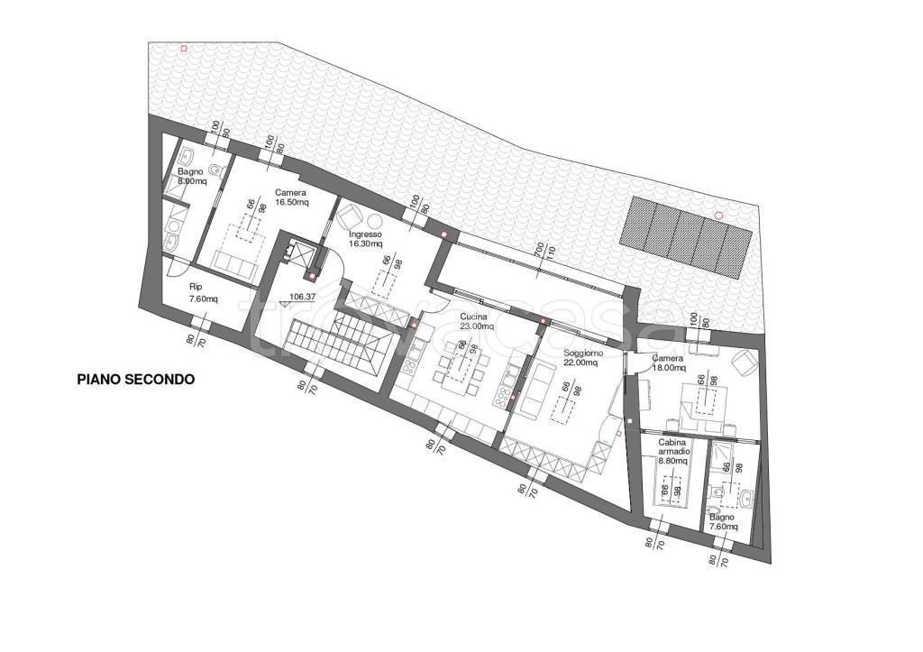
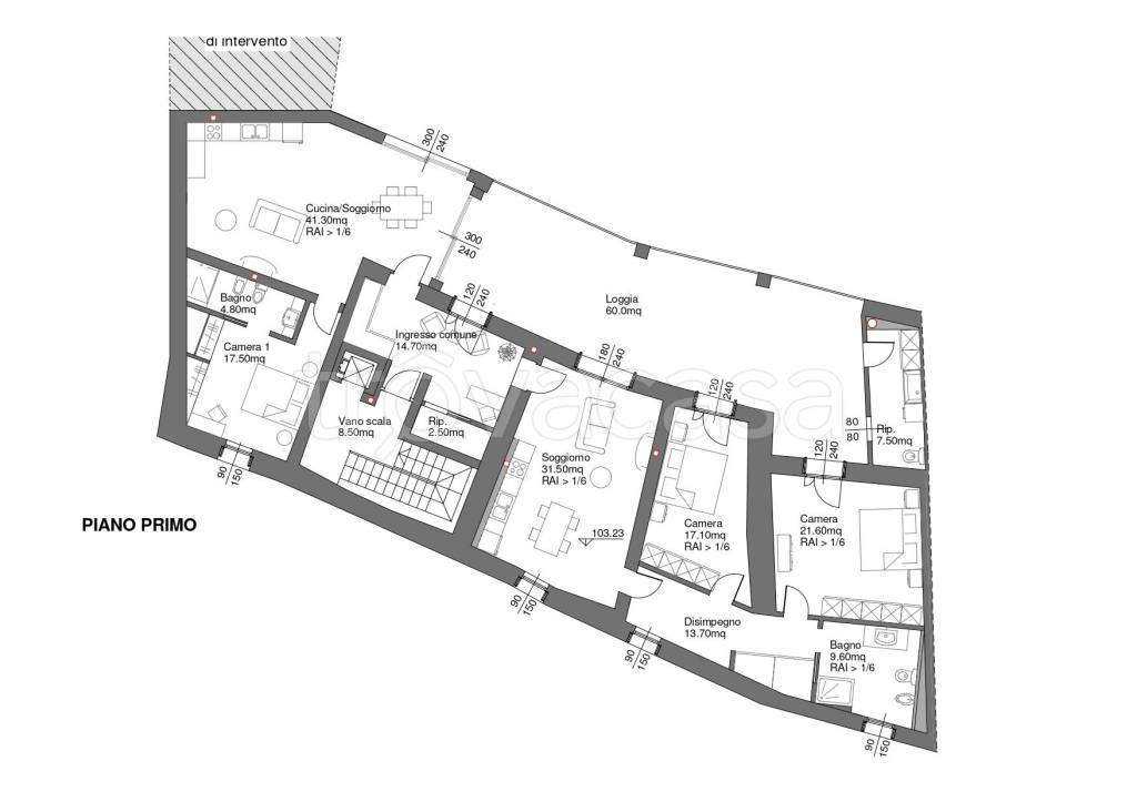
Affascinante Casale del '600 in Vendita: Una Gemma da Ristrutturare Nel cuore di una suggestiva area, offriamo in vendita un casale del '600 che ha subito una parziale ristrutturazione nel 2000 e un completo rifacimento del tetto nel 2023. Questo affascinante rustico si sviluppa su tre piani e presenta un grande portico e una loggia sovrastante coperta, che aggiungono un tocco di eleganza e funzionalità. Il casale è affiancato da un ulteriore immobile (vecchie stalle), ma rimane completamente indipendente, circondato da un alto muro in sasso che garantisce privacy e separa la proprietà dalle altre. All'interno, il giardino di oltre 500 mq offre uno spazio verde di grande respiro, arricchito da un pozzo, stanze con caratteristici volti, resti di affreschi e colonne storiche. Questa proprietà è ideale per chi cerca un ambiente riservato e indipendente, immerso nella natura ma comunque comodo ai servizi. La sua posizione la rende perfetta per essere trasformata in uno studio e abitazione, o per un affascinante bed & breakfast. È anche adatta a gruppi familiari o a imprese che desiderano ricavare vari appartamenti di charme. Il casale si trova in buono stato di conservazione e sono disponibili disegni per la realizzazione di tre importanti appartamenti. Un'opportunità unica per chi desidera creare uno spazio esclusivo e caratteristico. Calvagese della Riviera è un tranquillo comune situato nell'entroterra del Lago di Garda, in una delle aree più suggestive della provincia di Brescia. A pochi minuti dalle rive del lago, il territorio offre un perfetto equilibrio tra natura, storia e sport. Tra le sue eccellenze, spicca l'Arzaga Golf Club, un prestigioso campo da golf con 27 buche, progettato da leggende mondiali come Jack Nicklaus e Gary Player, rendendolo una meta ambita per gli appassionati di golf. Vivere a Calvagese significa godere della bellezza della Valtenesi, una rinomata zona di produzione vinicola famosa per il Chiaretto, Groppello e Riesling, oltre a una ricca tradizione nella produzione di olio ex[…]

