Valutazione immobiliare indipendente, accurata e gratuita
Locale di sgombero in vendita a Nettuno a 20.311 € (cod.64f95691)
Caasa non ha sufficienti informazioni per commentare il locale di sgombero in vendita a Nettuno - 64f95691.
Analisi immobiliare
I dati in posseso di Caasa per quest'immobile sono insufficienti, inaffidabili o contraddittori per proporre un'analisi attendibile.
Mercato immobiliare a Nettuno
Per quanto riguarda più in generale la città di Nettuno, sono presenti al momento circa cento annunci per
locali di sgombero in vendita (meno del 5% dell'intera provincia)
e il maggior numero di annunci per questa tipologia sono relativi alla zona di Padiglione.
Vedi altre informazioni direttamente su
Mercato-Immobiliare.info
NOVITÀ Il risultato che vedi dipende dai dati che siamo riusciti ad estrarre dall'annuncio: ottieni una stima più accuranta di questo immobile, inserendo dati più precisi.
N.B. L'Opinione di Caasa® è un servizio sperimentale realizzato tramite tecniche di Intelligenza Artificiale, fornito senza alcuna garanzia di correttezza e completezza. Leggi il disclaimer o segnalaci un problema.
IMMAGINI
IN SINTESI
PROPOSTO DA:
Studio Giuliani Real Estate Srl
DESCRIZIONE
da ristrutturare con posto auto con balcone con termocondizionamento con garage in asta giudiziaria da ristrutturare
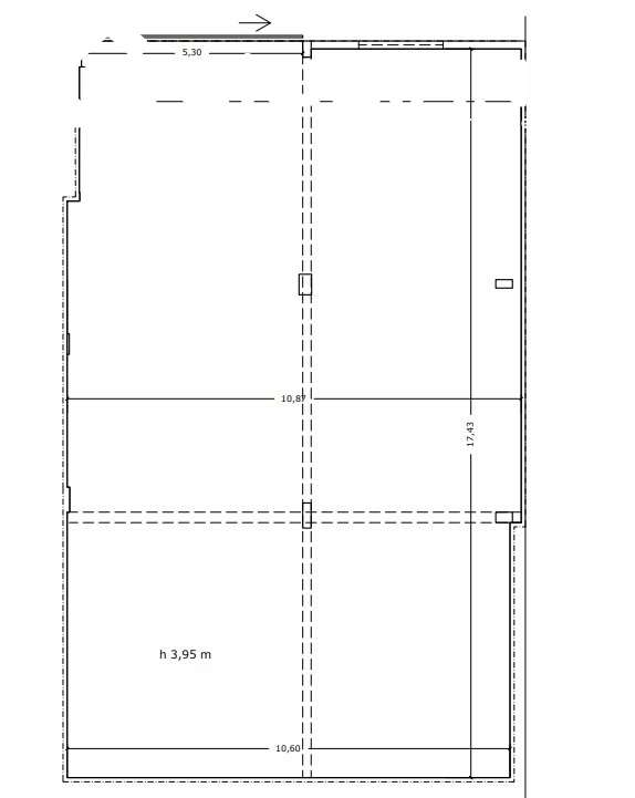
CONTATTACI PER UNA CONSULENZA GRATUITA ALLO 06/87607612 Nettuno (RM) Via Marmolada, n.72. Magazzino al piano seminterrato di un edificio di tre piani fuori terra composto da dieci unita a uso residenziale, oltre al piano seminterrato composto da due unita a uso non residenziale. Sito al piano seminterrato di un edificio di tre piani fuori terra composto da dieci unità a uso residenziale, oltre al piano seminterrato composto da due unità a uso non residenziale. All'immobile si accede percorrendo una rampa carrabile e uno spazio di manovra che termina davanti all'unità in oggetto. Internamente si presenta con un unico ambiente allo stato grezzo dotato di un portone scorrevole esterno, del tipo industriale. La pavimentazione si presenta in battuto di cemento Non sono presenti impianti: idrico-sanitario, elettrico, tecnologico, riscaldamento e condizionamento. Sono presenti tubazioni in PVC aeree fissate a soffitto, verosimilmente destinate alla raccolta delle acque pluviali provenienti dal piano superiore. OFFERTA MINIMA: EURO 20.311,00 DATA DELL'ASTA: 17/02/2023 10:00 Casa è dove si trova il cuore. (Plinio il vecchio) Con lo STUDIO GIULIANI REAL ESTATE il sogno diventa realtà! Il nostro team di professionisti offre assistenza, consulenza legale e stragiudiziale per tutti i beni mobili e immobili in asta giudiziaria. I servizi offerti al nostro cliente sono molteplici: Ricerca dell'immobile con valutazione immobiliare Valutazione preliminare tecnica e studio della perizia con geometra in sede Valutazione economica con broker finanziario in sede con possibilità di mutuo fino al 100% del prezzo di aggiudicazione Prenotazione visita degli immobili oggetto di interesse tramite il custode giudiziario Partecipazione in asta, il cliente verrà seguito fino alla consegna delle chiavi Effettuiamo inoltre pratiche di saldo e stralcio e di acquisto del credito dai maggiori istituti bancari. La nostra parcella è dovuta solo in caso di aggiudicazione. Il nostro team è a vostra completa disposizione per fornirvi tutte l[…]


