Valutazione immobiliare indipendente, accurata e gratuita
Appartamento in vendita a Monte Compatri in zona Laghetto a 96.112 € (cod.64f97708)
Caasa non ha sufficienti informazioni per commentare l'appartamento a Monte Compatri in zona Laghetto - 64f97708.
Analisi immobiliare
I dati in posseso di Caasa per quest'immobile sono insufficienti, inaffidabili o contraddittori per proporre un'analisi attendibile.
Mercato immobiliare a Monte Compatri
Per quanto riguarda più in generale il comune di Monte Compatri, sono presenti al momento più di 200 annunci per
appartamenti in vendita (meno dell'1% dell'intera provincia)
e il maggior numero di annunci per questa tipologia sono relativi proprio alla zona di Laghetto.
Per quanto riguarda la richiesta media in zona Laghetto, dove sorge l'appartamento, essa è pari a circa
1.980 €/m² per appartamenti in vendita.
Per quanto riguarda la dinamica dei prezzi, negli ultimi 6 mesi i prezzi medi in tutto il comune per appartamenti in vendita sono
in sostanziale aumento (+7,43%).
NOVITÀ Il risultato che vedi dipende dai dati che siamo riusciti ad estrarre dall'annuncio: ottieni una stima più accuranta di questo immobile, inserendo dati più precisi.
N.B. L'Opinione di Caasa® è un servizio sperimentale realizzato tramite tecniche di Intelligenza Artificiale, fornito senza alcuna garanzia di correttezza e completezza. Leggi il disclaimer o segnalaci un problema.
IMMAGINI
IN SINTESI
PROPOSTO DA:
L'abbruzzi Gruppo Immobiliare
DESCRIZIONE
di recente costruzione con posto auto con balcone con cantina in asta giudiziaria di recente costruzione con angolo cottura con cucina abitabile con termocondizionamento con riscaldamento autonomo
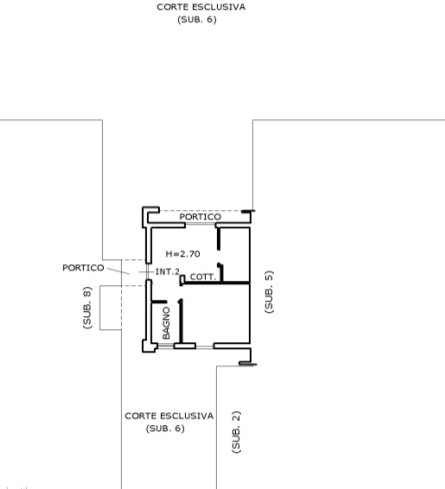
NUOVA PROPOSTA IMMOBILE DISPONIBILE Appartamento a Monte Compatri (RM) in Via Santa Maria. L'immobile è situato al piano terra ed è cosi composto: salone con angolo cottura, camera, bagno, ripostiglio e corte esterna; sono presenti anche un locale caldaia ed un piccolo ripostiglio esterni, ed un sottoscala. Troviamo inoltre un posto auto di circa 17 mq. L'immobile è situato in una zona molto tranquilla, permette di godere di tutti i comfort e i servizi offerti dalla zona circostante. Per te la possibilità di avere un preventivo per il mutuo a condizioni vantaggiose con i nostri partner. Ulteriori dettagli, foto degli interni, planimetrie e altre info, se disponibili, saranno consultabili previo appuntamento nella sede di ROMA con MICHELE che inoltre ti informerà sulle possibilità di aggiudicarti questo affare. L'immobile pubblicato al momento è sottoposto a procedura di vendita legale; Gescom srl è specializzata nella ricerca e pianificazione di investimenti immobiliari secondo innovative strategie di acquisto. Contattaci subito potrai valutare assieme a un nostro tecnico canali distinti di acquisto dell'immobile, procedura di vendita diretta senza ricorrere all'asta (d.lgs. 149/2022) e ancora stralcio immobiliare. Le informazioni sopra riportate non sostituiscono l'avviso pubblicato dal Tribunale competente ne' l'integrale gestione da parte del delegato designato. Il testo e le specifiche indicate nella presente pagina sono generate automaticamente attraverso l'utilizzo di software e/o da A. I., Gescom srl invita a verificare le formazioni e i materiali multimediali sui canali ufficiali, declinando fin d'ora ogni responsabilità su eventuali errori o incongruenze. Gescom Italia srl leader negli stralci immobiliari e nella consulenza tecnico legale, non si occupa di attività di intermediazione imm. di cui alla legge 39/89. Cl. energ. da verificare. Le foto pubblicate nel presente annuncio sono indicative e non esaustive della tipologia, qualità, consistenza e indicazione geografica dell'immobile. CLASSE EN[…]

