N.B. Tutti le informazioni immobiliari sono fornite senza alcuna garanzia. Leggi il disclaimer.
Locale commerciale in affitto a Borgo San Lorenzo, Ronta
negozio Ronta 1.050 € mese
Pressi Borgo San Lorenzo affittasi locale di prestigio ad uso commerciale adatto qualsiasi attività posto al piano terra con ingresso indipendente, bagno , antibagno, impianti a norma, termo singolo a metano. Possibile divisione in più vani e possibilità di ampia e caratteristica cantina con soffitti a v […]
LEGGI ANCORA
Affittasi negozio a Borgo San Lorenzo
negozio 2.000 € mese
BORGO SAN LORENZO PAESE INTERESSANTE POSIZIONE UBICAZIONE CENTRALE LIMITROFO AD IMPORTANTI ATTIVITA' CON FORTE RICHIAMO IN OTTIMA ZONA A FORTE PASSAGGIO PEDONALE E VEICOLARE FONDO NEGOZIO MQ 230 PIANO TERRA CON DOPPIO SPORTO SU STRADA INGRESSO INDIPENDENTE SERVIZIO NO CANNA FUMARIA IDEALE QUALSIASI ATTIV […]
LEGGI ANCORA
Laboratorio in affitto a Borgo San Lorenzo
negozio 1.200 € mese
BORGO SAN LORENZO PRESSI OTTIMA POSIZIONE IMPORTANTE STRADA FORTE SCORRIMENTO VEICOLARE IN COMPLESSO ARTIGIANALE COMMERCIALE AMPIO PIANO TERRA UNICO VANO MQ 240 CON ZONA UFFICIO E SERVIZIO ANTIBAGNO E BAGNO SPAZIO ESTERNO PER SOSTA E MOVIMENTO VEICOLI VOLENDO IMPIANTO ELETTRICO CERTIFICATO PRESENTE NO CO […]
LEGGI ANCORA
Affittasi negozio a Borgo San Lorenzo
Proposto da:
negozio 700 € mese
PROSSIMI AL CENTRO STORICO PIANO TERRA NEGOZIO O UFFICIO ADATTO ANCHE ATTIVITA' PROFESSIONALE TECNICO LEGALE MEDICO DENTISTA MQ 90 DIVISIBILE IN DUE PARTI BAGNO CON FINESTRA DOPPIO SPORTO SULLA PUBBLICA VIA TERMOSINGOLO METANO IMPIANTI A NORMA AMBIENTE CARATTERISTICO DOPPIA FINESTRA SUL RETRO PRONTA CONS […]
LEGGI ANCORA
Capannone classe A4 a Borgo San Lorenzo
negozio 5.000 € mese
Ottima zona commerciale capannone MQ 650 fronte strada con alta visibilità e grande piazzale di pertinenza MQ 5000 con altezza mt. 4,00. L'immobile è composto da una zona commerciale con accesso diretto, servizio, ampio salone con ingresso indipendente, ufficio e 2 vani uso archivio/ripostiglio, molto in […]
LEGGI ANCORA
- prezzo medio ufficio a Borgo San Lorenzo : 8,2 €/m²
- prezzo medio locale commerciale a Borgo San Lorenzo : 8,1 €/m²
Immobile in affitto a Borgo San Lorenzo(FI
- prezzo medio locale commerciale in zona OMI B2 : 7,9 €/m²
- prezzo medio locale commerciale a Borgo San Lorenzo : 8,1 €/m²
Negozio in affitto a Borgo San Lorenzo
Negozio in affitto a Borgo San Lorenzo
Locale commerciale in affitto a Borgo San Lorenzo via leonardo da vinci 78
locale di sgombero in affitto a Borgo San Lorenzo
negozio 1.200 € mese
Capannone in Affitto a [BORGO S LORENZO] RIF CM7 - Spazio Ideale per la Tua Attività! ** Scopri questo luminoso capannone di circa mq 240, perfetto per ogni tipo di attività commerciale o magazzino. Situato al piano terra, offre un’altezza di 5,5 mt, garantendo ampio spazio per le tue esigenze. Il porto […]
LEGGI ANCORA
Immobile in affitto a Borgo San Lorenzo(FI
negozio Ronta 700 € mese
Attività commerciale - BORGO SAN LORENZO PRESSI IN FRAZIONE. AFFITTASI LOCALE COMMERCIALE / NEGOZIO, UNICO AMBIENTE IN PRESTIGIOSO PALAZZO, PIANO TERRA CON INGRESSO INDIPENDENTE. AMPIE SUPERFICI FINESTRATE. BAGNO A NORMA C
LEGGI ANCORA
Immobile in affitto a Borgo San Lorenzo(FI
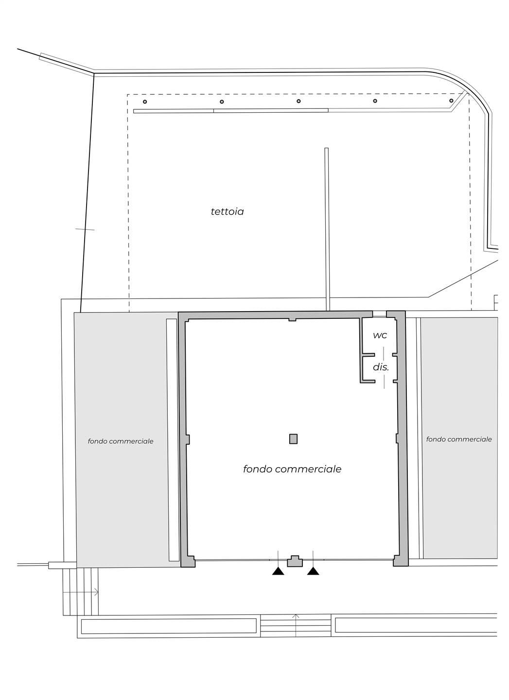
Negozio BORGO SAN LORENZO €.1600 MQ.86 Vani 1
negozio 1.600 € mese
Borgo San Lorenzo, centrale, negozio su strada alta percorrenza con doppia vetrina. La metratura del fondo è di 86 mq con antibagno e bagno ed ha una ampia tettoia collegata di 117 mq. sul retro e comodissima per carico e scarico dell'attività. L'altezza interna di 3,30 mt. Ottime condizioni pronto all'u […]
LEGGI ANCORA
Affitti negozi uffici capannoni a Borgo San Lorenzo
Proposto da:
negozio 500 € mese
Borgo san lorenzo paese, centrale, vicino a tutti i servizi, in posizione centrale, in palazzo signorile, ufficio posto alpiano terra di mq. 50 in vano unico, con antibagno e bagno. Termo singolo a metano. Tutto in perfetto stato, luminoso, tranquillo divisibile. Ideale anche come laboratorio per attivit […]
LEGGI ANCORA
Borgo San Lorenzo (Petrona) - Capannone con enorme parcheggio
negozio 6.500 € mese
Affitto Immobile Commerciale Tra Borgo San Lorenzo e San Piero a Sieve (Loc. Petrona) in ottima zona commerciale per l'intero Mugello, capannone fronte strada con alta visibilit e grande piazzale di pertinenza. Il capannone (550 mq circa) ha altezze da 3,55 mt. a 4,00 mt. ad uso commerciale, magazzino ed […]
LEGGI ANCORA
Immobile in affitto a Borgo San Lorenzo(FI
Immobile in affitto a Borgo San Lorenzo(FI
Affittasi negozio a Borgo San Lorenzo piazza dante 12345
negozio 1.150 € mese
Borgo San Lorenzo paese, fondo commerciale/negozio favoloso con massima visibilità, ottima posizione su strada pubblica ad alto scorrimento veicolare. Mq. 130 posti in un unico vano divisibile con 2 bagni, antibagno e cucinotto. Impianto di climatizzazione, riscaldamento singolo a pellet oltre 2 posti au […]
LEGGI ANCORA
Non perdere gli altri 34 annunci!










