N.B. Tutti le informazioni immobiliari sono fornite senza alcuna garanzia. Leggi il disclaimer.
Capannoni o case semindipendenti o locali commerciali o negozi o uffici con cantina in affitto a Borgo San Lorenzo
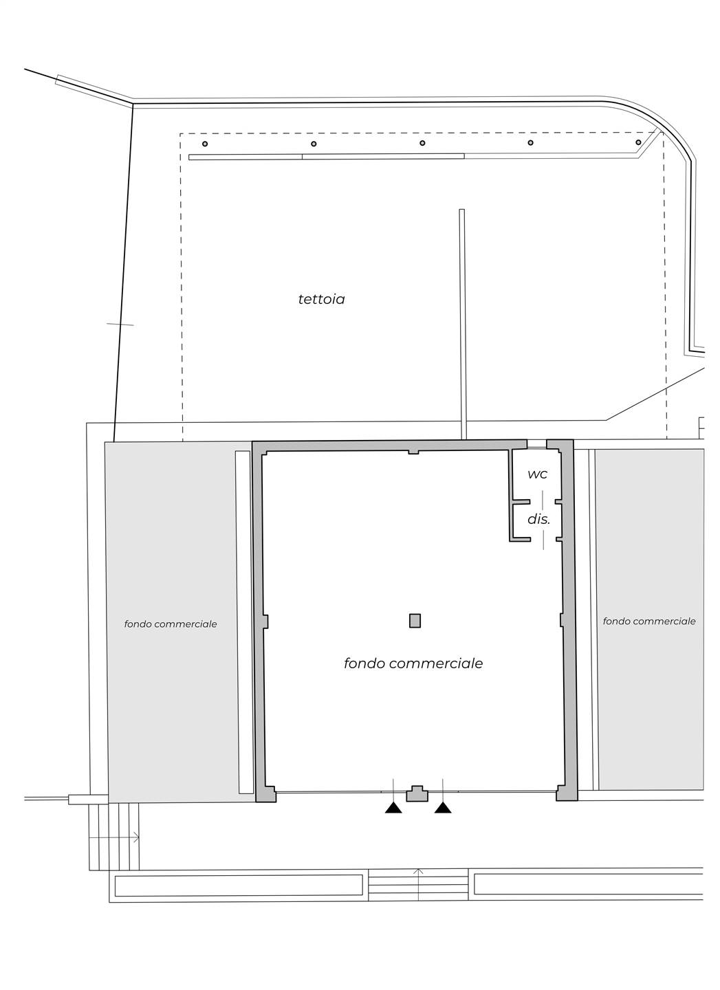
MODIFICA QUESTA RICERCAAffitto attività commerciale VIA LEONARDO DA VINCI 78 Borgo San Lorenzo (FI PREMIUM
Affitto attività commerciale VIA LEONARDO DA VINCI 78 Borgo San Lorenzo (FI
negozio 400 € mese
BORGO SAN LORENZO, POSIZIONE DI ALTO PASSAGGIO VEICOLARE, FONDO COMMERCIALE COMPOSTO DA UNICO AMPIO VANO E CON PIAZZALE ANTISTANTE PER CARICO/SCARICO MERCI OLTRE POSTI AUTO NON ASSEGNATI. - CLASSE ENERGETICA IN ELABORAZIONE RIF. 4/0269 - (agg. 02/04/2026
LEGGI ANCORA
COMMERCIALE VIA LEONARDO DA VINCI 78 BORGO SAN LORENZO monolocale 60mq
negozio 400 € mese
COMMERCIALE VIA LEONARDO DA VINCI 78 BORGO SAN LORENZO monolocale 60mq Borgo San Lorenzo Firenze Toscana borgo san lorenzo posizione di alto passaggio veicolare fondo commerciale composto da unico ampio vano e con piazzale antistante per caricoscarico merci oltre posti auto non assegnati. - classe energe […]
LEGGI ANCORA
capannone in affitto a Borgo San Lorenzo
capannone in affitto a Borgo San Lorenzo
capannone in affitto a Borgo San Lorenzo
capannone
NEL CENTRO COMMERCIALE NATURALE DI BORGO SAN LORENZO FONDO COMMERCIALE PER COMPLESSIVI MQ 60 CON VETRINA SU STRADA RIF F 83
LEGGI ANCORA
Immobile in affitto a Borgo San Lorenzo(FI PREMIUM
ufficio in affitto a Borgo San Lorenzo
ufficio
Borgo San Lorenzo, zona Industriale, piano secondo con ascensore, uffici efficienti con tutte le funzionalità per lo smart-working. Da 16 mq a 19 mq. circa Area cucina comune, disponibilità di sala conferenze o incontri. Climatizzato caldo/freddo, VMC (ventilazione meccanica) Facilità di parcheggio Richi […]
LEGGI ANCORA
Ufficio BORGO SAN LORENZO €.300 MQ.30 Vani 1
Proposto da:
ufficio 300 € mese
Borgo San Lorenzo zona artigianale a due passi dai viali di circonvallazione affittasi ufficio unico vano categoria A10 con servizio per totali mq 32. Ottime condizioni tetto e facciate recentemente rifatte. No condominio. Zona facile parcheggio. Subito disponibile RIF.4/403
LEGGI ANCORA
- prezzo medio ufficio a Borgo San Lorenzo : 7,5 €/m²
Immobile in affitto a Borgo San Lorenzo(FI
Negozio in affitto a Borgo San Lorenzo
capannone in affitto a Borgo San Lorenzo
capannone 5.000 € mese
IN ZONA DI ALTISSIMO PASSAGGIO CAPANNONE MQ 1000 OLTRE RESEDE ARTIGIANALE INDUSTRIALE RIF CM 57 FOTO DIMOSTRATIVA
LEGGI ANCORA
Immobile in affitto a Borgo San Lorenzo(FI PREMIUM
capannone in affitto a Borgo San Lorenzo
capannone in affitto a Borgo San Lorenzo
capannone in affitto a Borgo San Lorenzo
Locale commerciale in affitto a Borgo San Lorenzo, Ronta
negozio Ronta 1.050 € mese
Pressi Borgo San Lorenzo affittasi locale di prestigio ad uso commerciale adatto qualsiasi attività posto al piano terra con ingresso indipendente, bagno , antibagno, impianti a norma, termo singolo a metano. Possibile divisione in più vani e possibilità di ampia e caratteristica cantina con soffitti a v […]
LEGGI ANCORA
Negozio in affitto a Borgo San Lorenzo
Affitto attività commerciale VIA LEONARDO DA VINCI 78 Borgo San Lorenzo (FI PREMIUM
Locale commerciale in affitto a Borgo San Lorenzo via leonardo da vinci 78
LOCAZIONE Ufficio BORGO SAN LORENZO
ufficio 670 € mese
BORGO SAN LORENZO, ALLE PORTE DEL PAESE, DI RECENTE REALIZZAZIONE, AMPIO FONDO USO UFFICIO COMPOSTO DA UNICO AMPIO VANO OLTRE SERVIZIO E ARCHIVIO. ASCENSORE. POSTO AUTO ESCLUSIVO. - CLASSE ENERGETICA IN ELABORAZIONE RIF. 4/0259 - (agg. 21/03/2026
LEGGI ANCORA
- prezzo medio ufficio in zona OMI B2 : 7,2 €/m²
- prezzo medio ufficio a Borgo San Lorenzo : 7,5 €/m²
Locale commerciale in affitto a Borgo San Lorenzo
locale commerciale 1.500 € mese
ZONA CENTRALE MA FUORI DAL CENTRO STORICO, OTTIMA VISIBILITA', FONDO COMMERCIALE ADATTO A MOLTEPLICI ATTIVITA' PER COMPLESSIVI MQ 220 OLTRE DUE VETRINA SU STRADA RIF F12
LEGGI ANCORA
- prezzo medio locale commerciale in zona OMI B2 : 8,3 €/m²
- prezzo medio locale commerciale a Borgo San Lorenzo : 8,5 €/m²
Non perdere gli altri 89 annunci!













