Valutazione immobiliare indipendente, accurata e gratuita
L'Opinione di Caasa® per la casa indipendente in vendita a Riccione a 395.000 € (cod.651cdbbe)
Secondo Caasa, per la casa indipendente in vendita a Riccione, la richiesta di 395.000 € è equilibrata rispetto agli annunci simili.
Analisi immobiliare
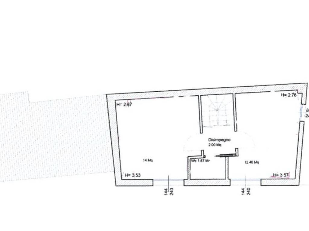
La casa indipendente, situata nei pressi di Viale Formia nella zona OMI C4, è proposta in vendita a
395.000 € per una
superficie commerciale di
130 m² e quindi ad un prezzo per metro quadrato pari a
3038 €/m²
.
Questo prezzo
è perfettamente allineato a quello stimato da Caasa per immobili in vendita simili per tipologia e caratteristiche e localizzati nella stessa zona OMI, che è compreso tra
3.071 €/m² e
3.443 €/m².
Grazie alla conoscenza con buona approssimazione della localizzazione dell'immobile, è stato possibile utilizzare come raffronto i dati medi elaborati esattamente nella zona OMI di appertenenza (ZONA COMPRESA TRA LA FERROVIA E SS.16 DA MARANO ALLE TERME). Anche se Caasa non è riuscita a determinare la classe energetica, ad affinare la stima ha contribuito anche lo stato dell'immobile (da ristrutturare). Per i motivi esposti l'intervallo dei valori accettabili per l'offerta è relativamente limitato.
Mercato immobiliare a Riccione
Per quanto riguarda più in generale la città di Riccione, sono presenti al momento oltre 500 annunci per
case indipendenti in vendita (quasi il 20% dell'intera provincia)
e il maggior numero di annunci per questa tipologia sono relativi alla zona di Alba.
Possiamo inoltre considerare che in tutta la città negli ultimi 6 mesi, i prezzi per case indipendenti in vendita sono
sostanzialmente stabili (+0,90%).
NOVITÀ Il risultato che vedi dipende dai dati che siamo riusciti ad estrarre dall'annuncio: ottieni una stima più accuranta di questo immobile, inserendo dati più precisi.
N.B. L'Opinione di Caasa® è un servizio sperimentale realizzato tramite tecniche di Intelligenza Artificiale, fornito senza alcuna garanzia di correttezza e completezza. Leggi il disclaimer o segnalaci un problema.
IMMAGINI
IN SINTESI
PROPOSTO DA:
Albertini Immobiliare Riccione
