Valutazione immobiliare indipendente, accurata e gratuita
L'Opinione di Caasa® per l'appartamento in vendita a Faenza a 260.000 € (cod.6507cc22)
Secondo Caasa, per l'appartamento in vendita a Faenza, la richiesta di 260.000 € è significativamente svantaggiosa rispetto agli annunci simili.
Analisi immobiliare
L'appartamento, situato nella zona OMI C1, è proposto in vendita (da GARONI IMMOBILIARE) a
260.000 € per una
superficie commerciale di
86 m² e quindi ad un prezzo per metro quadrato pari a
3023 €/m²
.
Questo prezzo
è meno vantaggioso di quello stimato da Caasa per immobili in vendita simili per tipologia e caratteristiche e localizzati nella stessa zona OMI, che è compreso tra
2.146 €/m² e
2.343 €/m².
Grazie alla conoscenza con buona approssimazione della localizzazione dell'immobile, è stato possibile utilizzare come raffronto i dati medi elaborati esattamente nella zona OMI di appertenenza (SEMICENTRALE RESIDENZIALE). Anche se Caasa non è riuscita a determinare la classe energetica, ad affinare la stima ha contribuito anche la presenza di alcune caratteristiche significative come la disponibilità di una cantina o il posto auto. Per questi motivi l'intervallo dei valori accettabili per l'offerta è relativamente limitato.
Mercato immobiliare a Faenza
Per quanto riguarda più in generale la città di Faenza, sono presenti al momento oltre 500 annunci per
appartamenti in vendita (quasi il 20% dell'intera provincia)
e il maggior numero di annunci per questa tipologia sono relativi alla zona di Centro Storico.
Possiamo inoltre considerare che in tutta la città negli ultimi 6 mesi, i prezzi per appartamenti in vendita sono
in forte aumento (+22,89%).
NOVITÀ Il risultato che vedi dipende dai dati che siamo riusciti ad estrarre dall'annuncio: ottieni una stima più accuranta di questo immobile, inserendo dati più precisi.
N.B. L'Opinione di Caasa® è un servizio sperimentale realizzato tramite tecniche di Intelligenza Artificiale, fornito senza alcuna garanzia di correttezza e completezza. Leggi il disclaimer o segnalaci un problema.
IMMAGINI
IN SINTESI
DESCRIZIONE
con posto auto con cantina con termocondizionamento con riscaldamento autonomo
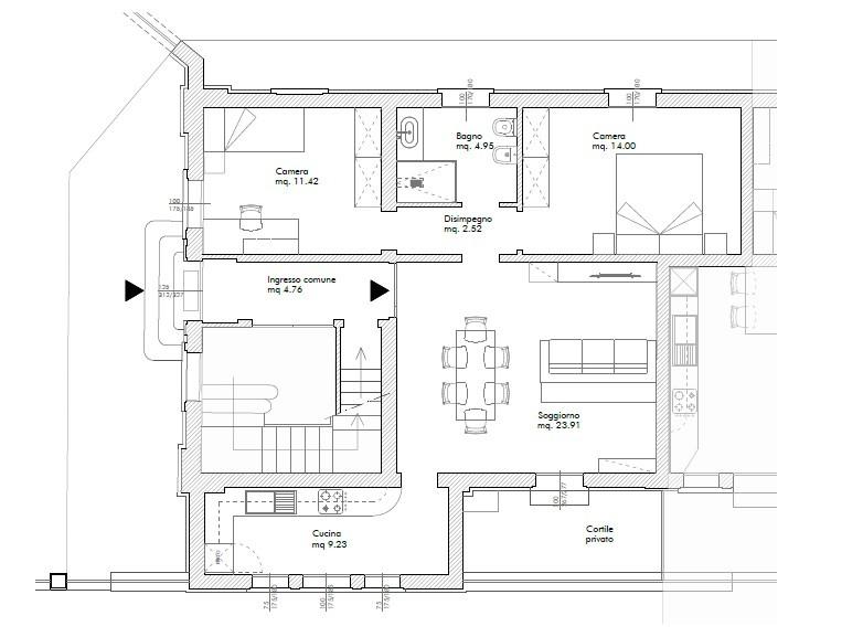
Recupero della storica palazzina delle Maioliche d’arte F.lli Minardi: unità A4 con ingresso a sole 2 unità posta al piano terra composta da piccola corte esclusiva soggiorno, cucina, 2 camere, bagno, posto auto esclusivo, cantina. Richiesta: € 260.0 […]
