Valutazione immobiliare indipendente, accurata e gratuita
Appartamento in vendita a Faenza in zona Centro Storico a 330.000 € (cod.65074d84)
Caasa non ha sufficienti informazioni per commentare l'appartamento a Faenza in zona Centro Storico - 65074d84.
Analisi immobiliare
I dati in posseso di Caasa per quest'immobile sono insufficienti, inaffidabili o contraddittori per proporre un'analisi attendibile.
Mercato immobiliare a Faenza
Per quanto riguarda più in generale la città di Faenza, sono presenti al momento oltre 500 annunci per
appartamenti in vendita (quasi il 20% dell'intera provincia)
e il maggior numero di annunci per questa tipologia sono relativi proprio alla zona di Centro Storico.
Per quanto riguarda la richiesta media in zona Centro Storico, dove sorge l'appartamento, essa è pari a circa
2.260 €/m² per appartamenti in vendita.
Per quanto riguarda la dinamica dei prezzi, negli ultimi 6 mesi i prezzi medi in tutta la città per appartamenti in vendita sono
in forte aumento (+22,89%).
NOVITÀ Il risultato che vedi dipende dai dati che siamo riusciti ad estrarre dall'annuncio: ottieni una stima più accuranta di questo immobile, inserendo dati più precisi.
N.B. L'Opinione di Caasa® è un servizio sperimentale realizzato tramite tecniche di Intelligenza Artificiale, fornito senza alcuna garanzia di correttezza e completezza. Leggi il disclaimer o segnalaci un problema.
IMMAGINI
IN SINTESI
PROPOSTO DA:
IL LABIRINTO IMMOBILIARE DI BRUNETTI MARIA CRISTINA SNC
CORSO MATTEOTTI,22, Faenza (RA)
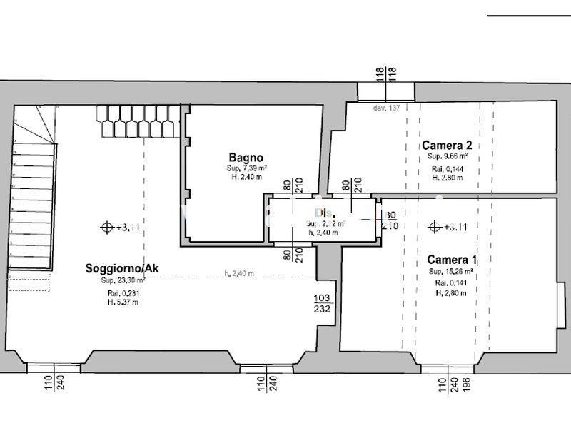
DESCRIZIONE
con posto auto con cantina edificio storico
Nel cuore di Faenza, in uno splendido palazzo storico in fase di ristrutturazione PALAZZO BORGHI, proponiamo TRILOCALE con INGRESSO INDIPENDENTE direttamente dalla corte interna. L’immobile si trova al primo piano, raggiungibile tramite la propria scala interna e si compone da Ingresso su OPEN SPACE con CUCINA A VISTA disimpegno notte, DUE CAMERE DA LETTO, AMPIO BAGNO. Una soluzione con una pianta funzionale e razionale che contribuisce ad una distribuzione pratica e fluida degli ambienti. Le ampie finestre, tipiche dei palazzi antichi, valorizzano i volumi amplificando l’impressione di spaziosità. Completa la proprietà una comoda cantina di circa 5,5 metri quadri, ideale per cantina, deposito o spazio hobby. Il capitolato è di livello, con finiture moderne che si integrano armoniosamente al carattere storico dell’edificio: materiali scelti con cura, cappotto termico, impianti aggiornati e una palette di colori neutri che esaltano la luminosità e la sensazione di accoglienza. La Palazzina si trova in posizione comoda a tutti i servizi e risulta perfetta per gli amanti della comodità e del centro cittadino. Disponibilità di POSTI AUTO ACQUISTABILI. Immagini di rendering. Contattaci per scoprire dettagli, planimetrie e scegliere insieme le finiture del capitolato. Rif. Unità 2


