Valutazione immobiliare indipendente, accurata e gratuita
Negozio in vendita a Villanova sull'Arda a 27.338 € (cod.6506a1a9)
Caasa non ha sufficienti informazioni per commentare il negozio in vendita a Villanova sull'Arda - 6506a1a9.
Analisi immobiliare
I dati in posseso di Caasa per quest'immobile sono insufficienti, inaffidabili o contraddittori per proporre un'analisi attendibile.
Mercato immobiliare a Villanova sull'Arda
Per quanto riguarda più in generale il comune di Villanova sull'Arda, sono presenti al momento più di dieci annunci per
negozi in vendita (meno del 5% dell'intera provincia) .
Vedi altre informazioni direttamente su
Mercato-Immobiliare.info
NOVITÀ Il risultato che vedi dipende dai dati che siamo riusciti ad estrarre dall'annuncio: ottieni una stima più accuranta di questo immobile, inserendo dati più precisi.
N.B. L'Opinione di Caasa® è un servizio sperimentale realizzato tramite tecniche di Intelligenza Artificiale, fornito senza alcuna garanzia di correttezza e completezza. Leggi il disclaimer o segnalaci un problema.
IMMAGINI
IN SINTESI
DESCRIZIONE
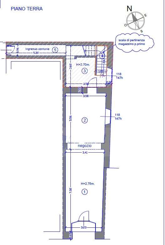
in asta giudiziaria con balcone
ASTA GIUDIZIARIA. LOTTO 2 - Piena proprietà di negozio al piano terra in Comune di Villanova sull'Arda (Pc), via Repubblica (già via Roma) n. 8. Dalla scala interna sita nel vano disimpegno si accede al piano superiore destinato a deposito/magazzino. Lo studio FERDENZI promuove servizi di consulenza ed assistenza specializzata a chi è interessato ad acquistare un immobile tramite asta giudiziaria. Indaghiamo in modo approfondito ogni aspetto della pratica in esame, cercando e valutando anche gli aspetti più nascosti, che possono peró influire in modo fondamentale sulle scelte del nostro cliente e sulla buona riuscita dell'operazione. Nel caso in cui il cliente decida di acquistare mettiamo a sua disposizione, durante ogni fase dell'operazione, tutto il supporto e le competenze dei nostri specialisti di settore. Ti aiutiamo a risparmiare fino al 50% sull'acquisto della casa. GARANZIA SEMPRE CON TE. Affidati allo studio tecnico immobiliare Ferdenzi ed avrai sempre al tuo fianco una persona esperta ed affidabile che saprà come affrontare le diverse criticità e che si dedicherà unicamente alla protezione dei tuoi interessi. PERCHÉ ACQUISTARE UN IMMOBILE ALL'ASTA CON NOI? Acquistare un immobile tramite asta è estremamente vantaggioso. Spesso peró le informazioni riguardanti tali beni non sono complete o aggiornate e possono indurre in errori di valutazione. Grazie alla nostra ventennale esperienza nel settore siamo in grado di acquisire informazioni utili per evitare acquisti non convenienti o poco sicuri per i nostri clienti. Il nostro intento è far spendere il meno possibile al cliente. CHIAMA SUBITO LO STUDIO PER FISSARE LA TUA CONSULENZA CLASSE ENERGETICA: G


