Valutazione immobiliare indipendente, accurata e gratuita
L'Opinione di Caasa® per l'appartamento in vendita a Modena in zona Sant'Agnese a 320.000 € (cod.651a1c96)
Secondo Caasa, per l'appartamento a Modena in zona Sant'Agnese, la richiesta di 320.000 € è leggermente vantaggiosa rispetto agli annunci simili.
Analisi immobiliare
L'appartamento, situato nei pressi di Viale Medaglie d'Oro nella zona OMI C10, è proposto in vendita a
320.000 € per una
superficie commerciale di
125 m² e quindi ad un prezzo per metro quadrato pari a
2560 €/m²
.
Questo prezzo
è di poco inferiore a quello stimato da Caasa per immobili in vendita simili per tipologia, caratteristiche, classe energetica e localizzati nella stessa zona OMI, che è compreso tra
2.668 €/m² e
2.858 €/m².
La conoscenza con buona approssimazione della localizzazione dell'immobile ha consentito di utilizzare come raffronto i dati medi elaborati esattamente nella zona OMI di appertenenza (CAPOLUOGO - BUON PASTORE, SANT'AGNESE) per appartamenti (da 2.105 €/m² a 3.425 €/m²). Inoltre, Caasa ha potuto affinare la stima anche con la conoscenza della classe energetica (G) oltre che dello stato dell'immobile (di recente ristrutturazione) e di alcune caratteristiche significative come la presenza dell'ascensore, la disponibilità di una cantina o il posto auto. In virtù di queste considerazioni è possibile considerare un intervallo di valori accettabili per l'offerta abbastanza limitato.
Mercato immobiliare a Modena
Per quanto riguarda più in generale la città di Modena, sono presenti al momento ben oltre 3.000 annunci per
appartamenti in vendita (meno di un terzo dell'intera provincia)
e il maggior numero di annunci per questa tipologia sono relativi alla zona di Centro Storico, mentre la zona di Sant'Agnese risulta molto meno attiva considerando il numero di annunci presenti.
La richiesta media nella zona dove sorge l'appartamento (Sant'Agnese pressi Viale Medaglie d'Oro) è pari a
2.690 €/m², molto vicina ai valori della zona Centro Storico che sono i più alti della città .
Possiamo inoltre considerare che in tutta la città negli ultimi 6 mesi, i prezzi per appartamenti in vendita sono
in debole aumento (+2,19%).
NOVITÀ Il risultato che vedi dipende dai dati che siamo riusciti ad estrarre dall'annuncio: ottieni una stima più accuranta di questo immobile, inserendo dati più precisi.
N.B. L'Opinione di Caasa® è un servizio sperimentale realizzato tramite tecniche di Intelligenza Artificiale, fornito senza alcuna garanzia di correttezza e completezza. Leggi il disclaimer o segnalaci un problema.
IMMAGINI
IN SINTESI
PROPOSTO DA:
Rete di Fantuzzi Piero e c snc
DESCRIZIONE
di recente ristrutturazione con posto auto con cantina con terrazza con termocondizionamento con balcone di recente ristrutturazione con cucina abitabile con ascensore con riscaldamento autonomo con cortile
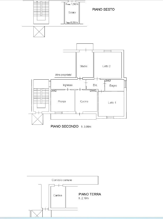
APPARTAMENTO RISTRUTTURATO CON DUE CAMERE E STUDIO Zona Sant'Agnese: laterale di Viale Medaglie d'Oro, in strada chiusa, tranquilla e silenziosa, proponiamo in vendita appartamento ristrutturato recentemente posto al piano secondo in palazzina servita da ascensore composto da: ingresso, zona living, cucina abitabile con accesso al balcone, due camere da letto matrimoniali, studio/terza camera con balcone e bagno. Soffitta al piano sesto e ampia cantina al piano terra. Posto auto condominiale all'interno del cortile. Riscaldamento autonomo, porta blindata. Possibilità di acquistare parte dell'arredo. Libero a breve




