Valutazione immobiliare indipendente, accurata e gratuita
Casa indipendente in vendita a Modena in zona Cognento a 871.765 € (cod.651869d9)
Caasa non ha sufficienti informazioni per commentare la casa indipendente a Modena in zona Cognento - 651869d9.
Analisi immobiliare
I dati in posseso di Caasa per quest'immobile sono insufficienti, inaffidabili o contraddittori per proporre un'analisi attendibile.
Mercato immobiliare a Modena
Per quanto riguarda più in generale la città di Modena, sono presenti al momento ben oltre mille annunci per
case indipendenti in vendita (quasi il 20% dell'intera provincia)
e il maggior numero di annunci per questa tipologia sono relativi alla zona di Centro Storico, mentre nella zona di Cognento è presente un numero significativamente inferiore di annunci.
La richiesta media nella zona dove sorge la casa indipendente (Cognento pressi Viale dello Zodiaco) è pari a
2.695 €/m², molto vicina ai valori della zona Centro Storico che sono i più alti della città .
Relativamente alla dinamica dei prezzi, possiamo dire che negli ultimi 6 mesi i prezzi medi in tutta la città per case indipendenti in vendita sono
in sostanziale aumento (+6,42%).
NOVITÀ Il risultato che vedi dipende dai dati che siamo riusciti ad estrarre dall'annuncio: ottieni una stima più accuranta di questo immobile, inserendo dati più precisi.
N.B. L'Opinione di Caasa® è un servizio sperimentale realizzato tramite tecniche di Intelligenza Artificiale, fornito senza alcuna garanzia di correttezza e completezza. Leggi il disclaimer o segnalaci un problema.
IMMAGINI
IN SINTESI
PROPOSTO DA:
EDILMOREALI
DESCRIZIONE
con posto auto con garage con terrazza con termocondizionamento con giardino con riscaldamento autonomo
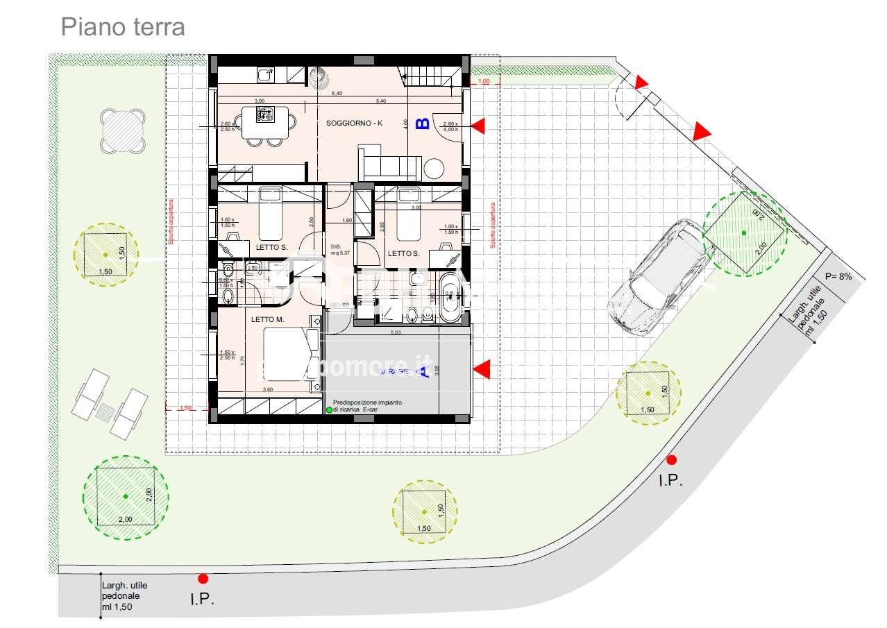
MO805E-1. ZETA GREEN ESTATES. Nostra esclusiva, Via dello Zodiaco, nel cuore del Villaggio Z su ampio lotto verde vendesi villa "1" di 221 mq. comm. ubicata ai piani terra e primo. Immobile dotato di ingresso indipendente, giardino privato, terrazzo, garage e posto auto interno. Caratteristica peculiare dell'intervento è l'adozione di avanzate tecnologie impiantistiche d'avanguardia volte al massimo contenimento del consumo energetico nel pieno rispetto dell'ambiente, infatti tutte le unità immobiliari saranno edificate in classe “A4” (secondo la delibera della Regione Emilia Romagna dgr. 20 luglio 2015, n. 967). Il capitolato prevede finiture di pregio tutte personalizzabili, pavimenti in ceramica grandi formati e parquet (marca Foglie d'Oro), rubinetterie e sanitari di design, riscaldamento autonomo in pompa di calore a pavimento, aria condizionata, ventilazione meccanica controllata puntuale, pannelli fotovoltaici 3KW per ogni unità, addolcitore acque e predisposizione per antifurto. Immobile così disposto: ingresso indipendente, soggiorno con cucina a vista e doppio sbocco su giardino privato fronte/retro, disimpegno notte, tre camere da letto, due bagni finestrati e angolo lavanderia. A completamento della proprietà un garage, un posto auto e giardino privato di 262 mq. Possibilità di personalizzazione degli spazi e delle finiture interne. Prezzo: 871.765 €. Consegna luglio 2027. Per informazioni e visite: 340-7710085 dott. Corica Giuseppe, 348-8701469 Geom. Corica Maurizio,335-6444800 dott. Gollini Enrico, 335-6880908 geom. Fella Cristiano, 335-7853006 geom. Zara Costantino. In alternativa ulteriori info sul ns sito GRUPPOMORE.IT digitando CODICE DI RIFERIMENTO o inviaci una mail gestionecantieri-gruppomore@cataimm.it.it


