Valutazione immobiliare indipendente, accurata e gratuita
Locale commerciale in affitto a Casalecchio di Reno a 2.000 € mese (cod.6513c3df)
Caasa non ha sufficienti informazioni per commentare il locale commerciale a Casalecchio di Reno - 6513c3df.
Analisi immobiliare
I dati in posseso di Caasa per quest'immobile sono insufficienti, inaffidabili o contraddittori per proporre un'analisi attendibile.
Mercato immobiliare a Casalecchio di Reno
Per quanto riguarda più in generale la città di Casalecchio di Reno, sono presenti al momento più di dieci annunci per
locali commerciali in affitto (meno del 5% dell'intera provincia)
e il maggior numero di annunci per questa tipologia sono relativi alla zona di Garibaldi/La Mutua.
NOVITÀ Il risultato che vedi dipende dai dati che siamo riusciti ad estrarre dall'annuncio: ottieni una stima più accuranta di questo immobile, inserendo dati più precisi.
N.B. L'Opinione di Caasa® è un servizio sperimentale realizzato tramite tecniche di Intelligenza Artificiale, fornito senza alcuna garanzia di correttezza e completezza. Leggi il disclaimer o segnalaci un problema.
IMMAGINI
IN SINTESI
PROPOSTO DA:
STUDIO IMMOBILIARE BOSCHI
DESCRIZIONE
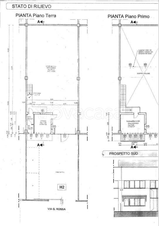
CDATA[AFFITTASI CASALECCHIO DI RENO VIA DEL LAVORO IN ZONA COMODA EDI GRANDE PASSAGGIO CAPANNONE DI 250 MQ oltre ad AREA CORTILIVA PRIVATA RECINTATA DI 150 MQ Euro 2.000 ,00 AMPIA DISPONIBILITA' DI ALTRE SOLUZIONI ACE G riferimento annuncio sbc103 PER MAGGIORI INFO STUDIO IMMOBILIARE BOSCHI 051/592094 WWW.IMMOBILIAREBOSCHI.COM

