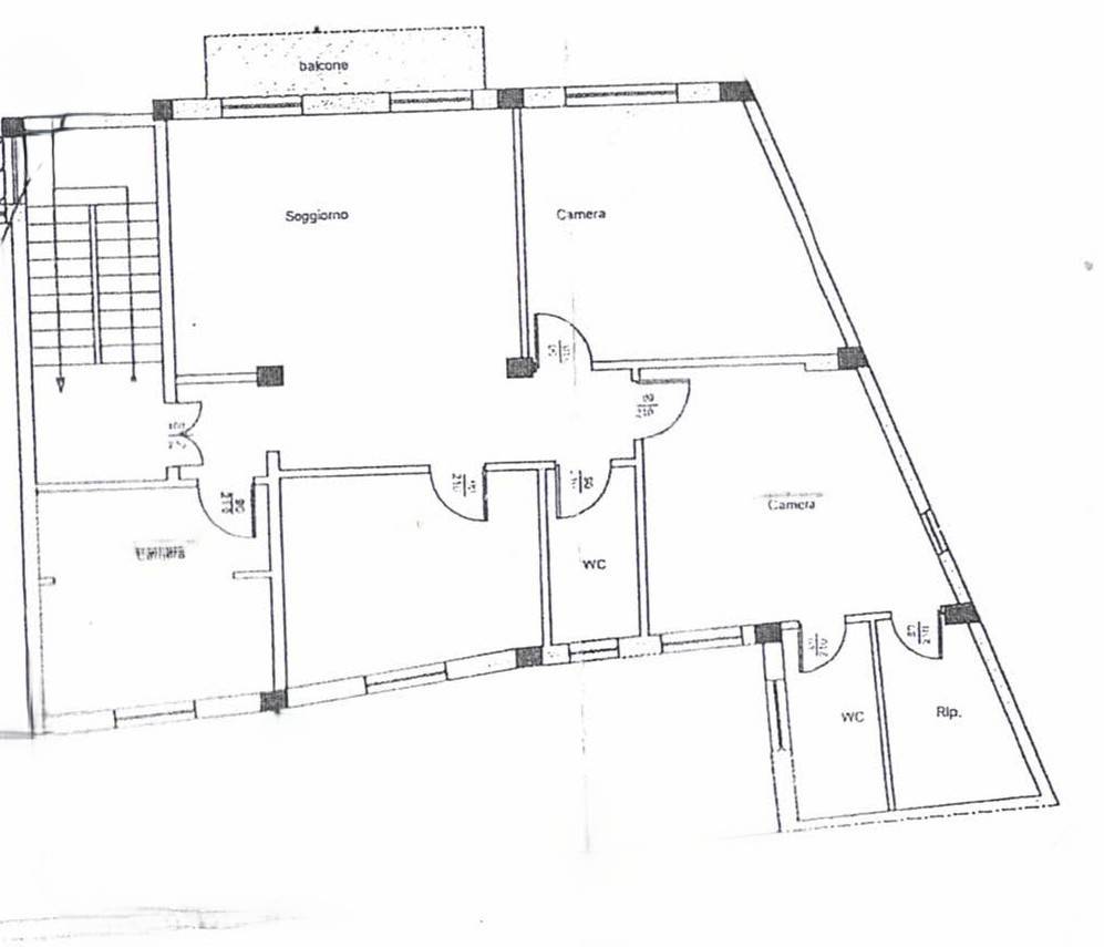
Valore appartamenti in affitto in zona Centro Storico
In base al numero di annunci degli appartamenti in affitto attualmente presenti, la zona OMI B2 (CENTRO STORICO) è una delle più importanti ad Ascoli Piceno. Il prezzo al m² mediamente richiesto in zona è attualmente pari a 8,7 €/m² mese ed è nella maggioranza dei casi compreso tra 6,2 €/m² mese e 10,5 €/m² mese. Questo valore è molto simile alla media cittadina e ne fa una zona tra le più economiche in assoluto per questa tipologia. LEGGI ANCORA
Sulla base dei dati ufficiali sui contratti di locazione diffusi dall' Agenzia delle Entrate riferiti alla zona OMI B2 (CENTRO STORICO), che è quella più vicina alla zona Centro Storico, i prezzi al m² per un appartamento in affitto sono compresi tra 7,1 €/m² mese e 9,6 €/m² mese.
N.B. Tutti le informazioni immobiliari sono fornite senza alcuna garanzia. Leggi il disclaimer.












